Research 小学| Kennedy Nolan | 2023 | 澳大利亚

vsszan196222141822361.jpg
vsszan196222141822362.jpg

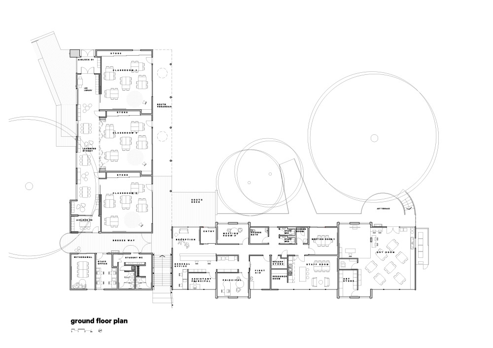
2018年7月,Kennedy Nolan受聘为研究型小学现代化项目提供首席设计顾问服务。位于一个陡峭的树木丛生的场地上,有许多重大问题需要解决:难以进入、设施不符合要求以及明显超出授权范围。该项目涉及拆除许多远远超过预期寿命、不再适合使用的建筑物。这允许创建一个中央分层聚会区和游乐区,并提供普遍的访问,同时改善整个场地的寻路、视觉连接和安全性。学校前面的一座新的初中楼增强了学校的存在感和到达感。初中提供了一个灵活的学习环境,支持基于项目的学习和户外学习。相邻的教室大楼已经翻修,以创建一个新的行政和艺术中心,提供更好的员工和行政设施,以及更大的灵活性和与外部环境紧密相连的会议区。新的建筑和景观工程经过精心选址,以保护现有的重要树木,提高场地的观赏性和利用率,同时解决重大的雨水问题。
vsszan196222141822363.jpg
vsszan196222141822364.jpg
vsszan196222141822365.jpg
vsszan196222141822366.jpg
vsszan196222141822367.jpg
vsszan196222141822368.jpg
vsszan196222141822369.jpg
vsszan1962221418223610.jpg
vsszan1962221418223611.jpg
vsszan1962221418223612.jpg
vsszan1962221418223613.jpg
vsszan1962221418223614.jpg
    • 转自:Kennedy Nolan
    • 图片©Kennedy Nolan
    • 编辑:序赞网
    • 阅读原文
    AI文本分析中……
    AI色彩命名中……

    序赞Ai时刻等待着你的命令!~

    与Ai对话形式持续执行相关Ai智能体任务。

    syhgdesign2025-3-17 00:40:13
    感谢楼主辛苦分享
    HZ小青年2025-3-19 09:15:40
    感谢分享!感谢分享!
    您需要登录后才可以回帖 登录 | 注册序赞号

    快速回复 返回顶部 返回列表