Six-Ways House | Kennedy Nolan | 2024 | 澳大利亚

vsszan196235141822361.jpg
vsszan196235141822362.jpg

North Fitzroy是一个19世纪的社区,因其遗产结构而受到高度重视,为新房子提供了一个有趣而具有挑战性的环境。这个网站有一些独特之处——与备受喜爱的电车酒店相对,在一个“六向”环形交叉路口上,东西走向,主要面向南方。这座房子取代了一座20世纪80年代的住宅,这座住宅有一些怀旧的吸引力,但建筑质量差,黑暗,缺乏灵活性,与花园缺乏联系。老房子的局限性在很大程度上定义了其替代方案——一种热效率高、光线充足的住宅,强调与景观的连接。我们重视建筑遗产的美学品质、建筑工艺以及它告诉我们城市历史的东西——尤其重要的是保护基本上完好无损的街区,这些街区与街景和街区一样更为强大。
vsszan196235141822363.jpg
vsszan196235141822364.jpg

填充场地是一个很有吸引力的机会,需要详细了解有助于街景或完整城市环境的遗产建筑的特定属性。我们观察了附近的转角建筑,被轮廓优雅的长砌石墙所吸引,我们喜欢实心/空心的惊人比例,主要的实心平面强调了开口的重要性。我们被一楼阳台的表演作用所吸引,这是一种公共凉廊的感觉。而且,我们被细节和装饰的集中所打动,这些细节和装饰强调了纯砖石的美丽平面。我们发现很难与亚拉市的遗产顾问达成一致,后者寻求维多利亚建筑的更字面表达,但最终达成了妥协。主要意图仍然存在——在实心和空心之间达到一种经过深思熟虑的平衡,强调优雅的砌体平面,并在孔洞周围集中细节。
vsszan196235141822365.jpg
vsszan196235141822366.jpg

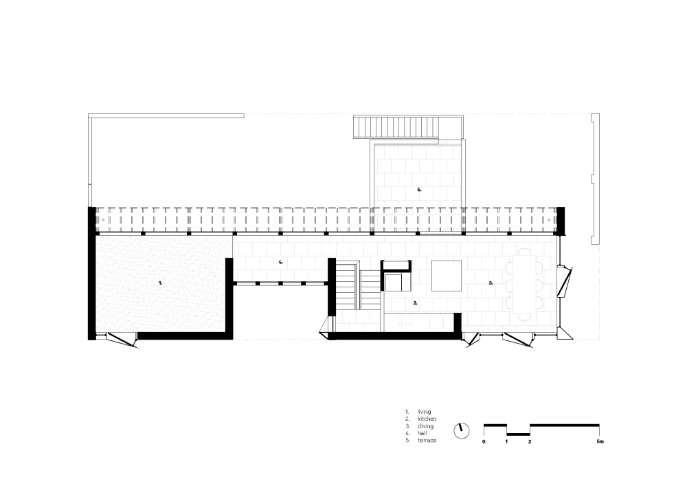
我们将维多利亚式一楼阳台的功能与一个戏剧性的餐厅分开,在最显眼的角落扮演公共空间的角色——通过使用战略性放置的镜子来混淆视线,改善了公众展示的感觉。比例来自周围的建筑,重点是一楼的比例——一架高贵、高大、优雅的钢琴。一楼的阳台是嵌入式的,大小适合使用而不是展示,在场地后面提供隐私。在选址方面,我们小心翼翼地加强了五米的细分节奏,这使我们既能保持“六向”的南侧边缘,又能为所有主要房间提供北侧和花园景观。空间布局是“反向生活”,厨房、客厅和餐厅位于一楼。调色板来源于六种方式中心漂亮的斑点树胶林——表面通常没有涂层,质地粗糙,重点是向外看,尤其是花园——效果朴素但温暖舒适。总之,这所房子是对环境的微妙回应,在自信、现代的表达与对邻里的爱和尊重之间取得了平衡。这也是一个宜居的好地方。
vsszan196235141822367.jpg
vsszan196235141822368.jpg
vsszan196235141822369.jpg
vsszan1962351418223610.jpg
vsszan1962351418223611.jpg
vsszan1962351418223612.jpg
vsszan1962351418223613.jpg
vsszan1962351418223614.jpg
vsszan1962351418223615.jpg
vsszan1962351418223616.jpg
vsszan1962351418223617.jpg
vsszan1962351418223618.jpg
vsszan1962351418223619.jpg
vsszan1962351418223620.jpg
vsszan1962351418223621.jpg
vsszan1962351418223622.jpg
vsszan1962351418223623.jpg
vsszan1962351418223624.jpg
vsszan1962351418223625.jpg

Ground Floor Plan

vsszan1962351418223626.jpg

First Floor Plan

    • 转自:Kennedy Nolan
    • 图片©Kennedy Nolan
    • 编辑:序赞网
    • 阅读原文
    AI文本分析中……
    AI色彩命名中……

    序赞Ai时刻等待着你的命令!~

    与Ai对话形式持续执行相关Ai智能体任务。

    syhgdesign2025-3-15 03:38:33
    感谢楼主辛苦分享   
    您需要登录后才可以回帖 登录 | 注册序赞号

    快速回复 返回顶部 返回列表