协成火锅香港首店 | AD艾克建筑设计 | 2025 | 中国香港
vsszan196341200033523.jpeg

协成海鲜火锅作为老字号连锁餐饮品牌,在其起源地澳门享有“第一海鲜火锅”的美称,这实至名归的评价,让它一年四季都得以接待大量游客,人气爆棚。从澳门到珠海、深圳,再到其它城市的成功,都愈发验证了其对于菜品的精致直抵人心。

作为一家始于1989年的店,它已有近40年的品牌发展历史。在品牌发展期间,其一直坚持的高端路线,也逐渐为市场认可。2024年是协成火锅发展中非常重要的一年,协成火锅携手国际先锋设计团队AD艾克建筑设计打造的协成火锅香港骆克道62号店开业,这意味着协成火锅完成了新市场的突围,香港首店的开业是对香港餐饮市场的成功探索与品牌自信的彰显。
vsszan196341200033524.png

设计逻辑

效益设计,提升美学

香港是一个寸土寸金的海岛,协成火锅香港店坐落的骆克道更是最繁华的商业街,租金高昂。在餐厅的设计中,效益设计是其中的重点;空间举架低也是香港大部分建筑室内空间的特点。综合以上两点,设计必须以提高空间的实用性与增强空间感为核心,从而在满足运营的同时提升客人的用餐空间体验。
vsszan196341200033525.jpeg
vsszan196341200033526.gif

300平方米的用餐空间,设有7个包房,总共76个餐位,这对于高端餐饮空间来说已然是突破极限。AD艾克建筑设计强调对餐厅空间尺度标准的严格把控,弱化了餐前休息区的功能,强调设计的效益。

停车场电梯直达二层包房,方便客人用餐的同时也增加了私密性,强化了用餐前的体验感。火锅电磁炉是破坏空间设计效果的一大元素,设计团队将火锅炉巧妙隐藏,与桌子做了整体设计,大大提升了空间的美感。
vsszan196341200033527.jpeg
vsszan196341200033528.jpeg
vsszan196341200033529.gif

空间整体强调商务性。在香港,高端餐饮既强调慢节奏体验的同时,也适当强调本地快节奏的社会属性。空间简洁明亮,温馨时尚,富有国际化的特性。
vsszan1963412000335210.jpeg
vsszan1963412000335211.jpeg
vsszan1963412000335212.png

论门脸重要性

引人入胜,展示品牌

协成火锅位于骆克道的临街面,展示面虽然不大,但艾克建筑团队设计了一半的展示面作为海鲜池的展示。当行人经过或客人进店时,可以先看到来自世界各地的高端海鲜食材,突显了协成火锅的产品文化特性与经营理念。红酒柜展示了协成火锅的餐酒文化。
vsszan1963412000335213.jpeg
vsszan1963412000335214.gif
vsszan1963412000335215.gif

立面整体以黄铜作为材料肌理,透过入口可以看到绿色的琉璃与渐变红色服务台之间的视觉冲击,更好地吸引狭窄人行道中人流的注意力。
vsszan1963412000335216.jpeg
vsszan1963412000335217.jpeg
vsszan1963412000335218.jpeg
vsszan1963412000335219.jpeg
vsszan1963412000335220.jpeg

首层空间举架2.2米,空间低矮具有压迫感,设计将大部分的面积设置为厨房,仅留小面积作为接待前台与海鲜点菜区,并利用天花的镜面与发光的墙体来延伸空间感。

定制的亚克力艺术板结合黄铜金属条,与黑色楼梯的延伸形成了强烈的建筑语境,使单调的楼梯空间变得灵动有趣。
vsszan1963412000335221.gif
vsszan1963412000335222.jpeg
vsszan1963412000335223.jpeg
vsszan1963412000335224.jpeg
vsszan1963412000335225.jpeg
vsszan1963412000335226.png

尊贵与舒适

兼得

悠然自得,静谧空间
vsszan1963412000335227.jpeg
vsszan1963412000335228.jpeg
vsszan1963412000335229.jpeg
vsszan1963412000335230.jpeg
vsszan1963412000335231.jpeg
vsszan1963412000335232.jpeg
vsszan1963412000335233.jpeg
vsszan1963412000335234.gif

大厅与通道之间用金属屏风作为隔断,既提升用餐的神秘感,又彰显了尊贵感。墙面白色玉石、米色皮革与天花的米白色艺术漆相互呼应,整体大气细腻,红色的装饰画与金色琉璃吊灯,强化了空间的质感。
vsszan1963412000335235.gif
vsszan1963412000335236.jpeg
vsszan1963412000335237.jpeg
vsszan1963412000335238.gif
vsszan1963412000335239.jpeg
vsszan1963412000335240.jpeg
vsszan1963412000335241.gif
vsszan1963412000335242.jpeg
vsszan1963412000335243.jpeg

通道的封闭性是空间的设计难点,设计师在处理空间时,采用了局部镜面与墙体发光后退的方法,让空间的舒适性得到大幅度提高。
vsszan1963412000335244.jpeg
vsszan1963412000335245.jpeg
vsszan1963412000335246.png

统一而丰富

友好的空间场域
vsszan1963412000335247.gif
vsszan1963412000335248.jpeg
vsszan1963412000335249.jpeg
vsszan1963412000335250.jpeg
vsszan1963412000335251.jpeg
vsszan1963412000335252.jpeg

包房设计在保持整体统一的基础上,不同的包房运用不同的设计色彩与元素,统一又富有变化。

大包房可以容纳10个人用餐,整体设计商务简洁。墙面的天然玉石与电视的设置,强调了商务性与高级感。
vsszan1963412000335253.jpeg
vsszan1963412000335254.jpeg
vsszan1963412000335255.jpeg
vsszan1963412000335256.gif

中包房为6-8人包房,是数量最多的包房,设计以黄铜色不锈钢、艺术玻璃搭配皮革,点缀绿色的装饰画,整体强调雅致的商务性。
vsszan1963412000335257.jpeg
vsszan1963412000335258.jpeg
vsszan1963412000335259.jpeg
vsszan1963412000335260.gif
vsszan1963412000335261.gif
vsszan1963412000335262.jpeg
vsszan1963412000335263.jpeg
vsszan1963412000335264.jpeg
vsszan1963412000335265.jpeg
vsszan1963412000335266.jpeg
vsszan1963412000335267.png
vsszan1963412000335268.png

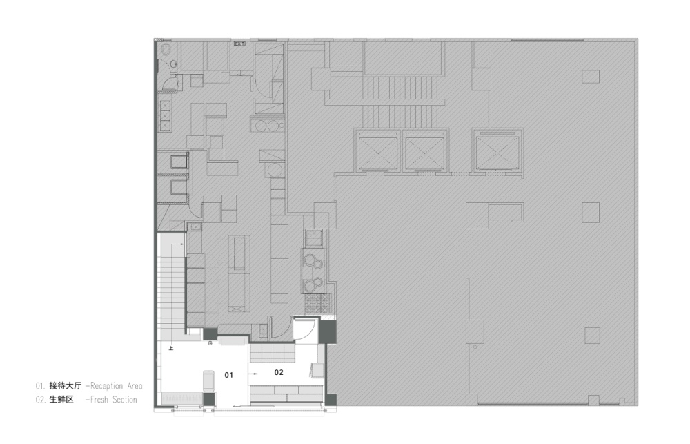
平面图

  • 项目信息
  • 项目名称:HIP SENG丨协成火锅(香港)
  • 项目业主:金悦餐饮集团
  • 设计机构:AD ARCHITECTURE丨艾克建筑设计
  • 官方网站:http://www.arch-ad.com/
  • 官方邮箱:ffice@arch-ad.com" rel="nofollow" target="_blank">office@arch-ad.com
  • 总设计师:谢培河
  • 项目地点:香港
  • 建筑面积:400 ㎡
  • 主要材料:石材、玻璃、木地板、艺术漆、皮革、金属
  • 设计时间:2024年7月
  • 竣工时间:2025年1月
  • 项目摄影:欧阳云
vsszan1963412000335269.jpg

谢培河

AD艾克建筑设计创始人及总设计师
谢培河怀抱强烈的情感张力和原创精神,主张以感性丰富驾驭理性简约,高妙且自然地融合空间功能与个性。在简单与复杂的动势中呈现空间美学,让人心与空间精神同振共鸣。
凭借商业、住宅和办公领域的一系列极致空间作品,在过去几年内斩获了一系列国际知名奖项。其独具先锋性的“极简派艺术”空间设计语言,也已融贯东西方的认知并在全球业界得到极高的认可。受邀成为2020、2021年俄罗斯金特列吉尼建筑与设计奖(Golden Trezzini Awards for Architecture and Design)的国际评审之一,该权威级奖项以“建筑即艺术”为箴言,评审席中包括Daniel Libeskind、Mario Botta、Toyo Ito、Ricardo Bofill等建筑名师。同时受2020年LOOP设计奖(LOOP Design Awards)邀请,成为此初创奖项的首届评审之一。亦于2018年被香港Perspective透视杂志评选为“40位40岁以下优秀设计师”之一。
  • 转自:构架FRAME
  • 图片©构架FRAME
  • 编辑:序赞网
  • 阅读原文
AI文本分析中……
AI色彩命名中……

序赞Ai时刻等待着你的命令!~

与Ai对话形式持续执行相关Ai智能体任务。

syhgdesign2025-3-23 03:23:34
感谢楼主辛苦分享  
您需要登录后才可以回帖 登录 | 注册序赞号

快速回复 返回顶部 返回列表