杭州MAX科技园样板办公空间 | Ippolito Fleitz Group | 2024 | 中国浙江


杭州作为中国的电子商务之都,拥有超过5万家专门从事跨境电商业务的企业。我们将坐落于杭州电商中心区MAX 科技园内的一栋五层建筑打造成为一个满足高科技电子商务企业需求的样板办公空间。在高度活跃的线上零售行业中,创新常常源于人与技术之间的跨学科交流,MAX 所展现的是一个能适应未来工作世界的复杂需求,服务于以技术为先的行业,兼顾协作性和创新性的全新未来办公场景。

平衡的艺术
我们的空间设计策略是用巧妙的对比来营造动态的环境。模块化的天花板体现秩序感,而天花板下有意错开的功能区则激发人们的兴趣,鼓励人们去探索。酒店风格的家具和温馨的装饰打破了集中办公空间的简洁线条,令氛围兼具专业性又散发舒适的日常生活感,体现出现代办公空间的双重属性:整洁而又灵活,技术化但不乏人性。

vsszan114319161859421.jpg
vsszan114319161859422.jpg
vsszan114319161859423.jpg
vsszan114319161859424.jpg


这种双重性还体现在材料和颜色的选择上。材料处理保留天然纹理,并与科技美感相辅相成;色彩方案则将充满活力和朝气的色调与沉稳的色调结合,相得益彰。对比产生的张力营造出一种鼓舞人心的氛围,为新想法、互动和集中办公创造空间。

建筑宣言

vsszan114319161859425.jpg


一楼大堂的设计宛如一份用建筑语言谱写的宣言。在总高7.5米的空间内,我们有层次地结合了前台、休息区、展区、会议室和礼堂等功能,形成一个令人赞叹的多功能空间组合。大堂的设计用有趣且具创新性的方式展现出该行业活力四射的前瞻性,给人留下深刻的第一印象,过目难忘。

vsszan114319161859426.jpg
vsszan114319161859427.jpg
vsszan114319161859428.jpg
vsszan114319161859429.jpg


数字沟通的专家
在二楼,我们考虑到高科技和电子商务行业的特殊需求,在设计上将研发实验室和直播间有机融合在工作环境中。这里的直播间设备先进,为录制视频和音频创造理想条件,并为现场直播提供令人信服的背景画面。在这里,我们将科技行业对质量和创新力的追求变为可见元素,例如透明的高科技实验室和数字化的直播间。

vsszan1143191618594210.jpg


丰富灵活的空间选择
三楼和四楼是不同配置和装备的“传统”办公空间。灵活的布局和丰富多样的空间选择为独自办公、开敞办公和大小会议提供适合的环境,满足常规需求的同时也对传统办公理念做出拓展。无论如何,自发交流和沟通都是这里的主线,是孕育创意的土壤。

vsszan1143191618594211.jpg
vsszan1143191618594212.jpg
vsszan1143191618594213.jpg
vsszan1143191618594214.jpg
vsszan1143191618594215.jpg


是的,我们在乎!
空间的五楼呈现新一代的管理理念:楼层中央是一根粗大的“树干”,“枝叶”就像一把大伞,将整个空间揽在怀中。我们用这一设计语言隐喻管理层对雇员的关怀。

vsszan1143191618594216.jpg
vsszan1143191618594217.jpg
vsszan1143191618594218.jpg
vsszan1143191618594219.jpg
vsszan1143191618594220.jpg

增长的蓝图

vsszan1143191618594221.jpg
vsszan1143191618594222.jpg
vsszan1143191618594223.jpg


坐落于杭州电商中心区的MAX科技园样板办公空间所展现的是一个面向未来的工作世界,它适应复杂需求,服务于以技术为先的行业,视觉效果强烈,个性独树一帜。我们希望这座对瞬息万变的未来工作模式高度敏感和灵活的办公空间能够成为全行业发展的一个新标杆。

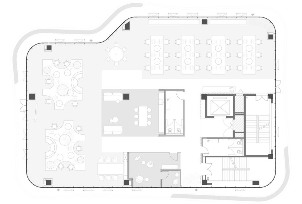
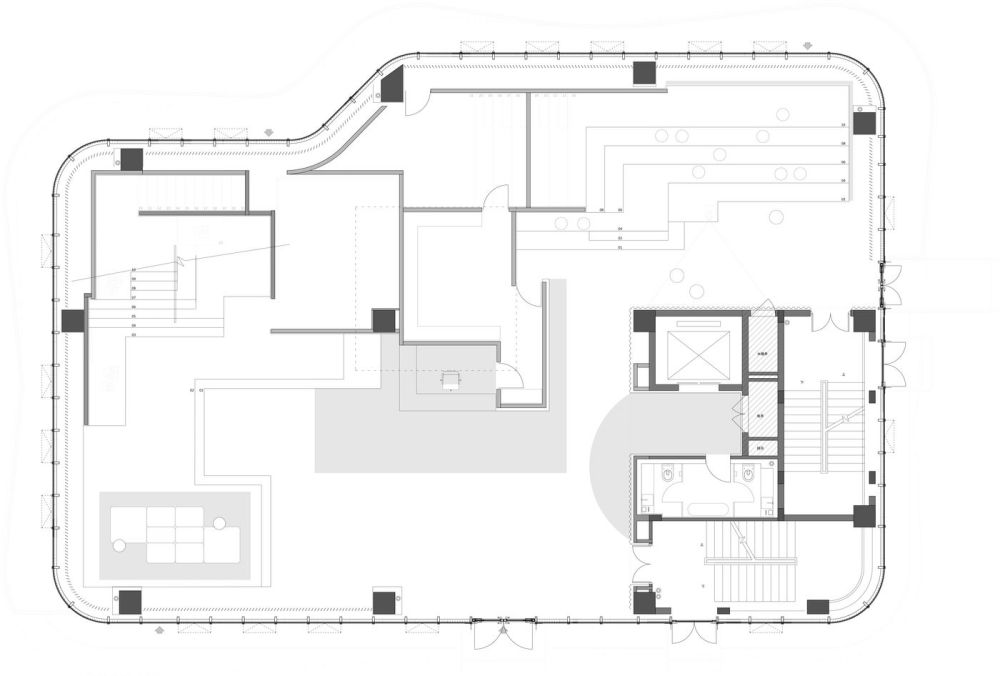
平面图

vsszan1143191618594224.jpg
vsszan1143191618594225.jpg
vsszan1143191618594226.jpg
vsszan1143191618594227.jpg
vsszan1143191618594228.jpg
vsszan1143191618594229.jpg



客户:上海天瑞金置业集团有限公司
状态:已完成(2024)
摄影:朱迪
专业知识:工作空间
版权:Ippolito Fleitz Group
团队:Halil Dogan、Peter Ippolito、上官缙文、叶鑫凯、吴星恒、李冠霖、李谊、杨之约、罗怡


    • 转自:Ippolito Fleitz Group
    • 图片©Ippolito Fleitz Group
    • 编辑:序赞网
    • 阅读原文
    AI文本分析中……
    AI色彩命名中……

    序赞Ai时刻等待着你的命令!~

    与Ai对话形式持续执行相关Ai智能体任务。

    暂时没有评论,你回一个呗!~

    您需要登录后才可以回帖 登录 | 注册序赞号

    快速回复 返回顶部 返回列表