尔音 | 菲拉设计 | 2025 | 中国浙江
vsszan197354220039151.png

尘世纷扰,而家是一方静谧天地。一人居住的家完全听凭个人喜好,将所喜之物、所爱风格实现于当下。包容姿态的家居空间在硬装上是克制开放的,而在软装饰品上可见极繁主义的身影,如繁花在夏野疯长,复古与顿感家具交融,带着时光的温柔呓语,细腻温馨之境显现。每一次归家,皆是与自我倾心对话,于静谧之中感悟生活的醇厚悠长。
vsszan197354220039152.png
客厅 / Living Room
vsszan197354220039153.png
客厅 / Living Room
vsszan197354220039154.png
客厅 / Living Room
vsszan197354220039155.png
客厅 / Living Room
vsszan197354220039156.png
客厅 / Living Room复古旋律串联起整个家居调性,以黑、米、木色为主,温润醇厚的色彩带来的空间故事感如同夏日山间的万物恣意生长,饱满的情绪抚慰着居住者的灵魂。餐厅与客厅的部分隔墙敲掉之后,空间更加开阔客餐厅互动紧密,拱形门梁与拱形置物架相呼应呈秩序性排列,丰富空间的视觉结构增添家居的浪漫情调。

vsszan197354220039157.png
客厅 / Living Room
vsszan197354220039158.png
客厅 / Living Room
vsszan197354220039159.png
客厅 / Living Room
vsszan1973542200391510.png
客厅 / Living Room
vsszan1973542200391511.png
客厅 / Living Room

更换原本地砖代之以木地板,拆除原石材电视背景墙,以复古慵懒的腔调重塑空间氛围。运用浪漫法式线条、梁托灯盘虎头线元素在硬装上增加细节美感,妙用对称性美学壁炉搭配木饰面展览架,沙发背景墙美而松弛。与左侧门廊的艺术处理,处处见证着家居的细腻温润,每一隅每一帧都可捕捉到专属这个家的艺术气息。

vsszan1973542200391512.png
客厅 / Living Room
vsszan1973542200391513.png
客厅 / Living Room
vsszan1973542200391514.png
客厅 / Living Room
vsszan1973542200391515.png
客厅 / Living Room
vsszan1973542200391516.png
客厅 / Living Room不喜过于细巧的家具取之以顿感家具,糅合复古欧式元素,桂黄色地毯、墨绿色弧形沙发、圆润敦厚的小边几、精心挑选的各种摆件画作......,极繁绮丽亦是长久主义,体积小巧的家具饰品带给家轻松调动的随性感,常住常变常更新,居家的过程,人物与空间一同成长变化。

vsszan1973542200391517.png
客厅 / Living Room
vsszan1973542200391518.png
客厅 / Living Room
vsszan1973542200391519.png
客厅 / Living Room
vsszan1973542200391520.png
客厅 / Living Room
vsszan1973542200391521.png
餐厅 / Dining Room

餐厅原飘窗位置改做橱柜,转变为西厨操作台,右侧借用衣帽间面积外推增加嵌入式冰箱与厨房家电,提升清洗备餐的操作空间与便利性,在不争不抢间巧用区域特点在餐厅增加西厨功能,而餐厅仅以圆形餐桌便在这方圆之内表明空间主权,就餐空间从未丢失过它的焦点,享受用餐的仪式感。

vsszan1973542200391522.png
餐厅 / Dining Room
vsszan1973542200391523.png
餐厅 / Dining Room
vsszan1973542200391524.png
餐厅 / Dining Room
vsszan1973542200391525.png
餐厅 / Dining Room
vsszan1973542200391526.png
主卧 / Master Bedroom

主卧以弧形顶面、法式线条勾勒硬装结构美感,没有喧嚣的冗赘笔画,空间细节已然丰富起来。调整主卧门位置并调转床头方向,床尾增加一整面衣柜强化收纳,解决主卧储物欠佳的问题。罗马柱式床头柜搭配琉璃灯,中古转角柜及一幅挂画点缀,故事便已完整,星河璀璨交织的宏大亦敌不过当下一隅的细腻救赎。

vsszan1973542200391527.png
主卧 / Master Bedroom
vsszan1973542200391528.png
‍主卧 / Master Bedroom
vsszan1973542200391529.png
主卧 / Master Bedroom
vsszan1973542200391530.png
次卧 / Second Bedroom

vsszan1973542200391531.png
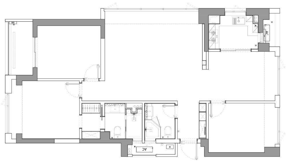
原始图
vsszan1973542200391532.png
平面图


·精装改造前后对比·

vsszan1973542200391533.png
vsszan1973542200391534.png
vsszan1973542200391535.png
vsszan1973542200391536.png

软装配饰 Soft Decoration Accessories

vsszan1973542200391537.png
vsszan1973542200391538.png
vsszan1973542200391539.png


  • 设计机构 / 菲拉设计
  • 项目类型 / 精装改造
  • 施工单位 / 菲拉设计
  • 项目地址 / 浙江杭州· 绿城桂冠东方
  • 户型 / 三室两厅
  • 面积 / 119㎡
  • 转自:菲拉设计
  • 图片©菲拉设计
  • 编辑:序赞网
  • 阅读原文

AI文本分析中……
AI色彩命名中……

序赞Ai时刻等待着你的命令!~

与Ai对话形式持续执行相关Ai智能体任务。

syhgdesign2025-6-16 01:22:47
感谢楼主辛苦分享
您需要登录后才可以回帖 登录 | 注册序赞号

快速回复 返回顶部 返回列表