ODA | KIDZ | 2025 | 阿联酋
vsszan47253211520071.jpg
    ODA | Georgian Cuisine Restaurant2025 | 166 sq.m
      Architects: Viktor Aurov, Ekaterina Legostaeva, Maria Soboleva, Natalia MeleshkinaPhotography: Varvara Toplennikova
        vsszan47253211520072.jpg
            We were approached by the owner of the Georgian restaurant chain with a request to design a new restaurant located within a residential complex.
                axonometry
                      vsszan47253211520073.png
                          However, during our initial site visit, we realized the potential to create something truly unique. This marked the beginning of a new restaurant — with its own name, design, menu, and story.
                              vsszan47253211520074.jpg
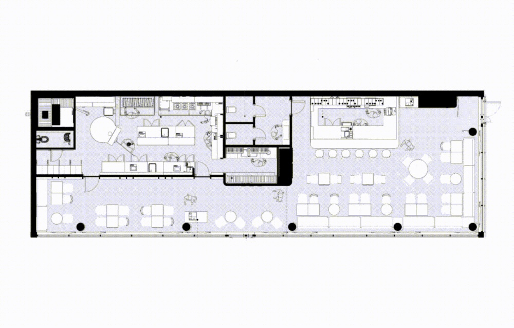
                                    plan ↓
                                    vsszan47253211520075.gif
                                      Our main challenge was to convey the spirit of Georgia without resorting to clichés often found in other Georgian establishments. To achieve this, we conducted a deep, sensory exploration of the country’s rich and multifaceted culture, nature, and spiritual heritage in order to create a space with a distinctive atmosphere.
                                            vsszan47253211520076.jpg
                                            vsszan47253211520077.jpg
                                                  ↓ wc
                                                  vsszan47253211520078.jpg
                                                  vsszan47253211520079.jpg
                                                  ↑  bar
                                                    ​​​​​​​
                                                              It was important for us to reflect the many layers of Georgia — not only its ancient and Soviet past, but also its modern, progressive, and youthful side. This led us to the idea of a minimalist and contemporary space enriched with carefully curated elements, each carrying symbolic meaning.
                                                                    vsszan472532115200710.jpg
                                                                        The main hall and bar capture the feeling of a traditional Georgian home and communal feast. We used wood, textiles, and tactile materials in warm natural tones. The entryway wardrobe merges two eras: its form is reminiscent of modernist reliefs, while warm wood with traditional carvings pays homage to Georgia’s ancient past.
                                                                              vsszan472532115200711.jpg
                                                                              vsszan472532115200712.jpg
                                                                                  The bar is designed as a traditional wine cellar, where each bottle is displayed like a work of art, emphasizing the country’s rich winemaking heritage. The furry chairs symbolize Georgia’s sheep farming traditions — highlighting the cultural importance of wool, milk, and yarn-based crafts.
                                                                                        vsszan472532115200713.jpg
                                                                                            Wall impressions are a fusion of traditions, combining religious symbols and figures from Georgian temples with animals inspired by Pirosmani’s paintings and motifs from Georgian script. A golden installation in the center of the hall references icon frames, underscoring the significance of religion in Georgian life. Inside, the restroom is designed with elements inspired by ancient temples — vaulted ceilings, reliefs, and decorative finishes.
                                                                                                    process ↓
                                                                                                          vsszan472532115200714.gif
                                                                                                          vsszan472532115200715.gif
                                                                                                          vsszan472532115200716.gif
                                                                                                                  ↓ project team
                                                                                                                  vsszan472532115200717.png
                                                                                                                  vsszan472532115200718.png
                                                                                                                  vsszan472532115200719.png
                                                                                                                      just be kidz
                                                                                                                        follow instagram
                                                                                                                          • 转载自:behance
                                                                                                                          • 作者:原文作者
                                                                                                                          • 图片@原文作者
                                                                                                                          • 语言:英语
                                                                                                                          • 编辑:序赞网
                                                                                                                          • 阅读原文
                                                                                                                          AI文本分析中……
                                                                                                                          AI色彩命名中……

                                                                                                                          序赞Ai时刻等待着你的命令!~

                                                                                                                          与Ai对话形式持续执行相关Ai智能体任务。

                                                                                                                          syhgdesign2025-5-23 04:02:45
                                                                                                                          感谢楼主辛苦分享
                                                                                                                          您需要登录后才可以回帖 登录 | 注册序赞号

                                                                                                                          快速回复 返回顶部 返回列表