绝世而独立 | 青禾设计 | 2025 | 中国河北
vsszan197988250002481.png



设计将白色和木色搭配,木饰面为空间增添了自然的温度。让空间更加亲切和宜居,同时也不失现代感,白色让房间看起来更加宽敞明亮。在这样的基调上,融入黑色块增加空间的层次,宝格丽黑大理石的点缀,进一步增强了空间的豪华感。

vsszan197988250002482.png
vsszan197988250002483.png
vsszan197988250002484.png
vsszan197988250002485.png
vsszan197988250002486.png
vsszan197988250002487.png
vsszan197988250002488.png
vsszan197988250002489.png
vsszan1979882500024810.png
vsszan1979882500024811.png
vsszan1979882500024812.png
vsszan1979882500024813.png


设计以白色覆盖空间,表达出丰富的情感,塑造出空间的扩张感和包容性。再以黑色块点缀,让空间更具现代感,黑白色的比例经设计师巧妙调和,营造出平衡稳定的视觉感受。

vsszan1979882500024814.png
vsszan1979882500024815.png
vsszan1979882500024816.png
vsszan1979882500024817.png


开放式的设计手法连接客厅两个区域,让光线在空间中自由流动,营造出更加宽敞明亮的居住体验。餐桌和沙发之间的距离恰到好处,既保证了功能区的独立,又不丧失整体感。

vsszan1979882500024818.png
vsszan1979882500024819.png
vsszan1979882500024820.png
vsszan1979882500024821.png
vsszan1979882500024822.png


主卧中黑色的含量增加,以柜体,床体以及墙体上的线条等形式出现,与白色背景的温柔和包容感形成鲜明对比。黑色以其特质烘托出空间独立,神秘的氛围,更加契合空间居住者精致从容优雅的个性。在设计师的严格把控下,材质的质感、色度,空间的尺度控制在恰当的范围内,空间的艺术观感和实用功能兼备。

vsszan1979882500024823.png
vsszan1979882500024824.png
vsszan1979882500024825.png
vsszan1979882500024826.png


空间有了软装的加入,布艺、皮质和金属等材质交织融合,创造出丰富的视觉效果,共同构成了一个精致时尚的空间。

落 地 对 照

vsszan1979882500024827.png
vsszan1979882500024828.png
vsszan1979882500024829.png
vsszan1979882500024830.png
vsszan1979882500024831.png

vsszan1979882500024832.png

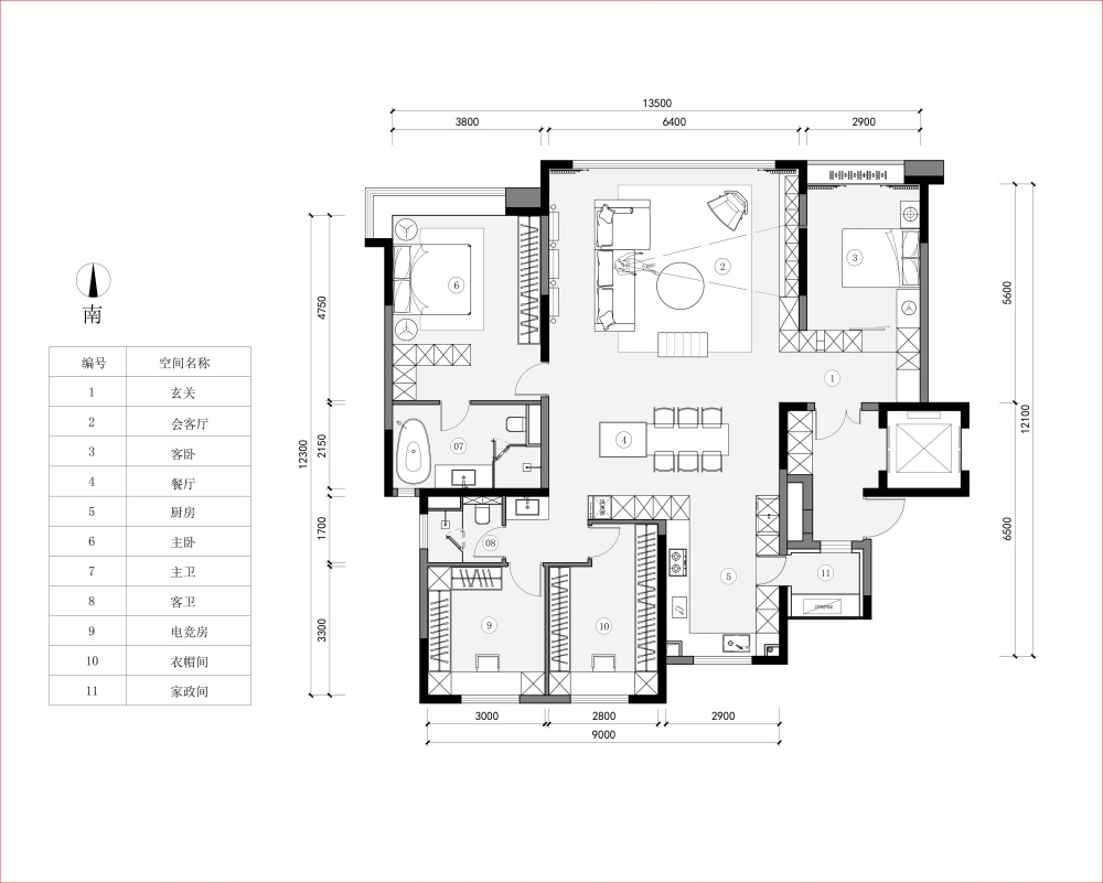
△原始户型

vsszan1979882500024833.png

△平面布置


项目名称|龙湖天奕
项目地址|中国 河北 石家庄
建筑面积|178平米
设计团队|石家庄青禾室内设计事务所

    • 转自:青禾设计
    • 图片©青禾设计
    • 编辑:序赞网
    • 阅读原文
    AI文本分析中……
    AI色彩命名中……

    序赞Ai时刻等待着你的命令!~

    与Ai对话形式持续执行相关Ai智能体任务。

    jiejieniuniu02025-5-26 22:30:43

    感谢楼主辛苦分享  
    感谢楼主辛苦分享  
    感谢楼主辛苦分享  
    ljwei10152025-5-27 09:28:26
    感谢分享  真不错
    您需要登录后才可以回帖 登录 | 注册序赞号

    快速回复 返回顶部 返回列表