Prime Park | Quadro Room | 2024 | 俄罗斯
  
实现于2024年10月现代,技术和简洁-这是看到他们未来的公寓,她的主人,一对年轻的夫妇,热衷于旅行,加密市场和现代艺术。负责室内设计的Quadro Room工作室考虑了客户的所有愿望,为视觉上谨慎的解决方案添加了动态的细节。“72平方米的公寓。米特放弃了白色盒子的装饰,但它被保守地分成了小房间,”建筑师说他们的第一印象。
vsszan115312260955541.jpg

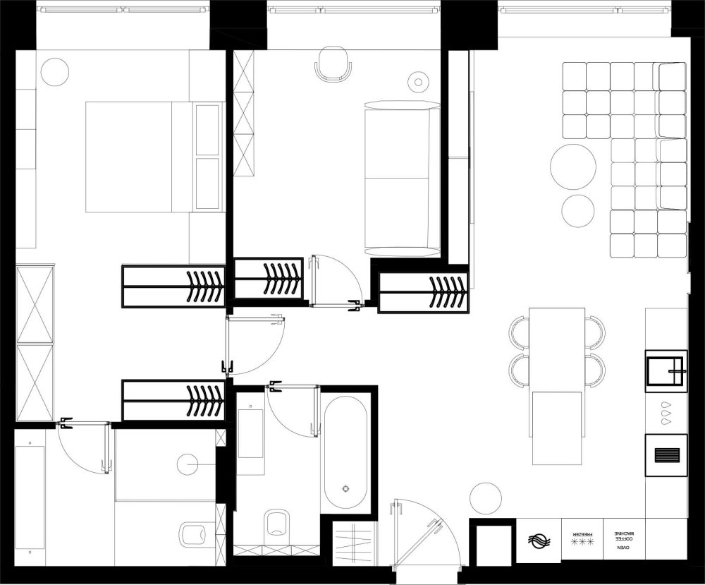
LAYOUT

vsszan115312260955542.jpg
vsszan115312260955543.jpg
vsszan115312260955544.jpg
重新规划有助于最有效地揭示其优势:大厅的墙壁被拆除,走廊与厨房客厅相连,以腾出空间并充满空气和光线。办公室的团队还能够在进入卧室时创建一个宽敞的更衣室,并在进入时找到一个橱柜空间,从而稍微缩小了办公室的面积。存储区和许多其他功能一样,包含了一个巨大的立方体。“为了他,我们设计了一个讲台,有一种不同寻常的纹理,让人想起陡峭的悬崖,这是一种感性的旅程,你可以在家里走,”建筑师补充道。
vsszan115312260955545.jpg
vsszan115312260955546.jpg
vsszan115312260955547.jpg
vsszan115312260955548.jpg
vsszan115312260955549.jpg
vsszan1153122609555410.jpg
对比的纹理和色调的结合使室内更加复杂和宽敞,丰富的灯光场景为冥想休息定制。温暖的木材软化了金属板野蛮的节奏,而平静的白色背景是一个干净的画布,在那里你可以看到相反的纹理和材料。黑暗面和光明面的交替让人想起了东方哲学对平衡和原则的永恒追求。许多项目是专门为木工车间的项目设计的。
vsszan1153122609555411.jpg
vsszan1153122609555412.jpg
vsszan1153122609555413.jpg
vsszan1153122609555414.jpg
vsszan1153122609555415.jpg
vsszan1153122609555416.jpg
vsszan1153122609555417.jpg
“这些都是结构上复杂的东西,需要计算,设计接头和节点,就像厨房里从岛上伸出的控制台台一样。细节对我们来说总是很重要的,另一个例子是令人难以置信的卧室浴室水龙头,结合了东方精神和西方技术。
vsszan1153122609555418.jpg
vsszan1153122609555419.jpg
vsszan1153122609555420.jpg
vsszan1153122609555421.jpg

IN PROGRESS

vsszan1153122609555422.jpg
vsszan1153122609555423.jpg
vsszan1153122609555424.jpg
vsszan1153122609555425.jpg
    • 转自:Quadro Room
    • 图片©Quadro Room
    • 编辑:序赞网
    • 阅读原文
    AI文本分析中……
    AI色彩命名中……

    序赞Ai时刻等待着你的命令!~

    与Ai对话形式持续执行相关Ai智能体任务。

    暂时没有评论,你回一个呗!~

    您需要登录后才可以回帖 登录 | 注册序赞号

    快速回复 返回顶部 返回列表