贵阳拾悦木作私定展厅 | 青禾设计 | 2025 | 中国贵州
vsszan198544170840531.png

项目的设计出发点并不只是单纯地“陈列产品”,而是希望通过空间营造一种氛围感,打造一个“能与人对话”、“让客户沉浸其中”的场域。让客户真正“走进木作、了解木作、感受木作”。设计将匠心、自然、人文、温度,这些特质在展厅层层解构与重组,最终呈现出极具个性与场景感的空间。
vsszan198544170840532.png
vsszan198544170840533.png
vsszan198544170840534.png
vsszan198544170840535.png
vsszan198544170840536.png
vsszan198544170840537.png
vsszan198544170840538.png
vsszan198544170840539.png
vsszan1985441708405310.png
vsszan1985441708405311.png
vsszan1985441708405312.png
vsszan1985441708405313.png
vsszan1985441708405314.png

展厅是一种具有生命力的空间表达。设计试图通过"场域精神"的营造,让这个展厅成为一个能够讲述故事、唤起共鸣的“精神栖息地”。一层的空间划分有意模糊“展示区”与“体验区”的界线,采用开放式布局与软隔断手法,增强空间开放性与自由性,让整个空间更有流动感。在这里,客户可以自由穿梭、自由停留,每一个空间节点都像是生活里的某一个片段。
vsszan1985441708405315.png
vsszan1985441708405316.png
vsszan1985441708405317.png
vsszan1985441708405318.png
vsszan1985441708405319.png
vsszan1985441708405320.png
vsszan1985441708405321.png
vsszan1985441708405322.png
vsszan1985441708405323.png
vsszan1985441708405324.png
vsszan1985441708405325.png
vsszan1985441708405326.png
vsszan1985441708405327.png
vsszan1985441708405328.png
vsszan1985441708405329.png
vsszan1985441708405330.png

在展厅的多个节点上,我们加入了生活场景设定——有模拟家庭厨房的木作台面展示,还有类似休闲空间的模块。这些生活场景强化了木作在生活中的真实角色,也让客户对“木作生活”的想象不再抽象。木作并不只是产品,它是一种精致生活方式的表达。我们希望借由这座展厅,向客户传递“木作不止是家具,它是一种生活态度”的理念。
vsszan1985441708405331.png
vsszan1985441708405332.png
vsszan1985441708405333.png
vsszan1985441708405334.png
vsszan1985441708405335.png
vsszan1985441708405336.png
vsszan1985441708405337.png
vsszan1985441708405338.png
vsszan1985441708405339.png
vsszan1985441708405340.png
vsszan1985441708405341.png
vsszan1985441708405342.png
vsszan1985441708405343.png
vsszan1985441708405344.png

正是通过这种“以人为本”的空间叙事方式,我们赋予了展厅更多人文精神,让其从展示场所转变为一处心灵之所,让客户在行走之间,自然进入品牌所构建的“生活剧场”。
vsszan1985441708405345.png
vsszan1985441708405346.png
vsszan1985441708405347.png
vsszan1985441708405348.png
vsszan1985441708405349.png
vsszan1985441708405350.png
vsszan1985441708405351.png
vsszan1985441708405352.png
vsszan1985441708405353.png
vsszan1985441708405354.png
vsszan1985441708405355.png
vsszan1985441708405356.png

展厅二层的露台设计成一个可以缓慢行走、自由驻足的小院。空间动线如林间小径,蜿蜒有致,没有强制性引导,更没有过度装饰,每一处转角都藏着一种情绪的释放。

The terrace on the second floor of the showroom is designed as a small courtyard where you can walk slowly and stop freely.The spatial dynamic line is like a forest path, meandering, without compulsory guidance, not to mention excessive decoration, every corner hides a kind of emotional release.

vsszan1985441708405357.png
vsszan1985441708405358.png

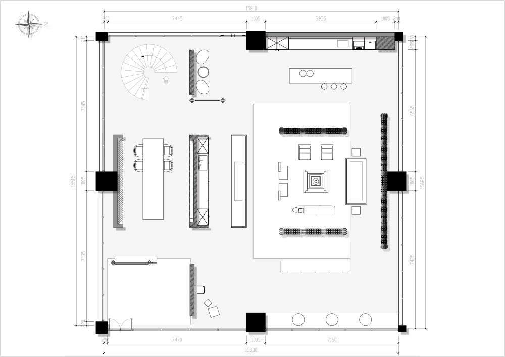
△原始户型
vsszan1985441708405359.png
vsszan1985441708405360.png

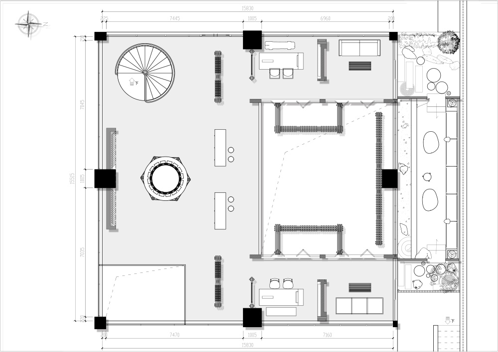
△平面布置

  • 项目名称|贵阳拾悦木作私定展厅
  • 项目地址|中国 贵州 贵阳
  • 建筑面积|436平米
  • 设计团队|石家庄青禾室内设计事务所
  • 转自:青禾设计
  • 图片©青禾设计
  • 编辑:序赞网
  • 阅读原文
AI文本分析中……
AI色彩命名中……

序赞Ai时刻等待着你的命令!~

与Ai对话形式持续执行相关Ai智能体任务。

甴柒甴柒2025-6-20 00:08:10
感谢楼主辛苦分享
您需要登录后才可以回帖 登录 | 注册序赞号

快速回复 返回顶部 返回列表