在原木中留白 | 印际空间设计 | 2025 | 中国山东
vsszan198574180027331.png

充满未知亦繁华乱眼的世界,人们栖息其中,错综交杂着其他的物质,一切都被蒙上一层面罩。褪去遮蔽,回归真我,造一处静室以安然祥和的感知时间的流淌。
vsszan198574180027332.png
vsszan198574180027333.png
vsszan198574180027334.png
“少即是多”的哲思是空间美学中出最为贴切的逻辑,不堆砌,不赘述,恰到好处的呼吸感让空间每一寸肌理都在讲述着张力与活力。
vsszan198574180027335.png
vsszan198574180027336.png
vsszan198574180027337.png
不流于表面,摒弃多余装饰,以留白赋予空间思考。将自然的肌理、光影的流转和空间的呼吸感,化作触手可及的奢华,在岁月中愈显醇厚。宁静奢华”,以光影、材质与留白构建诗意场景。
vsszan198574180027338.png
vsszan198574180027339.png
vsszan1985741800273310.png
vsszan1985741800273311.png
vsszan1985741800273312.png

将收纳升华至艺术化的秩序感,功能被优雅地隐于无形。木饰面柜体,宛如建筑结构的一部分,线条笔直利落,表面温润细腻。生活的痕迹悄然隐入精密的木作之后,只留下空间的呼吸感与令人心安的秩序美学。
vsszan1985741800273313.png
vsszan1985741800273314.png
vsszan1985741800273315.png
原木在留白中铺陈出自然柔和的暖意,以克制的笔触润物其中,在纯净温和中感知生活的多样与淡然,演绎出烟火人家幽静清雅的艺术场域。
vsszan1985741800273316.png
vsszan1985741800273317.png
vsszan1985741800273318.png
vsszan1985741800273319.png

在繁复纷杂的世界里,给生活做减法,抛却多余的干扰,增加留白的想象,让空间和人一样都能静静的,倾听内心的声音。
vsszan1985741800273320.png
vsszan1985741800273321.png
vsszan1985741800273322.png

简约明朗的表达着自我态度,在居室语言中最和谐且自然不过。将静谧与雅致作为最贴切亦或最直观的空间语言,用平静与柔和唤醒身心在空间中的对话,絮语浅浅,却直抵内心。

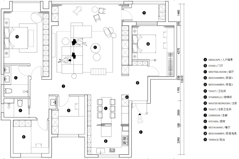
平面图
vsszan1985741800273323.png

  • 设计机构|印际空间设计
  • 材料说明|艺术漆、木饰面、木地板
  • 项目地址|山东
  • 项目面积|175㎡
  • 完成时间|2025年5月
  • 转自:印际空间设计
  • 图片©印际空间设计
  • 编辑:序赞网
  • 阅读原文
AI文本分析中……
AI色彩命名中……

序赞Ai时刻等待着你的命令!~

与Ai对话形式持续执行相关Ai智能体任务。

阿茂_design2025-6-18 12:25:57
感谢分享  真不错
甴柒甴柒2025-6-19 22:33:59
感谢楼主辛苦分享
您需要登录后才可以回帖 登录 | 注册序赞号

快速回复 返回顶部 返回列表