雪蕾香氛博物馆 | 立品设计 | 2025 | 中国广东

中国知名香氛品牌雪蕾,邀请擅长品牌体验研究的设计团队「立品设计」,耗时三年共同打造了全球最大香专题互动型博物馆——雪蕾香氛博物馆。馆内近20个展区,50余种互动装置,超300处闻香点位,六层空间板块的不同功能和主题,通过创新性的香氛体验动线串联,引领观众重新解读香与自然、历史、人文的深层联结。立品设计将「以香感知世界」作为博物馆的核心理念,通过体验创新思维,突破传统展览边界,构建一场以香气为线索的沉浸式香文化体验之旅。
▽项目外观© 形在空间摄影HereSpace 贺川

vsszan203523101109231.jpg

▽外观夜览© 形在空间摄影HereSpace 贺川

vsszan203523101109232.jpg

立品将博物馆公共空间大面积留白,依托原有建筑框架,同时融入品牌视觉的基础概念,将香气流动与扩散的轨迹抽象提炼,以中庭为中心,通过自然光影与建筑空间的呼应,使空间形成连贯而独特的视觉表达,进一步营造首层的通透性与轻盈感。
▽入口大厅© 形在空间摄影HereSpace 贺川

vsszan203523101109233.jpg

贯穿五层空间的“全球最大AI调香装置”将视觉体验与互动成果贯穿博物馆。位于一楼的AI调香机器与沿着楼梯垂直排列的香精罐精密连接,是博物馆「气味叙事」的核心载体,观众可在开启参观之旅时,获得一张记录闻香喜好的“闻香卡”,借助场馆内与场景相结合的300多处闻香点和评分系统,采集香气偏好数据,经过智能分析后生成个性化香味报告数据,并被汇集至一楼调香机器,最终制成专属香氛。
▽装置分析图© 立品设计

vsszan203523101109234.gif

▽装置剖立面© 立品设计

vsszan203523101109235.jpg

▽AI调香机器© 陈荣清、温惠健

vsszan203523101109236.gif
vsszan203523101109237.gif

▽贯穿五层的装置© 形在空间摄影HereSpace 贺川

vsszan203523101109238.jpg

▽首层公共区域© 形在空间摄影HereSpace 贺川

vsszan203523101109239.jpg

▽楼梯处看向装置© 形在空间摄影HereSpace 贺川

vsszan2035231011092310.jpg
vsszan2035231011092311.jpg

▽点评系统© 形在空间摄影HereSpace 贺川

vsszan2035231011092312.jpg

首层作为公共区域,集零售、服务、调香装置板块于一体,形成香氛文化的“体验入口”。楼梯既是公区核心动线,也是空间叙事中香气扩散的起点。中空处的弧形墙梯与倾泻而下的自然光交互映衬,形成入口处最生动的空间体验。咖啡区融入一层大空间,仅依靠休憩区的墙体错落设计,将外部光线自然引入,让光影成为空间的动态部分。
▽弧形墙梯© 形在空间摄影HereSpace 贺川

vsszan2035231011092313.jpg
vsszan2035231011092314.jpg
vsszan2035231011092315.gif

▽咖啡吧© 形在空间摄影HereSpace 贺川

vsszan2035231011092316.jpg

▽咖啡吧旁的休息区域© 形在空间摄影HereSpace 贺川

vsszan2035231011092317.jpg

▽商品售卖区© 形在空间摄影HereSpace 贺川

vsszan2035231011092318.jpg
vsszan2035231011092319.jpg

香气无形,却代表人类最古老的文明密码。二层及三层空间常设主题展览「世界用香博览」以嗅觉为体验维度,从古文明溯源到中华香文化,从香水工业的发展历程到香料的发展简史,通过四个展厅的引导和体验,梳理东西方千年用香脉络,逐步加深观众对香这一独特载体的认知。
▽轴测分析图© 立品设计

vsszan2035231011092320.jpg

▽古老文化展示© 形在空间摄影HereSpace 贺川

vsszan2035231011092321.jpg
vsszan2035231011092322.jpg

▽梳理东西方千年用香脉络© 陈荣清、温惠健

vsszan2035231011092323.gif
vsszan2035231011092324.gif

▽展厅概览© 形在空间摄影HereSpace 贺川

vsszan2035231011092325.jpg
vsszan2035231011092326.jpg
vsszan2035231011092327.jpg

▽不同时代地域的香文化© 形在空间摄影HereSpace 贺川

vsszan2035231011092328.jpg
vsszan2035231011092329.jpg
vsszan2035231011092330.jpg

▽原材料展示© 形在空间摄影HereSpace 贺川

vsszan2035231011092331.jpg

四楼专题展厅「香的通感」,以五感为线索,通过一系列关于香气的趣味场景和感官体验,希望观众在游戏化探索中理解香气如何影响多重感知的神经机制,开启香味与人类五感的想象世界。
▽沉浸式体验© 陈荣清、温惠健

vsszan2035231011092332.gif
vsszan2035231011092333.gif

▽专题展厅© 形在空间摄影HereSpace 贺川

vsszan2035231011092334.jpg
vsszan2035231011092335.jpg

▽体验装置© 形在空间摄影HereSpace 贺川

vsszan2035231011092336.jpg

▽体验装置© 形在空间摄影HereSpace 贺川

vsszan2035231011092337.jpg

▽气味餐厅© 形在空间摄影HereSpace 贺川

vsszan2035231011092338.jpg
vsszan2035231011092339.jpg

在香气旅途的终点,智能报告中都记录着每位观众的闻香足迹。位于参观动线最末端的DIY调香工坊,以圆柱形岛台为最小单位,提供从香水、香薰到香氛蜡烛的个性化创作与定制DIY平台,满足观众在观展结束后想要调配一瓶专属香水的创作欲和探索欲。
▽DIY调香© 陈荣清、温惠健

vsszan2035231011092340.gif
vsszan2035231011092341.gif

▽产品定制区© 形在空间摄影HereSpace 贺川

vsszan2035231011092342.jpg

▽香水工坊© 形在空间摄影HereSpace 贺川

vsszan2035231011092343.jpg

▽香水工坊近景© 形在空间摄影HereSpace 贺川

vsszan2035231011092344.jpg
vsszan2035231011092345.jpg

▽获取成品© 形在空间摄影HereSpace 贺川

vsszan2035231011092346.jpg
vsszan2035231011092347.jpg

立品以「气味叙事」为空间线索,通过层次递进式场景、个性化服务与沉浸交互,将抽象香文化具象化为可游走的立体图景。我们相信,这种融合多维复合型体验正是未来文化空间的核心趋势——公众需求正从被动接收转向深度共创,而技术驱动的沉浸交互,将持续突破文化表达的边界。
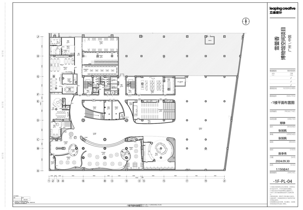
▽负一楼平面图© 立品设计

vsszan2035231011092348.jpg

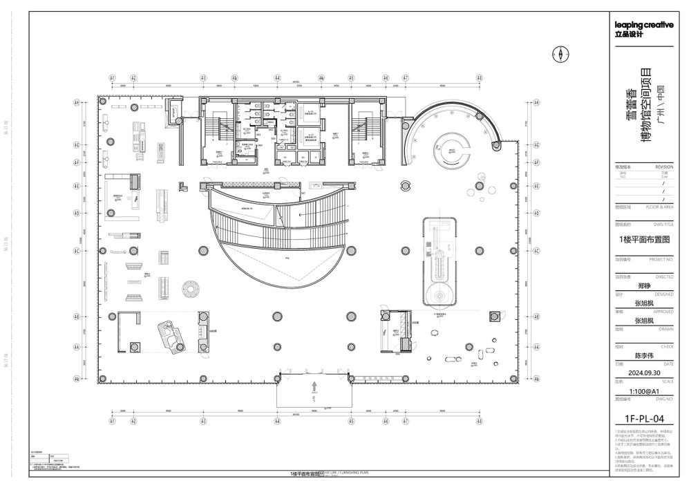
▽一楼平面图© 立品设计

vsszan2035231011092349.jpg

▽二楼平面图© 立品设计

vsszan2035231011092350.jpg

▽三楼平面图© 立品设计

vsszan2035231011092351.jpg

▽四楼平面图© 立品设计

vsszan2035231011092352.jpg

vsszan2035231011092353.jpg
vsszan2035231011092354.jpg
vsszan2035231011092355.gif
vsszan2035231011092356.jpg
vsszan2035231011092357.gif
vsszan2035231011092358.gif
vsszan2035231011092359.jpg
vsszan2035231011092360.jpg


项目信息
项目名称:雪蕾香氛博物馆设计全案
项目地点:中国 广州
项目面积:7000㎡
设计公司:立品设计
合作单位
策展单位:雪蕾香氛博物馆
建筑设计单位:深圳华汇建筑设计院
灯光设计单位:汉都设计顾问(深圳)有限公司
特别鸣谢
项目客户:雪蕾香氛博物馆
出镜模特:梁绮娆、Lucas
图片摄影:形在空间摄影HereSpace 贺川
视频摄影:陈荣清、温惠健

AI文本分析中……
AI色彩命名中……

序赞Ai时刻等待着你的命令!~

与Ai对话形式持续执行相关Ai智能体任务。

95qabc2025-9-10 20:09:21

谢谢分享!!!谢谢分享!
syhgdesign2025-9-13 00:48:32
感谢楼主辛苦分享
您需要登录后才可以回帖 登录 | 注册序赞号

快速回复 返回顶部 返回列表