龙湖滨江云河颂 | 宏福樘设计 | 2025 | 中国四川


繁华的都市中,追求“静”仿佛成了刻入生活的本能。居者渴望能够通过材料、色彩、光影的融合,把家打造为具有视觉识别与功能并存的精神场域。

vsszan204261280016032.png


从居者的需求出发,全屋仅做局部调整,通过改换、整合,打造更契合生活习惯的居住空间。黑与白的纯粹交织,铸就一个具有识别性的沉浸场域。留白成为与生活对话的余韵,融入石材、金属等材质反差营造丰富的感官体验,共同筑就一个舒适、宁静且富有张力的居所。

vsszan204261280016033.png


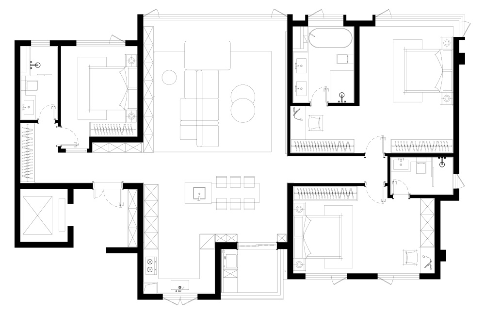
●  户型问题
1. 原始布局无储物规划,不满足日常收纳需求。

vsszan204261280016034.png


●  改造思路
1. 改换临玄关次卧门洞位置,释放部分面积,改造为家政区使用。
2. 将两间次卧合并,改换次卫门洞,并将其纳入,打造一个满足休憩、收纳、洗漱的舒适套房。
3. 主卧定制柜体,完整收纳需求。

vsszan204261280016035.png


通过几何体块交错塑造一个兼具功能与视觉审美的居住空间,在纯粹中感知放松与归属。

vsszan204261280016037.png
vsszan204261280016038.png


释放次卧部分面积,改造为家政区使用,黑白色块的极致对比,打造深邃、沉浸的视觉感受,自然天光洒入,放松从归家这一刻开始。

vsszan204261280016039.png
vsszan2042612800160310.gif

vsszan2042612800160311.png
vsszan2042612800160312.png


围绕豆腐块沙发,形成灵动洄游动线。社交、观影、阅读,场景随心而变。黑白对比赋予视觉张力,大片留白则注入静谧能量。于此,动静皆宜,感受身心彻底舒展的自在状态。

vsszan2042612800160313.png
vsszan2042612800160314.gif

vsszan2042612800160315.png


统一色调营造深邃沉浸的用餐氛围,岛台与餐桌一体衔接,让用餐、休闲、办公等场景自由切换。融入石材点缀,以独特肌理诠释不凡的生活质感,于每一餐中体味从容。

vsszan2042612800160316.png

vsszan2042612800160317.gif
vsszan2042612800160318.png
vsszan2042612800160319.png


定制储物系统满足收纳需求,延续黑白对比的纯粹底色。几何体块交错,金属材质点缀,恰到好处的留白与流转的光影,勾勒简约高级感。床尾置物架,摆放读物与摆件,丰盈日常,共筑一方静谧天地,让人彻底沉静,品味生活余韵。

vsszan2042612800160320.png
vsszan2042612800160321.png
vsszan2042612800160322.png


合并空间打造专属孩子的梦幻堡垒,树屋造型柜体点亮童趣,纯白与原木色营造安全温馨感。这里不仅是休憩与学习的天地,更是想象力自由生长的秘密基地,守护纯粹快乐。

vsszan2042612800160323.png


纯白底色与阑夜黑几何色块交错,构成高级视觉。光影流动,丰富层次的同时,晕染出宁静氛围,治愈身心。


DESIGNER 设计师:张宇翔
EDITOR 撰稿:玲玲
RENDER 渲染:林治
GRAPHIC DESIGNER 平面:珺珺

    • 转自:宏福樘设计
    • 图片©宏福樘设计
    • 编辑:序赞网
    • 阅读原文
    AI文本分析中……
    AI色彩命名中……

    序赞Ai时刻等待着你的命令!~

    与Ai对话形式持续执行相关Ai智能体任务。

    syhgdesign2025-9-29 00:49:54
    感谢楼主辛苦分享
    您需要登录后才可以回帖 登录 | 注册序赞号

    快速回复 返回顶部 返回列表