Lavan别墅 | Fran Silvestre Arquitectos | 2024 | 西班牙

Villa Lavan是一座由两个单层、狭长体量构成的住宅,旨在赋予整体以人性化的尺度。这两个体量之间呈轻微的旋转关系,这一策略主要出于三方面的考虑。
▽住宅鸟瞰©Fernando Guerra

vsszan204267281043481.jpg
vsszan204267281043482.jpg
vsszan204267281043483.jpg


首先,是为了优化住宅各层的景观视野:底层包含日间活动空间,朝向花园布置;而上层则布置夜间休憩空间,面向仅在该高度才能望见的邻近湖泊。其次,是为了提供遮荫的室外空间,以抵御马德里强烈的日照。体量的旋转生成了带顶的露台。第三个原因或许更为主观,但同样重要:赋予住宅独特的身份。体量之间的倾斜关系在一日之中形成不断变化的三角形阴影,增添了空间的动态感。

▽模型©Fran Silvestre Arquitectos

vsszan204267281043484.jpg
vsszan204267281043485.jpg

▽体量之间的倾斜关系©Fernando Guerra

vsszan204267281043486.jpg
vsszan204267281043487.jpg

▽形成不断变化的阴影©Fernando Guerra

vsszan204267281043488.jpg


每个体量的两侧为厚重的承重墙,另两侧则完全敞开,从而便于采光、通风与南北向的交叉通风。交通核心横向布置,将与高处邻居相邻的后侧划分为相对更具公共性的区域。

▽便于采光、通风与南北向的交叉通风©Fernando Guerra

vsszan204267281043489.jpg

▽客厅区域©Fernando Guerra

vsszan2042672810434810.jpg

▽落地窗带来宽旷视野和采光©Fernando Guerra

vsszan2042672810434811.jpg
vsszan2042672810434812.jpg


体量的旋转关系还体现在上层的圆形天窗中,该天窗由整体浇筑而成。在地下室则设置了车库以及健康与康养空间,并通过天窗引入自然采光,以符合当地的城市规划规定。

▽通往二层楼梯©Fernando Guerra

vsszan2042672810434813.jpg

▽二层的圆形天窗©Fernando Guerra

vsszan2042672810434814.jpg
vsszan2042672810434815.jpg
vsszan2042672810434816.jpg

▽整体浇筑而成的圆形天窗©Fernando Guerra

vsszan2042672810434817.jpg
vsszan2042672810434818.jpg

▽地下室康养空间©Fernando Guerra

vsszan2042672810434819.jpg

▽地下室天窗引入自然光线©Fernando Guerra

vsszan2042672810434820.jpg

▽浴室空间©Fernando Guerra

vsszan2042672810434821.jpg


本项目的构思源自“跨世代性”的理念。目标是打造一种清晰而持久的空间结构,一份可感知的遗产,能够被不同世代的居住者依据当下需求加以重新诠释。住宅在技术、功能与美学层面都力求长期保持相关性。面对快速的淘汰趋势,建筑在此选择了“持久”。在这一意义上,采用天然且高度耐久的材料不仅能使建筑随时间增值,也能激发人们对空间的呵护。而被呵护的空间,才会得以长存。

▽夜晚灯光下的住宅©Fernando Guerra

vsszan2042672810434822.jpg
vsszan2042672810434823.jpg
vsszan2042672810434824.jpg

▽夜晚灯光下的住宅鸟瞰©Fernando Guerra

vsszan2042672810434825.jpg

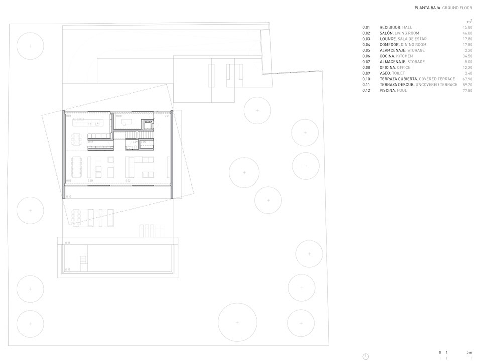
▽地下室平面©Fran Silvestre Arquitectos

vsszan2042672810434826.jpg

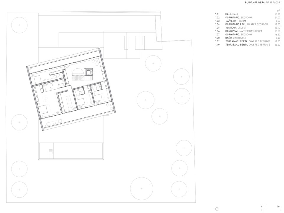
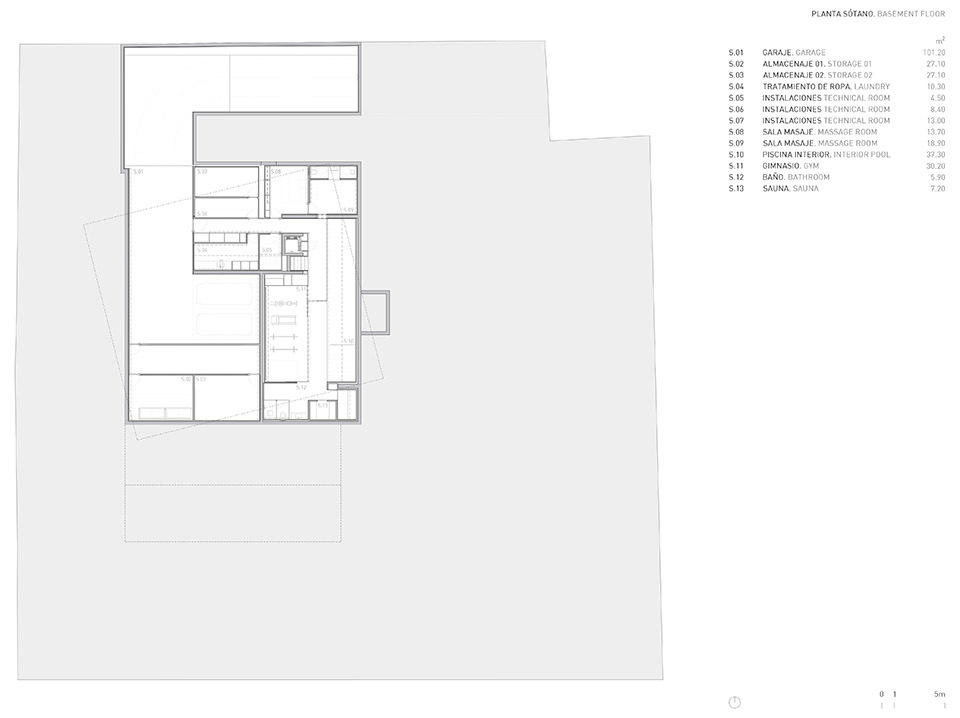
▽一层平面©Fran Silvestre Arquitectos

vsszan2042672810434827.jpg

▽二层平面©Fran Silvestre Arquitectos

vsszan2042672810434828.jpg

▽屋顶平面©Fran Silvestre Arquitectos

vsszan2042672810434829.jpg

▽东立面及南立面©Fran Silvestre Arquitectos

vsszan2042672810434830.jpg

▽剖面©Fran Silvestre Arquitectos

vsszan2042672810434831.jpg
vsszan2042672810434832.jpg
vsszan2042672810434833.jpg
vsszan2042672810434834.jpg
vsszan2042672810434835.jpg
vsszan2042672810434836.jpg
vsszan2042672810434837.jpg
vsszan2042672810434838.jpg
vsszan2042672810434839.jpg
vsszan2042672810434840.jpg
vsszan2042672810434841.jpg
vsszan2042672810434842.jpg
vsszan2042672810434843.jpg
vsszan2042672810434844.jpg
vsszan2042672810434845.jpg
vsszan2042672810434846.jpg
vsszan2042672810434847.jpg
vsszan2042672810434848.jpg
vsszan2042672810434849.jpg
vsszan2042672810434850.jpg
vsszan2042672810434851.jpg
vsszan2042672810434852.jpg
vsszan2042672810434853.jpg
vsszan2042672810434854.jpg


ARCHITECTURE FRAN SILVESTRE ARQUITECTOS
PROJECT TEAM Fran Silvestre | Principal in Charge
María Masià | Collaborating Architect
Estefanía Soriano | Collaborating Architect
Carlos Lucas | Collaborating Architect
INTERIOR DESIGN ALFARO HOFMANN
DEVELOPER 37 THREESEVEN
TECHNICAL ARCHITECT Jorge Carrión PonceJosé Miguel Cota San Andrés
STRUCTURAL ENGINEER Estructuras Singulares
PHOTOGRAPHER Fernando Guerra
LOCATION La Moraleja, Madrid
YEARS OF CONSTRUCTION 2022 – 2024
BUILT AREA 1034 m2

AI文本分析中……
AI色彩命名中……

序赞Ai时刻等待着你的命令!~

与Ai对话形式持续执行相关Ai智能体任务。

暂时没有评论,你回一个呗!~

您需要登录后才可以回帖 登录 | 注册序赞号

快速回复 返回顶部 返回列表