150㎡柚木色的中古家 | 研己实景 | 2025 | 中国安徽
vsszan204351020009371.png


拍摄的时候,屋主们已经入住一段时间了,可以看见他们的生活痕迹:软蓬蓬的沙发抱枕,有着阅读痕迹的书籍,精心排列的照片墙,长桌上零零碎碎的手工材料……走进这个家,仿佛被一条温暖的手工编织品包裹,柚木的温润光泽中,感受到日常的惬意与轻松。

# 轻盈、自在、舒适
PART 1
客厅

vsszan204351020009372.gif
vsszan204351020009373.png
vsszan204351020009374.png


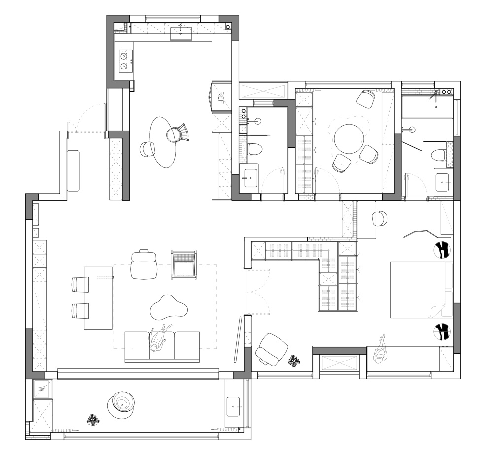
这回客厅的主角不是电视,而是书桌,围合式布局的沙发,将家里最宽阔的一片空间留给阅读、交流、创造力。

vsszan204351020009375.png
vsszan204351020009376.png


简约而有质感的白墙木地板,阳台梁体用木纹板装饰,与骨骼线柜子呼应,约45厘米深的柜体提供充足储物,上方留空,会让空间更有“呼吸感”,也便于空调检修。开放柜用中古黄与黑色平衡整体的色彩关系。

vsszan204351020009377.png
vsszan204351020009378.png


好用的中古风搭配思路——保留天然纹理与温润质感的大量木材,绿色、黄色等明亮的色彩跳跃式点缀,玻璃与金属营造轻轻盈感。
墙面的装饰画、挂画,造型别致的边几,填满柜子的书籍摆件,则来自于屋主的日常,填充进他们的个性色彩。

# 烟火气与时髦感兼得
PART 2
餐厨

vsszan204351020009379.gif
vsszan2043510200093710.png
vsszan2043510200093711.png


我们希望硬装简约有质感,并尽量保留层高,所以我们选择用蓝色斜顶造型隐藏空调管路,通过颜色碰撞让白、木为主的中性色空间更加丰富,搭配上餐厅软装,轻松营造出别致的时髦感。

vsszan2043510200093712.png
vsszan2043510200093713.png


拆除厨房隔墙,木地板顺光竖铺,让整个公区更连贯开阔。摇臂灯、圆桌、餐椅,也用简约的造型、木材与金属元素与客厅软装呼应。

vsszan2043510200093714.png
vsszan2043510200093715.png


想要餐厨好收纳,一定要做好分区收纳。餐边柜结合骨骼线,让一个个抽屉更有秩序感。
冰箱、蒸烤箱嵌入“盒子”,视觉上是一个干净利落的体块,而前后错落,可以在立面上创造出丰富的层次感,打破单一的平面,让空间更有深度。

vsszan2043510200093716.png


厨房在墙面特意运用木纹板过渡,弱化承重柱存在感。结合屋主身高,做高低台设计,台盆左下角将洗碗机全嵌入,统一橱柜立面。

# 猫咪和阳光都柔软
PART 3
主卧

vsszan2043510200093717.gif
vsszan2043510200093718.gif
vsszan2043510200093719.png


将南次卧合并进主卧做衣帽间,主卧入口移动到客厅,双开门可以很好的延伸视线,放大空间感。方块玻璃造型点缀,加入些光影效果,让门扇也可以成为空间中亮眼的装饰。

vsszan2043510200093720.png
vsszan2043510200093721.png


家中并不需要处处要“有用”,我们在窗边搭建休闲区,一株绿植,一把单人沙发椅,手边就是猫咪自由穿梭的小门,感受猫咪和阳光的柔软。

vsszan2043510200093722.png
vsszan2043510200093723.png


我们在原本的南次卧做L型衣柜,背靠背衣柜两面储物,也可以做屏风遮挡,侧面用一整张木纹板修饰,形成一个过廊的感觉,到睡眠区有个过渡。飘窗同样用木纹板包裹,与线条呼应。

vsszan2043510200093724.png
vsszan2043510200093725.png


主卫的下沉区域做了弧形吊顶修饰,卫生间地面是表面有肌理变化的手工赤红色地砖,墙面则用长条釉面瓷砖,清爽明亮,营造出屋主们喜欢的松弛感。

vsszan2043510200093727.png
vsszan2043510200093728.png


项目地址 | 芜湖保利熙悦府
设计团队 | 研己设计设计主创 | 张传祥
合作模式 | 设计+半包施工
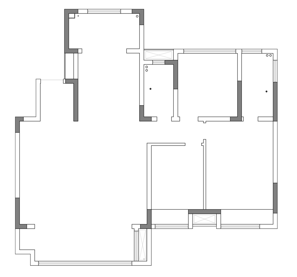
建筑面积 | 150㎡ 3室2厅
项目类型 | 平层
文案策划 | 刘璐璐
项目摄影 | 黄秉文

    • 转自:研己设计
    • 图片©研己设计
    • 编辑:序赞网
    • 阅读原文
    AI文本分析中……
    AI色彩命名中……

    序赞Ai时刻等待着你的命令!~

    与Ai对话形式持续执行相关Ai智能体任务。

    95qabc2025-10-2 20:08:23
    谢谢分享!!!谢谢分享!
    您需要登录后才可以回帖 登录 | 注册序赞号

    快速回复 返回顶部 返回列表