年轻夫妇的公寓 | Yulia Danilova-Nitusova | 2025 | 俄罗斯
vsszan50307030018311.jpg
vsszan50307030018313.jpg


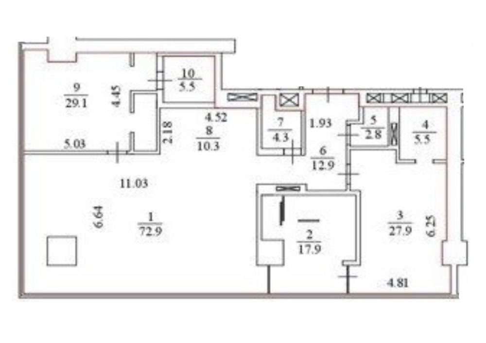
设计师Yulia Danilova-Nitusova在莫斯科市设计了一套170平方米的公寓。客户是一对年轻夫妇,没有孩子,从事IT行业,经常在世界各地旅行。他们喜欢大都市的节奏,但也希望拥有一个安静私密的空间。设计师的任务是打造一个现代化的室内空间——一个舒适实用的工作和休闲场所。

vsszan50307030018314.jpg
vsszan50307030018315.jpg
vsszan50307030018316.jpg
vsszan50307030018317.jpg
vsszan50307030018318.jpg
vsszan50307030018319.jpg
vsszan503070300183110.jpg
vsszan503070300183111.jpg
vsszan503070300183112.jpg
vsszan503070300183113.jpg
vsszan503070300183114.jpg
vsszan503070300183115.jpg
vsszan503070300183116.jpg
vsszan503070300183117.jpg
vsszan503070300183118.jpg
vsszan503070300183119.jpg
vsszan503070300183120.jpg
vsszan503070300183121.jpg
vsszan503070300183122.jpg
vsszan503070300183123.jpg
vsszan503070300183124.jpg
vsszan503070300183125.jpg
vsszan503070300183126.jpg
vsszan503070300183127.jpg
vsszan503070300183128.jpg
vsszan503070300183129.jpg
  • 转载自:interior.ru
  • 图片@interior.ru
  • 语言:俄语
  • 编辑:序赞网
  • 翻译:序赞网
  • 阅读原文
AI文本分析中……
AI色彩命名中……

序赞Ai时刻等待着你的命令!~

与Ai对话形式持续执行相关Ai智能体任务。

暂时没有评论,你回一个呗!~

您需要登录后才可以回帖 登录 | 注册序赞号

快速回复 返回顶部 返回列表