艺术气息 | Oksana Korotkina | 2025 | 俄罗斯
vsszan50438080015551.jpg
vsszan50438080015553.jpg


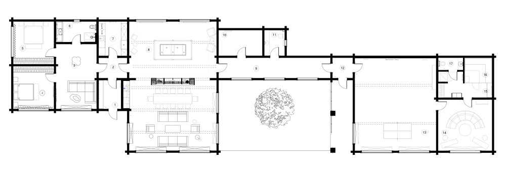
客户找到设计师 Oksana Korotkina,希望她能对位于 Rublevo-Uspenskoe 高速公路旁的一栋建于二十年前的房子进行室内翻新。由于这对年轻的家庭即将迎来他们的第二个孩子,他们必须迅速采取行动。当初,他们之所以选择这栋房子,主要原因在于其美观的布局、宽敞的房间(仅客厅就占了 100 平方米)、挑高的天花板以及可以俯瞰森林的窗户。

vsszan50438080015554.jpg
vsszan50438080015555.jpg
vsszan50438080015556.jpg
vsszan50438080015557.jpg
vsszan50438080015558.jpg
vsszan50438080015559.jpg
vsszan504380800155510.jpg
vsszan504380800155511.jpg
vsszan504380800155512.jpg
vsszan504380800155513.jpg
vsszan504380800155514.jpg
vsszan504380800155515.jpg
vsszan504380800155516.jpg
vsszan504380800155517.jpg
  • 转载自:interior.ru
  • 图片@interior.ru
  • 语言:俄语
  • 编辑:序赞网
  • 翻译:序赞网
  • 阅读原文
AI文本分析中……
AI色彩命名中……

暂时没有评论,你回一个呗!~

您需要登录后才可以回帖 登录 | 注册序赞号

快速回复 返回顶部 返回列表