MAX 宁波展厅及销售中心 | Ippolito Fleitz Group | 2025 | 中国浙江
几个世纪以来,港口城市宁波已学会如何成功适应政治和经济变革。我们将这种勇于变革的意愿及其由此产生的创新力量转化为MAX Zone科技园充满活力的现代化办公环境愿景,并将其融入销售中心和展示办公室。我们摒弃了传统的静态办公室,而是打造流畅、以用户为中心的空间,以促进创造力和社区发展。

vsszan120666080055061.jpg
vsszan120666080055062.jpg
vsszan120666080055063.jpg
vsszan120666080055064.jpg


展览办公室横跨五层,展现了当代办公的前瞻性愿景。大厅本身就极具震撼力,令人叹为观止。地板和天花板上的线性结构将视线引导至接待处。接待处上方,是一个极具舞台感的悬浮式会议室,引人注目地传达着这样的信息:新想法源于沟通和交流。

vsszan120666080055065.jpg
vsszan120666080055066.jpg
vsszan120666080055067.jpg


楼上设有配备 3D 打印机的原型车间,体现了从概念到产品的迭代和协作开发过程。

vsszan120666080055068.jpg


下一层专门用于研发,中心高台上设有实验室。工作站与实验室相连,体现了团队合作与创新的紧密联系。

vsszan120666080055069.jpg
vsszan1206660800550610.jpg
vsszan1206660800550611.jpg


第四层重点展示灵活的房间模块和混合可用空间,展示房间和团队如何快速适应不断变化的需求。

vsszan1206660800550612.jpg
vsszan1206660800550613.jpg
vsszan1206660800550614.jpg
vsszan1206660800550615.jpg


顶层的设计理念融合了亚洲文化,展现了现代领导力。隔断墙和房间隔断在开放与私密之间营造出平衡。柔和的酒店式设计语言营造出轻松惬意的氛围。茶室和休息室为正式和非正式的洽谈提供了理想的场所。

vsszan1206660800550616.jpg
vsszan1206660800550617.jpg
vsszan1206660800550618.jpg

销售中心:根植于传统

vsszan1206660800550619.jpg
vsszan1206660800550620.jpg


销售中心的设计灵感源自中国传统庭院,以现代方式诠释对称与秩序。步入室内,两层高的隔墙营造出引人入胜的氛围,引领访客踏上一段精心策划、近乎仪式感的旅程。起伏的皮革墙面将空间划分为不同的功能区域。一体式旋转门开辟了全新的视角,划分了不同的区域,将空间探索转化为一种体验。该区域捕捉了宁波的活力与历史,营造出一种兼顾传统与未来的氛围。

vsszan1206660800550621.jpg
vsszan1206660800550622.jpg
vsszan1206660800550623.jpg
vsszan1206660800550624.jpg
vsszan1206660800550625.jpg


迈向进步的新模式
MAX 宁波将办公空间描述为一个充满活力的系统——流动、适应性强、以人为本。这一理念以“进步”为基石,价值观、传统和文化影响着变革,而富有态度的空间设计则为人们提供了一个平台,让他们能够在不断变化的环境中不断反思工作、社区和创新。

vsszan1206660800550626.jpg

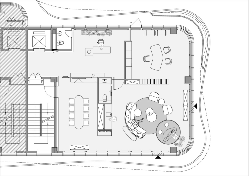
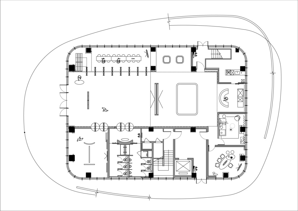
楼层平面图

vsszan1206660800550627.png

Show Office 01

vsszan1206660800550628.png

Show Office 01

vsszan1206660800550629.png

Show Office 02

vsszan1206660800550630.png

Show Office 03

vsszan1206660800550631.png

Show Office 04

vsszan1206660800550632.png

Show Office 05

vsszan1206660800550633.png


客户:Shanghai Gold Concord Group Co., Ltd
位置:中国浙江宁波
状态:Realisiert(2025)
摄影:Zhu Di
专业知识:工作空间
版权:Ippolito Fleitz Group
设计团队:Senem Cennetoglu、Chen Dong、Xinkang Fan、Peter Ippolito、Guanlin Li、Mavis Li、Leo Luo、Samma Sun、Patrick Wu、Jill Yang、Jing Zhang

    • 转自:Ippolito Fleitz Group
    • 图片©Ippolito Fleitz Group
    • 编辑:序赞网
    • 阅读原文
    AI文本分析中……
    AI色彩命名中……

    序赞Ai时刻等待着你的命令!~

    与Ai对话形式持续执行相关Ai智能体任务。

    Xx____偉2025-10-9 10:41:17
    很棒的设计,6666666666
    闫金辉2025-10-9 12:36:51
    感谢分享 真不错
    ppap7772025-10-22 21:59:35
    感谢分享!!感谢分享!!
    您需要登录后才可以回帖 登录 | 注册序赞号

    快速回复 返回顶部 返回列表