vsszan120670080423151.jpg
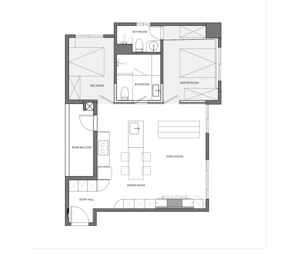
  • 这个室内坪数大约22坪,因为居住成员只有屋主与狗狗,所以只需要两房为主,格局经过局部调整,把原有浪费浪费的走道变成客浴,公共空间也更方正,因为对屋主来说大部分时间都在客餐厅,所以希望房间不用太大,把大部分空间留给公领域。
vsszan120670080423152.jpg
  • - 原有平面 -
   vsszan120670080423153.png
  • - 平面设计 -
  • 我们在客厅局部保留原始天花,并用灰色涂料界定,地板也用两种颜色木地板分隔,客厅除了电视墙收纳,希望其他墙面都能留白,留给屋主日後增加不同的生活风格,想要特别说这场屋主的参与度很高,因为主浴的涂料是屋主自己手工花很多天做的,虽然坑坑巴巴的但是也很有风格XD
  
vsszan120670080423154.jpg vsszan120670080423155.jpg vsszan120670080423156.jpg vsszan120670080423157.jpg vsszan120670080423158.jpg vsszan120670080423159.jpg vsszan1206700804231510.jpg vsszan1206700804231511.jpg vsszan1206700804231512.jpg vsszan1206700804231513.jpg vsszan1206700804231514.jpg vsszan1206700804231515.jpg vsszan1206700804231516.jpg vsszan1206700804231517.jpg vsszan1206700804231518.jpg vsszan1206700804231519.jpg vsszan1206700804231520.jpg vsszan1206700804231521.jpg vsszan1206700804231522.jpg vsszan1206700804231523.jpg vsszan1206700804231524.jpg vsszan1206700804231525.jpg vsszan1206700804231526.jpg

中和C宅 | 虫点子设计 | 2025 | 中国台湾

    • 设计:虫点子创意设计
    • 图片 © 虫点子创意设计
    • 编辑:序赞网
    • 阅读原文
    Ai 分析中……

    暂无用户创作记录!~

    记录用户以此项目图片为灵感使用Ai进行二次创作。

    暂时没有评论,你回一个呗!~

    您需要登录后才可以回帖 登录 | 注册序赞号

    快速回复 返回顶部 返回列表