山苔 | 宏福樘设计 | 2025 | 中国四川
vsszan204393090033241.gif
vsszan204393090033242.png
vsszan204393090033243.png
vsszan204393090033244.gif
vsszan204393090033245.png
vsszan204393090033246.png
vsszan204393090033247.png
vsszan204393090033248.png
vsszan204393090033249.gif

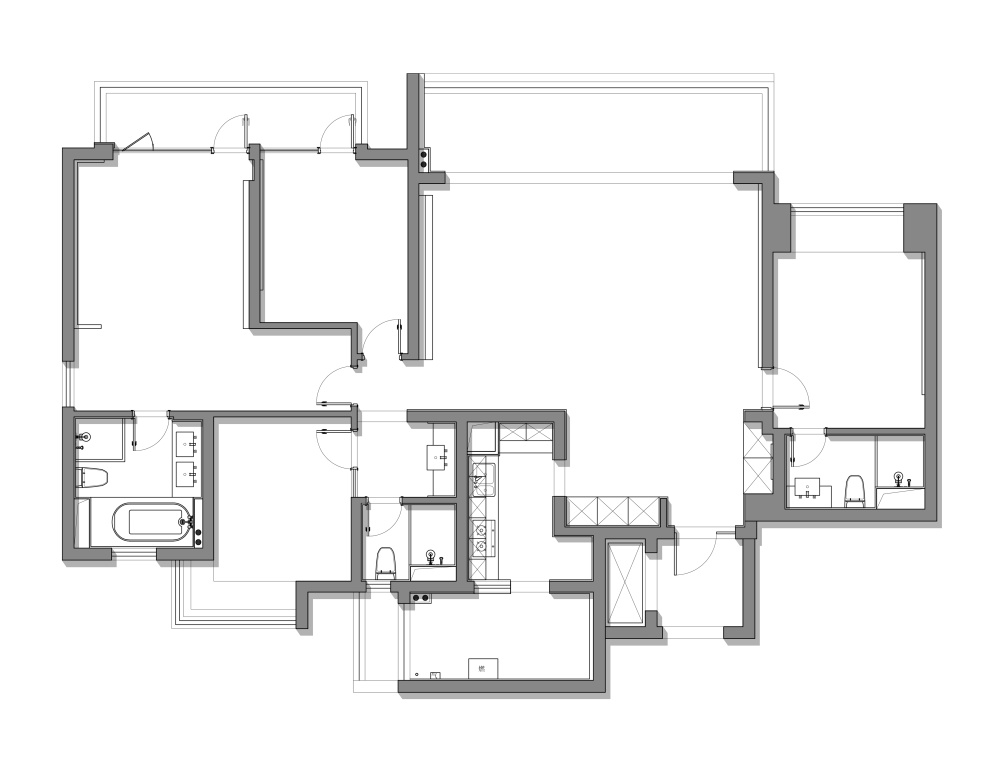
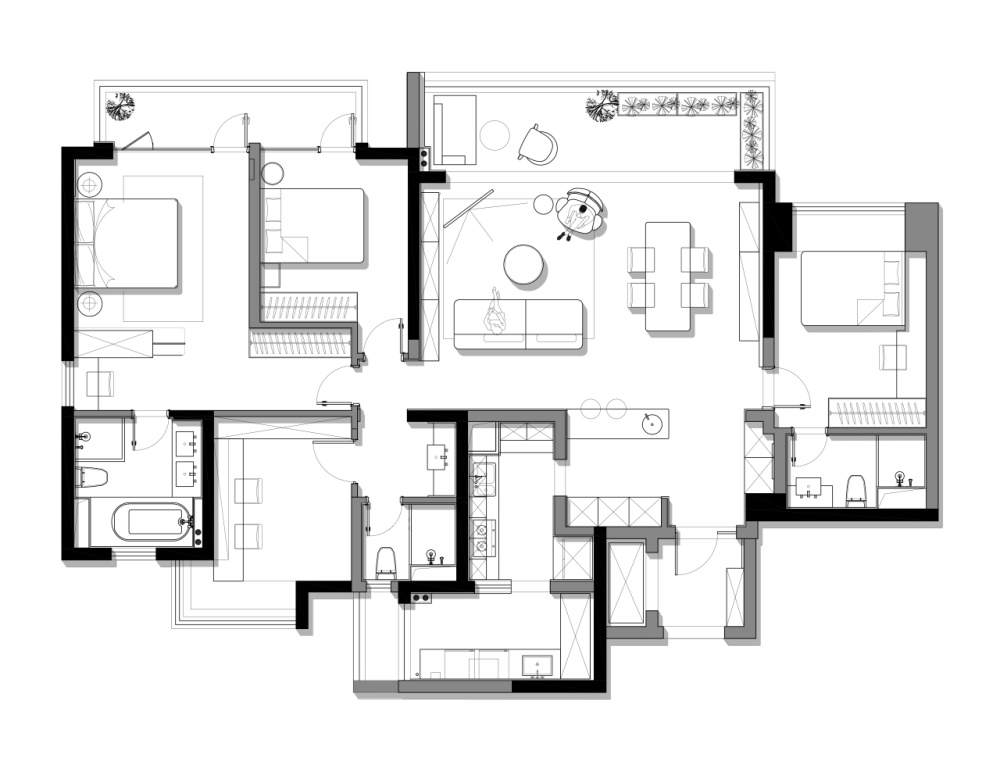
为应对原有客餐厅开间局促与储物功能不足的局限,突破传统思维,采用去客厅化的设计策略。摒弃常规的电视背景墙结构,将整面墙体转化为融合书籍收纳与艺术陈列的复合载体。

不仅有效拓展了储物容量,更以开放架构营造出通透的视觉延伸,使空间在满足实用需求的同时,承载起居住者的文化品味与情感记忆,成为一处能安放爱好、滋养心灵的惬意空间。
vsszan2043930900332410.png
vsszan2043930900332411.png
vsszan2043930900332412.png
vsszan2043930900332413.gif

空间选用大地色系包裹,搭配棉麻质感的沙发与单椅,与藤编落地灯围合出亲切松弛的起居氛围,让人置身其中倍感安心与归属。点缀的绿植则为室内注入自然生机,与窗外园景悄然呼应,让静谧的空间也充满流动的呼吸感。
vsszan2043930900332414.png
vsszan2043930900332415.png
vsszan2043930900332416.png
vsszan2043930900332417.png
vsszan2043930900332418.png
vsszan2043930900332419.gif

餐厅区域以统一的杏仁白格栅板铺陈墙面,并巧妙延伸至卧室门框,形成视觉的整体性与韵律感,同时将门框悄然隐入立面之中。

胡桃木餐边柜不仅承担着储物与展示的双重角色,其深沉的木色更成为空间的视觉焦点。柜面上精心陈设的绿植、艺术挂画、复古台灯与读物,共同勾勒出居住者富有雅趣的日常剪影。

中央搭配的胡桃木长桌与木质藤编餐椅相得益彰,围合出温馨的聚合场域。这里不仅是日常用餐之处,更承载着阅读、饮茶、工作与交谈的多元场景,成为一个功能交融、充满温度的家庭核心区。
vsszan2043930900332420.png
vsszan2043930900332421.png
vsszan2043930900332422.gif

为弥补原始厨房与室外连接性的不足,沿其外部墙体延伸设计出一方西厨岛台。此举不仅极大丰富了备餐与储物的功能性,更巧妙构筑了一个与客餐厅自由对话的枢纽,让家人与朋友在烹饪、品饮或闲谈时都能自然互动,催生多元的生活场景。

岛台一侧的柜体精心融入了温润的洞石与质朴的藤编元素,不同肌理的自然材质在此交织对话,共同营造出松弛而富有层次感的视觉氛围。
vsszan2043930900332423.gif
vsszan2043930900332424.png
vsszan2043930900332425.png
vsszan2043930900332426.png
vsszan2043930900332427.gif

次卧空间以胡桃木的温润与杏仁白的清雅共同铺陈基调。摒弃零散布局,特别定制连贯一体的中古风多功能柜体。将书架、展示格、床头靠背、书桌及储物空间巧妙融合,形成一个功能高度整合的居住模块。以流畅连贯的立面语言,构筑出视觉上的纯粹与和谐。
vsszan2043930900332428.png
vsszan2043930900332429.gif

一间卧室改造为书房,此处摒弃繁杂,仅以木质、纸张与光影交织出宁静氛围,是专为居住者静心阅读与挥毫练字所打造的精神栖所。胡桃木百叶筛落斑驳光影,与整墙书柜、定制书桌构成连贯的视觉脉络。一盏纸质吊灯悬垂而下,在木香与墨香交织的空间里投下温暖光晕。
vsszan2043930900332430.png
vsszan2043930900332431.png
vsszan2043930900332432.gif

原始主卧入口的过渡走廊,通过定制柜体与水波纹玻璃隔断的巧妙结合,被重新规划为一处兼具实用与美感的空间,既明确了界限,又保留了视觉的延伸感。临窗一侧,设置独立的梳妆台,进一步丰富空间功能。
vsszan2043930900332433.png
vsszan2043930900332434.png
vsszan2043930900332435.png

隔断一侧,便是静谧的休憩区域。立面以胡桃木局部包裹,并延伸出简洁有力的线性语言,为睡眠区构筑出沉稳中古的视觉框架。不对称的壁灯与边几点缀两侧,搭配天然棉麻床品,在慵懒随意中透出精致考量。床尾的中古柜与艺术油画相映成趣,既延续了空间叙事,又为私密领域注入画廊般的文艺气质。
vsszan2043930900332436.png
vsszan2043930900332437.png
vsszan2043930900332438.png
vsszan2043930900332439.png
vsszan2043930900332440.png
vsszan2043930900332441.png
vsszan2043930900332442.png
vsszan2043930900332443.png

  • 设计师 Designer :张显蔚
  • 主编 Chief editor :san
  • 视频 Video :大方
  • 平面 Graphic designer :珺珺
  • 转自:宏福樘设计
  • 图片©宏福樘设计
  • 编辑:序赞网
  • 阅读原文
AI文本分析中……
AI色彩命名中……

序赞Ai时刻等待着你的命令!~

与Ai对话形式持续执行相关Ai智能体任务。

95qabc2025-10-9 14:53:13
谢谢分享!!!谢谢分享!
您需要登录后才可以回帖 登录 | 注册序赞号

快速回复 返回顶部 返回列表