泸州梨花村·不在山林 | 小隐建筑|2025 | 中国四川
vsszan204463100031211.png

梨花包裹的山林 ©形在空间

一瓣梨花,叩开一方院落:

隐匿于百年梨园的山野生活美学

从泸州市区驱车不过二十分钟,喧嚣便悄然退去。在蜀中名山方山的怀抱中,面对一片幽深的山谷梨园,「不在山林」安然栖居。此地是泸州江阳区的梨花村,村内植有梨树四万余株,其中百年古树逾千,春日梨花如雪,故名于此。背靠的方山,是蜀东南佛教发祥地,山巅始建于唐的云峰寺中,供奉着全国唯一一尊“黑脸观音”,为这片山野更添一分禅意与神秘。
vsszan204463100031212.png
vsszan204463100031213.png

梨花中的不在山林 ©形在空间

建筑及室内设计均由小隐建筑出品,延续了小隐建筑一直以来乡野建筑营造的基调,低调内敛而又特立独行,适宜的融于山林之中。川南民居与现代建筑的结合,辅以当地元素的点缀,将东方美学洒落在这片川南山野之中,山林、山花、雨雾、晚霞的浸润,赋予了不在山林诗意与灵气,在山野间演绎阴翳之美。
vsszan204463100031214.png

梨花中的不在山林 ©小隐建筑
vsszan204463100031215.png

梨花中的不在山林 ©形在空间
vsszan204463100031216.png

梨花中的不在山林 ©小隐建筑

春光正好,山林被漫山雪白的梨花包裹着,三月的风还夹着柔情,轻抚山林,白色花瓣随风起舞,整个山谷都弥漫着春天的味道。
vsszan204463100031217.png

梨花中的不在山林 ©形在空间

一片花瓣晃晃悠悠掉在宽阔的瓦屋面上,不经意间,轻叩出一方庭院,梨花小院就这样诞生了。
vsszan204463100031218.png

梨花瓣砸出的院子 ©存在建筑
vsszan204463100031219.png

梨花瓣砸出的院子 ©小隐建筑
vsszan2044631000312110.png

梨花瓣砸出的院子 ©存在建筑
vsszan2044631000312111.png
vsszan2044631000312112.png
vsszan2044631000312113.png

建筑原貌

停车信步,沿着巨石的指引拾阶而上,隔着粗粝的石墙,便窥见院子的侧脸。
vsszan2044631000312114.png

隔着石墙望见不在山林 ©形在空间
vsszan2044631000312115.png

不在山林屋檐局部 ©形在空间
vsszan2044631000312116.png

不在山林屋檐局部 ©存在建筑
vsszan2044631000312117.png

不在山林屋檐局部 ©形在空间

踏过石板桥,穿过阴蔽狭窄的石巷,迎头撞见空中白色的观景台挂在幽远苍翠的幕布之前。
vsszan2044631000312118.png

石巷的框景 ©形在空间

步入梨花小院,一条柔美的曲线屋檐将视线引向天空,又转向地面。顺着屋檐转身望去,开阔的山谷尽收眼底。扑面而来的巨幅画卷和隐蔽的入口形成了强烈的反差,这种曲径通幽处的豁然开朗让人心旷神怡。
vsszan2044631000312119.png

院子的曲线屋檐 ©形在空间
vsszan2044631000312120.png

梨花瓣院子 ©存在建筑
vsszan2044631000312121.png

梨花瓣院子 ©存在建筑
vsszan2044631000312122.png

曲线屋檐框出的晚霞 ©存在建筑
vsszan2044631000312123.png

院子里俯瞰梨园山谷 ©形在空间

入院后的身心自然松弛

看似随意的窗洞、廊架和隙口,都精心框取着一幅幅如画山色,画随人动。
vsszan2044631000312124.png

院子里的框景 ©形在空间
vsszan2044631000312125.png

院子里的框景 ©形在空间
vsszan2044631000312126.png

院子里的框景 ©形在空间
vsszan2044631000312127.png

院子里的框景 ©形在空间

树林摇曳发出莎莎的声响,清晨的鸟语、白日的虫鸣、夜晚的蛙声挂满山林,正是“树林阴翳,鸣声上下”,萦绕在充满梨香的空气中,更透着些许山野禅意。
vsszan2044631000312128.png

层层递进的院子景观 ©形在空间
vsszan2044631000312129.png

清晨的不在山林 ©形在空间
vsszan2044631000312130.png

白日的不在山林 ©形在空间
vsszan2044631000312131.png

白日的不在山林 ©存在建筑
vsszan2044631000312132.png

白日的不在山林 ©存在建筑
vsszan2044631000312133.png

夜晚的不在山林 ©存在建筑
vsszan2044631000312134.png

夜晚的不在山林 ©存在建筑

偶得幽闲境,遂忘尘俗心。

始知真隐者,不必在山林。
vsszan2044631000312135.png

夜晚的不在山林 ©形在空间
vsszan2044631000312136.png

夜晚的不在山林 ©形在空间
vsszan2044631000312137.png

夜晚的不在山林 ©小隐建筑

不在山林,以诗而名,山野入画

闲时,煮茶独饮

坐看山间四时变幻

亦或,三五好友

诗书相伴,静享流年
vsszan2044631000312138.png

不在山林院子局部 ©形在空间
vsszan2044631000312139.png

不在山林后院局部 ©形在空间
vsszan2044631000312140.png

不在山林后院局部 ©形在空间
vsszan2044631000312141.png

不在山林后院局部 ©形在空间

置身山林,自在松弛

以茶为伴,食山之野

鸟语蝉鸣,听风阅书

在这方乡野的山林间

感受它独有的避世感

栖居在白居易悠然闲适的诗中
vsszan2044631000312142.png

不在山林院子局部 ©存在建筑
vsszan2044631000312143.png

不在山林屋面局部 ©小隐建筑
vsszan2044631000312144.png

不在山林屋面局部 ©小隐建筑

「不在山林」仅打造4间客房,每间客房各具特色。粗犷原生的小酒吧,精致素雅的餐厅、茶室,惬意野趣的户外汤池,满足不同客群的出行需求。一件家具、一扇窗、一束花、一缕光..……没有繁复的装修,却处处尽显东方美学。
vsszan2044631000312145.png

不在山林客房·明月 ©形在空间
vsszan2044631000312146.png

不在山林客房·明月 ©形在空间
vsszan2044631000312147.png

不在山林客房·明月 ©形在空间
vsszan2044631000312148.png

不在山林客房·望岳 ©形在空间
vsszan2044631000312149.png

不在山林客房·望岳 ©形在空间
vsszan2044631000312150.png

不在山林客房·望岳 ©形在空间
vsszan2044631000312151.png

不在山林客房·青云 ©形在空间

屋顶铺设传统小青瓦,户外地面满铺当地青石板,原石砌筑的院墙,暖白色的稻草漆外墙,木结构屋架,将传统川南建筑的神韵勾勒出来。
vsszan2044631000312152.png

不在山林餐厅 ©形在空间
vsszan2044631000312153.png

不在山林餐厅 ©形在空间
vsszan2044631000312154.png

不在山林餐厅 ©形在空间
vsszan2044631000312155.png

不在山林餐厅 ©形在空间
vsszan2044631000312156.png

不在山林餐厅 ©形在空间
vsszan2044631000312157.png

不在山林餐厅 ©形在空间
vsszan2044631000312158.png

不在山林餐厅 ©形在空间

整个建筑基本保留原有民房的空间格局,屋顶的彩钢棚取而代之是一个大悬挑的白色观景台,似一片白色花瓣飘在空中,赋予了不在山林独特的形象识别性。观景台不仅可俯瞰整个梨园山谷,更是观看山林日落的绝佳场所。
vsszan2044631000312159.png

不在山林茶室 ©形在空间
vsszan2044631000312160.png

不在山林酒吧 ©形在空间
vsszan2044631000312161.png

不在山林酒吧 ©形在空间
vsszan2044631000312162.png

不在山林泡池 ©形在空间

宽阔巨大的瓦屋面将一层建筑串联成一个整体,梨花瓣砸出的异形庭院为人们带来更加生动有趣的山野生活。置身山林,或是漫步山林之后,一切都悠然自得。
vsszan2044631000312163.png

观景台俯瞰梨园山谷 ©形在空间
vsszan2044631000312164.png

观景台俯瞰院子 ©形在空间
vsszan2044631000312165.png

不在山林后院局部 ©形在空间

室内整个空间延续了阴翳淡然的气质,淡雅柔和的色调与温润的木材结合,将度假感和自然感巧妙融合在了一起。通透的落地门窗将室外自然引入室内,每一个角落都散发出不动声色的拙雅之美。
vsszan2044631000312166.png

不在山林后院局部 ©形在空间
vsszan2044631000312167.png

餐厅廊下望向院子 ©形在空间
vsszan2044631000312168.png

餐厅望向院子 ©形在空间
vsszan2044631000312169.png

远眺观景台 ©形在空间
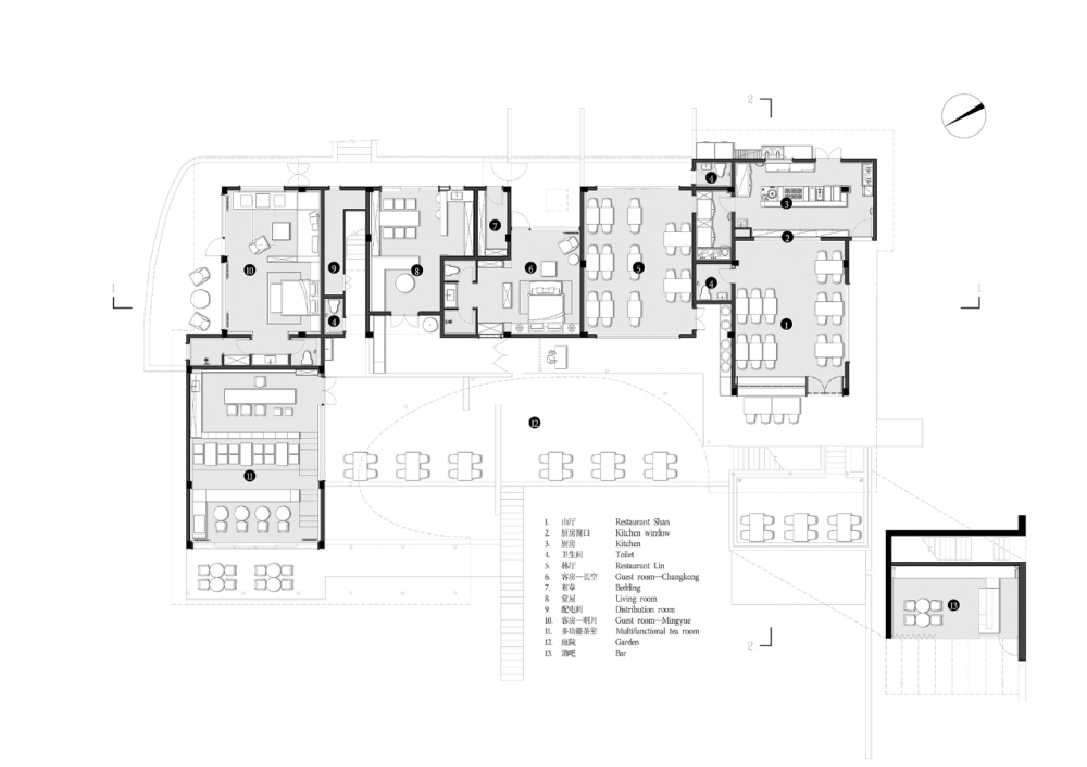
vsszan2044631000312170.png
△1F
vsszan2044631000312171.png
△2F
vsszan2044631000312172.png
△RF
vsszan2044631000312173.png

△正立面 背立面
vsszan2044631000312174.png

△侧立面
vsszan2044631000312175.png
△剖面


  • 建筑主创团队|小隐建筑事务所
  • 主持建筑师|潘友才
  • 设计总监|杨喆(合伙人)
  • 技术总监|陈仁振(合伙人)
  • 设计团队|杨锐、胡沁梅、赵亚线、苟源君
  • 施工图团队|成都美厦建筑设计有限公司
  • 业主单位|泸州市江阳区丹林镇人民政府
  • 施工单位|泸州兴阳建川实业有限公司
  • 摄影|存在建筑-建筑摄影、形在空间摄影、小隐建筑
  • 撰文|潘友才
  • 项目地址|中国 四川省 泸州市江阳区梨花村不在山林
  • 建筑面积|590㎡
  • 建筑材料|白色真石漆、钢化单银中空超白玻璃、钢结构(木纹漆)、实木椽条、实木望板、小青瓦、氟碳漆
  • 建成时间|2024年12月
vsszan2044631000312176.png

陈仁振、杨喆、潘友才(左至右)

小隐建筑事务所主创团队
vsszan2044631000312177.png

2015年4月小隐建筑创立于中国成都。意象建筑论的开创者和践行者,意象建筑流派的先锋代表。将创造全新多维空间体验,营造具有感情和生命力的诗意空间环境作为核心理念。小隐建筑秉承“以意赋象,以象见意”,诗画创作结合东方哲学思考的建筑创作方法。意象作为人与自然相通的媒介,是一种“场景化”的存在,包含了现实与想象。意象建筑以自然和人文意象中提炼出来的原型构建场景,赋予建筑强烈的可读性和可识别性,进而形成叙事性的建筑空间,表达出特定的审美观点和艺术性的文化共情感,实现建筑的艺术升华。在建筑实践中追求美学性和适用性的平衡,保证建筑的功能要求和视觉效果的同时,最大限度地满足人们的精神审美需求。意象建筑希望将建筑转化为一种“建筑形象语言”,让建筑能同文字一样,被大众更容易地解读理解,为抽象的理论概念变为具体新颖的设计表述,带来了新的思路和可能性,力图成为中国文化及文明的传播者和创造者。

  • 转自:环球设计
  • 图片©环球设计
  • 编辑:序赞网
  • 阅读原文
AI文本分析中……
AI色彩命名中……

序赞Ai时刻等待着你的命令!~

与Ai对话形式持续执行相关Ai智能体任务。

95qabc2025-10-10 12:11:29

谢谢分享!!!谢谢分享!
ppap7772025-10-22 21:08:30
感谢分享!!感谢分享!!
您需要登录后才可以回帖 登录 | 注册序赞号

快速回复 返回顶部 返回列表