(王一户型改造273期)110㎡两版方案分享!

论坛封面-模板.jpg


原始结构图


微信图片_2025-08-14_110044_147.png


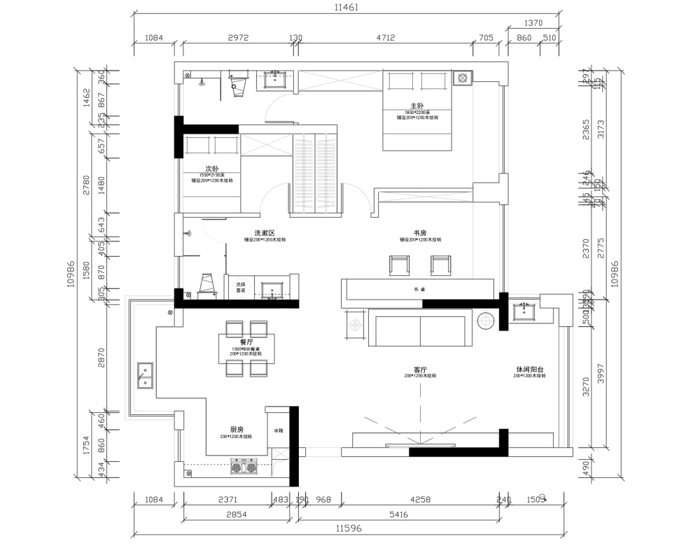
原方案图

原方案图.png


改造后的方案一

方案一.jpg


改造后的方案二

方案二.jpg


有温度的设计,遇见有爱的人!
对本案感兴趣的小伙伴们可以进我主页,关注微信公众号,有本案深度解析文章!
本文以及方案均为王一原创 禁止转载 分享至其他平台

25年无偿带徒计划已启动(纯公益),只要你认真好学我带你飞!

微信图片_20250219164936.png
AI文本分析中……
AI色彩命名中……

序赞Ai时刻等待着你的命令!~

与Ai对话形式持续执行相关Ai智能体任务。

暂时没有评论,你回一个呗!~

您需要登录后才可以回帖 登录 | 注册序赞号

快速回复 返回顶部 返回列表