无界宅邸|太谷形上 | 2025 | 中国深圳
vsszan204622150647391.png


深圳,在这片“兼收并蓄”的土地上,以独特的叙事节奏,讲述着属于自己的生长故事,改革开放齿轮与金融波涛共谱的交响诗,在时光的长河中不断绽放光彩。

vsszan204622150647392.png

图片来源于网络


深圳龙华鸿荣源观城正以流动、渗透边界的方式回应时代交响,以城市自然的诗情画意,共鸣深圳都市生活与居住理想,携手太谷形上设计为居者提供一个共感、共鸣、共生城市高品质空间。太谷形上主张生活态度和品质格调,从城市人文的深处出发,从当代审美视角思考与诠释,让每一个空间都具备复合性、情绪性与自主性,回应每一位居者内在的自我需求与情绪边界。

PART 1
克制而丰盈的木质调漫游
98户型
功能需求与自然舒适的平衡,从来不是对抗,而是共生,当生活跳脱出日常琐碎,便能触摸到一种松弛与丰盈并存的秩序,那是自然的诗性,亦是木质感带来的内心深处的安宁。

vsszan204622150647393.png


01
LIVING ROOM
客 厅

98户型以空间作为自然的容器,木质铺陈出克制且丰盈的空间力量,致力于寻找空间场所与自然元素的对话平衡点,构筑有温度的空间。
推开门扉的刹那,原色木质感的朴素扑面而来,光与尘在交割中和解,所有漂泊,终在此处完成尘世与内心的渡仪。

vsszan204622150647394.png

vsszan204622150647395.png

vsszan204622150647396.png


温润的色泽、静默的呼吸,木格栅镌刻成安宁的注脚,流畅的线条宛如视觉指引,延伸入大体块墙面造型,满眼的干净与放松,于一隅光影里寻回墙面与地毯之间的平衡。
在片刻停驻中,一只趴在地毯上的白色小熊,在懒洋洋的沐浴阳光,重拾生命的温柔节奏。

vsszan204622150647397.png

vsszan204622150647398.png

vsszan204622150647399.png

vsszan2046221506473910.png


02
DINING ROOM
餐 厅
餐厅处沿用木质格栅赋予新的生活态度,沉静与温润相嵌,木质沁心,灯光如柔和的叙事,在举杯与笑语之间,将日常酿成记忆,生活因此而丰盈。

vsszan2046221506473911.png

vsszan2046221506473912.png

vsszan2046221506473913.png

vsszan2046221506473914.png

vsszan2046221506473915.png


03
BEDROOM
卧 室
主卧以现代简约的流畅线条与东方意蕴的木质内敛为主题,空间上注重整体性和舒适性,通过木材质与床品的巧妙搭配,在光影的收束与静谧的怀抱中,营造出低调奢华、内在优雅的层次,松弛自在。

vsszan2046221506473916.png

vsszan2046221506473917.png


次卧以统一的格调融合温婉木材质,将理想与生活之情趣绘成一处芳华,功能背景墙不仅是收纳的容器,更是主人精神世界的写照,那些被悉心安置在木框架里的小收藏,让空间成为适宜居住且自我生长的延伸。

vsszan2046221506473918.png

vsszan2046221506473919.png

vsszan2046221506473920.png


热闹活泼的粉色、造型独特的家居、温暖的床榻为女儿房注入别样韵味。空间潜藏衣柜,通透开阔,可爱摆件、几何桌椅等元素,如不同的乐章,各自散发独特的暖萌魅力,演绎出时尚个性且温馨的童真。

vsszan2046221506473921.png

vsszan2046221506473922.png


PART 2
内在雅序
108户型
高级不是流于表面的美,而是慢慢深入内里的精致。108户型以优雅流动于室内,轻奢侵入心境,通透无界的客餐厅设计使得每一处转折与起伏都自然生长,如同春日万物般舒展有序。

vsszan2046221506473923.png


04
LIVING & DINING ROOM
客餐厅
天然大理石的纹路肌理与绵柔的抱枕织物碰撞,传递出自然质感与温度,与光影交映,藏着不经意的惊喜,地毯在尺度与品质间,铺陈出怡然自得的轻奢之感。
一道光线在角落里若隐若现,光线和阴影交织在一起,明亮与昏暗相互衬托,宛如一幅水墨画,在这光影交错之中,为整个空间注入了一份浪漫。

vsszan2046221506473924.png

vsszan2046221506473925.png

vsszan2046221506473926.png

vsszan2046221506473927.png


镶嵌于墙体中的柜子,成为视觉与功能的双重焦点,与餐厅形成视觉对望,既划分了功能区域,又暗合空间动线的分流逻辑。

vsszan2046221506473928.png

vsszan2046221506473929.png

vsszan2046221506473930.png
P. 26
vsszan2046221506473931.png


看尽世间之繁华,回归本我之初,便是归处与期望。餐厅的烟火气息因围坐、相聚而和乐,消弭距离感,精致花艺和巧妙融入的艺术装置,使餐厅不仅功能实用,还焕发出优雅的美感。

vsszan2046221506473932.png

vsszan2046221506473933.png


05
BEDROOM
卧 室
舒适与优雅并存的主卧,以沉静的形态延续着空间的优雅和气韵的表达,静穆的艺术气质与细腻的线条钩织于其中,悄然生发时间的质变,予人一种仿佛时光变缓的知觉,将内敛之美落笔于日常。

vsszan2046221506473934.png

vsszan2046221506473935.png

vsszan2046221506473936.png


儿童房以对称双床的空间设计扩宽空间,同时增强丛林自然与活泼灵动的调性,空间犹如折叠一般,可分可合,仿佛走进童话故事的绮丽丛林当中,探索自然奇遇的发生。
相同材质与可爱软饰的碰撞更是可触摸得到的真实,让人体会一种纯真、静谧的气息。

vsszan2046221506473937.png

vsszan2046221506473938.png

vsszan2046221506473939.png

vsszan2046221506473940.png

vsszan2046221506473941.png


PART 3
渗透澄明边界
88户型
家不单是生活容器,它可以同时拥有都市感和人情味。88户型与云影天光为友,美好时光自有沉淀。当光影映照于家居的肌理之上,彷佛触动每一寸缓缓流动的时光,开启慢生活的调色盘。

vsszan2046221506473942.png


06
LIVING & DINING ROOM
客餐厅
88户型开放格局通透舒朗,取消墙壁从而设置吧台链接客厅与厨房,休憩之地的开阔与惬意被拉到最大,包容着无限情感。

vsszan2046221506473943.png

vsszan2046221506473944.png

vsszan2046221506473945.png


视线逐渐从吧台场景移转到动线逻辑上,开启无缝衔接的转场,达成开放澄澈的自如转换,回归自在本我的生活,留出足够多元的空间奢享。

vsszan2046221506473946.png

vsszan2046221506473947.png


在花纹大理石、金属等多种材质肌理的巧妙碰撞中,画框、花艺、家具各自成趣,与艺术相糅,极具视觉魅力。在细节处,融融的意境中,生活的雅韵自然而然,成就了一方舒适雅居。

vsszan2046221506473948.png

vsszan2046221506473949.png
P. 44
vsszan2046221506473950.png


精心打造的酒柜细节和巧妙融入的电镀彩色艺术摆件,使餐厅不仅功能实用,还焕发出优雅的美感。柔和的灯光氛围与空间慵懒的调性互为呼应,有雅趣,有闲情,渐渐地铺陈出一种诗意。

vsszan2046221506473951.png

vsszan2046221506473952.png

vsszan2046221506473953.png

vsszan2046221506473954.png

vsszan2046221506473955.png


07
BEDROOM
卧 室
主卧将风雅闲逸与灵动奢意合而为一,衍生素雅交织的遐想,棕色背景墙以唯美意境柔化岁月故事,身心的第一重观感是静谧。
衣柜以悬空的形式设置在飘窗上,节省空间同时提高使用率。床榻似温柔的港湾,深浅色调相互交织,尽显温馨与舒适,为卧室营造了舒适的氛围效果,让空间丰盈而饱满。

vsszan2046221506473956.png

vsszan2046221506473957.png
vsszan2046221506473958.png

vsszan2046221506473959.png


小公主就是要被粉色包围、呵护的。在朦胧雾粉色与纯白的碰撞下,一个梦幻、有温度且无柜的女孩房逐渐成形。
泡泡玛特为其点缀空间故事,不止于视觉上的颜色,桌椅与萌宠亦投入了情感的色彩,盎然的生命力呼之欲出。

vsszan2046221506473960.png

vsszan2046221506473961.png

分析图

vsszan2046221506473962.png
vsszan2046221506473963.png
vsszan2046221506473964.png

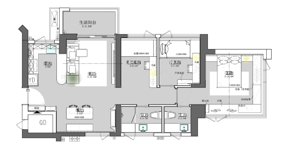
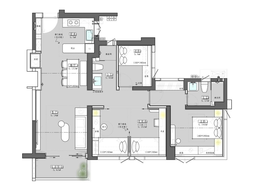
98m² 108m² 88m² 户型平面图



INFO
- 项目名称 -深圳 • 鸿荣源观城
- 甲方单位 -鸿荣源集团
- 空间设计-太谷形上
- 设计团队 -王光辉 刘小羿 艾益忠 朱贵敏 肖炜 朱华丽-


    • 转自:LJ看设计
    • 图片©太谷形上
    • 编辑:序赞网
    • 阅读原文
    AI文本分析中……
    AI色彩命名中……

    序赞Ai时刻等待着你的命令!~

    与Ai对话形式持续执行相关Ai智能体任务。

    暂时没有评论,你回一个呗!~

    您需要登录后才可以回帖 登录 | 注册序赞号

    快速回复 返回顶部 返回列表