F住宅 | 山地土壤 | 2025 | 中国上海

城市生活总体上属于定居模式,通常人们以居住地为圆心再向外展开外溢到街道,连接着工作地以及生活社交,构建起紧密相连的生活网格。
▽客厅概览© Wen Studio

vsszan204650160720051.jpg


住宅作为家庭生活的起点,其功能不仅仅局限于日常起居,也常常为职业活动提供场所。一个舒适的生活区域常常由熟悉的日常事件展开,例如吃饭、睡觉、洗漱、与他人联系又或者双手劳作,这些日常生活的点滴构建起一个复杂而隐秘的空间结构。

▽客厅© Wen Studio

vsszan204650160720052.jpg
vsszan204650160720053.jpg


此次项目的委托方的职业是一名艺术工作者,对居所的愿景是最大程度的保留自然肌理并结合个人的收藏偏好将空间融合为一个可对话的生活场所,回归居住最本真的状态。

▽可对话的生活场所© Wen Studio

vsszan204650160720054.jpg


空间内的大部分家具、艺术品及装饰物件均源自业主的私人收藏,或是其亲自创作的设计作品。这些物件直接从他的工作室展厅或仓库运来,他早已构想好这些藏品终将如何点缀整个家园。如何通过设计最大程度保留生活的真实性以及如何利用空间特质与人产生亲密的连接是我们此次设计思考的方向。

▽中古家具© Wen Studio

vsszan204650160720055.jpg

▽木质搁板© Wen Studio

vsszan204650160720056.jpg
vsszan204650160720057.jpg

▽艺术品收藏© Wen Studio

vsszan204650160720058.jpg
vsszan204650160720059.jpg


项目场地位于上海市嘉定区,整体面积约为105平方的精装修住宅。原始空间格局为三室一厅的标准化城市住宅模板,根据业主提供的委托清单,我们试图重构其内部空间。

▽轴测图© 山地土壤室内设计

vsszan2046501607200510.jpg

▽餐厨区© Wen Studio

vsszan2046501607200511.jpg


在空间规划上我们结合使用需求将三间卧室整合为两间,修正原先的规划结构,为日常物品储存提供足够的容量;对于家庭电器的布局我们将体积较大的冰箱隐藏在过道前端,表皮饰面跟随整体空间,最大化的减少大体积物品带人们的视觉压迫;厨房连接着餐厅以及会客区域,通过设计减法将墙体消隐,扩宽活动空间的使用面积。

▽主卧© Wen Studio

vsszan2046501607200512.jpg
vsszan2046501607200513.jpg

▽次卧© Wen Studio

vsszan2046501607200514.jpg


过道在家庭空间中起着重要的连接作用,入口处的石板是此区域重要的转接环。在日常的城市生活里我们通常会用错层来连接多个场所,例如高架天桥,地下通道或者阶梯走廊,这些上下错综的关系都会通过第一个踏步来进入另一个场所。住宅空间的过道也是如此,在设计上,我们将高度做了调整并使用天然石板做了替代,再结合整体空间将过道用老木板包裹赋予独特的材质纹理。

▽过道空间© Wen Studio

vsszan2046501607200515.jpg
vsszan2046501607200516.jpg


空间材质的选择上我们使用了大量的循环可回收材料,通过设计整合赋予材料新的生命。例如墙面木板,门锁拉手以及布艺选择,洗漱区域的面盆以及淋浴间的隔断我们也选取了经过自然氧化多年的老石板,住宅家具的选择大部分是中古为主,在服务美学的同时也保留了地方特色和历史连续性,最大程度的减少了资源浪费。

▽洗漱区© Wen Studio

vsszan2046501607200517.jpg
vsszan2046501607200518.jpg

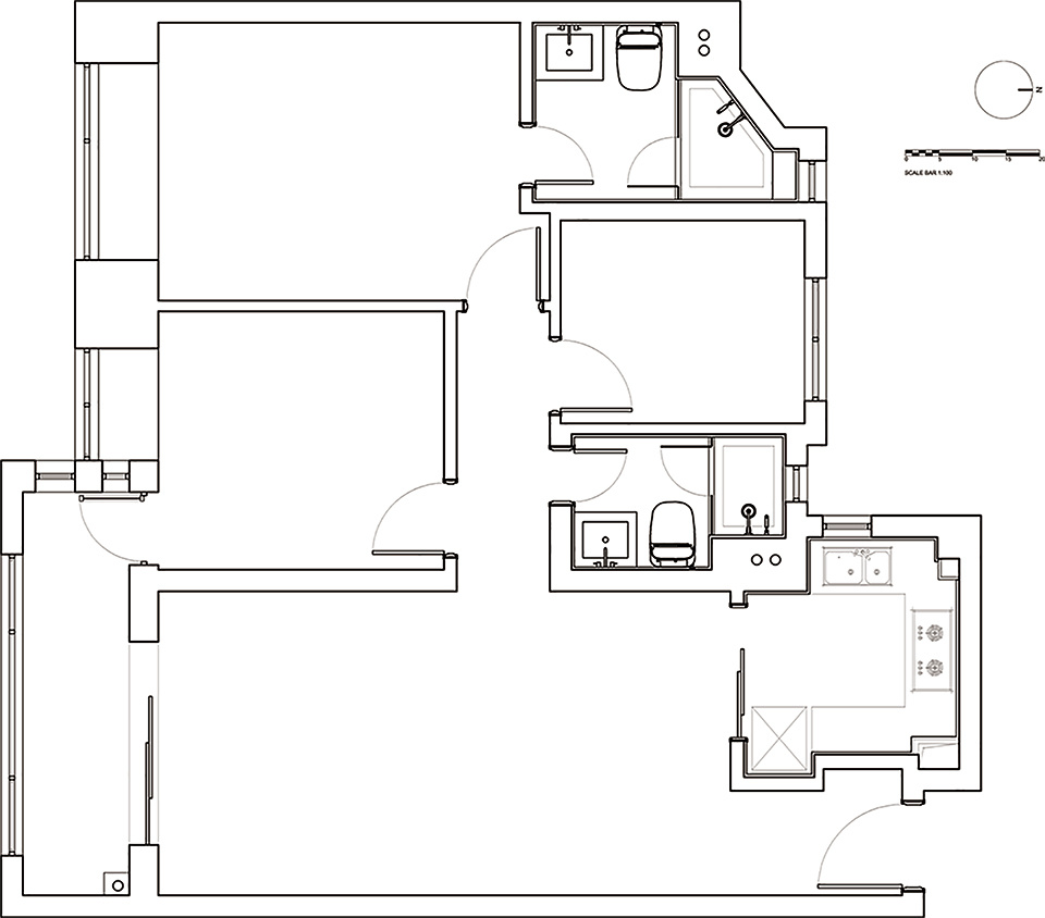
▽平面图© 山地土壤室内设计

vsszan2046501607200519.jpg

▽原始结构图© 山地土壤室内设计

vsszan2046501607200520.jpg
vsszan2046501607200521.jpg


项目信息
项目名称:F住宅
项目类型:住宅空间
室内设计:杭州山地土壤室内设计
联系邮箱:info@mountainsoil.cn
设计总监:董甜甜
设计时间:2024年03月
完成年份:2025年04月
项目地点:上海市
建筑面积:105m2
设计范围:室内设计
设计团队:董甜甜
业主:方月笙
摄影版权:Wen Studio
主要材料:艺术涂料、天然石板、老木头
家具:
Vintage D70 sofa by Osvaldo Borsani
Linen armchair by Studio Oliver Gustav
Pierre Jeanneret Chandigarh armchair
Lampe Gras Model 201 table lamp
Pierre Jeanneret Chandigarh desk
Pierre Guariche aluminum Tulip chair, 1954

AI文本分析中……
AI色彩命名中……

序赞Ai时刻等待着你的命令!~

与Ai对话形式持续执行相关Ai智能体任务。

95qabc2025-10-16 12:18:56
谢谢分享!!!谢谢分享!
95qabc2025-10-17 17:09:22
谢谢分享!!!谢谢分享!
您需要登录后才可以回帖 登录 | 注册序赞号

快速回复 返回顶部 返回列表