长嘉汇项目K组团跃层样板间 | 元禾大千 | 2025 | 中国重庆
vsszan204681180000392.png
vsszan204681180000393.png
vsszan204681180000394.png
vsszan204681180000395.png
vsszan204681180000396.png
vsszan204681180000397.png
vsszan204681180000398.png
vsszan204681180000399.png


“华丽的反面不是贫穷,而是庸俗。”“简单”是美好质感呈现的最佳方式。本项目占据两江四岸的超绝视野,开阔视野的客厅中,诚邀江景、阳光与清风入室为宾。

vsszan2046811800003910.png
vsszan2046811800003911.png
vsszan2046811800003912.png


空间整体以不同层次白色与淡雅的木色为基调,辅以灰粉点缀,形成克制而温润的层次,如同江面清晨的薄雾与晚霞交织,静中有暖,简洁而不失温度。

vsszan2046811800003913.png
vsszan2046811800003914.png
vsszan2046811800003915.png


线条简素,肌理丰盈,材质低语,述说生活的柔韧。墙面上极具肌理感的艺术装置,呼应江水的流动与时间的沉淀。雕塑与烛光的搭配,更像是生活的注解,让艺术与日常并置,自在、松弛、浪漫。

vsszan2046811800003916.png


大弧度的沙发围合出柔和的交流场域,与圆形茶几呼应,营造出自在、松弛的社交氛围。几何秩序与曲线温润之间的张力,使空间既具艺术雕塑感,又保持日常的亲和力。

vsszan2046811800003917.png
vsszan2046811800003918.png
vsszan2046811800003919.png
vsszan2046811800003920.png
vsszan2046811800003921.png
vsszan2046811800003922.png


艺术元素的穿插与构成为表,光阴流转,内里追求时空的浸润。圆形大理石餐桌优雅大气,搭配弧形餐椅,不同材质的结合运用,功能性之外,体现美丽且矛盾的个性。烛火摇曳,葳晔生香,诉说着生活的品位。

vsszan2046811800003923.png
vsszan2046811800003924.png
vsszan2046811800003925.png


细腻的织物,轻柔的纱帘,搭配触感温和的织物软包。每一处材质,都承载着少女房间特有的温柔与纯净。

vsszan2046811800003926.png
vsszan2046811800003927.png


老人房色彩克制,不张扬,却如晨曦的光,安静地散发着柔和力量。轻松愉悅的氛围,如醉浪漫停下脚本,把月光收藏。从绒面的柔软到丝绸的光泽,自然、隽永、纯粹而兼纳。

vsszan2046811800003928.png
vsszan2046811800003929.png
vsszan2046811800003930.png
vsszan2046811800003931.png
vsszan2046811800003932.png
vsszan2046811800003933.png
vsszan2046811800003934.png


推开落地窗,城市的脉动在远方渐次铺展,而此刻,身心却安然地沉入柔软的怀抱。米色织物、木质肌理,将繁华过滤成温润的安宁,几盏柔光,点亮理性与温情的交汇。
云端之上,艺术与日常彼此交融,在光影里生长出情绪与仪式感。

vsszan2046811800003935.png
vsszan2046811800003936.png


温润的木质,盎然的绿意,让卧室空间多了些曼妙,灵动的意蕴,或自由或艺术,或松弛或优雅,在同一空间中灵活切换融合。

vsszan2046811800003937.png
vsszan2046811800003938.png
vsszan2046811800003939.png
vsszan2046811800003940.png
vsszan2046811800003941.png
vsszan2046811800003942.png


艺术与生活的距离,是拥有一颗向美之心。以材质的自然质感与恰到好处的留白,去营造包容与温暖,使空间自有温度,亦自成故事。

vsszan2046811800003943.png
vsszan2046811800003944.png


屋内斑驳的光影任意游走,
是休闲生活最好的注脚。
这是属于山城安静一隅。一窗远山入画,半帘清风作伴。书墙层叠,似时光的年轮;木色与纸香,氤氲出岁月的余温。闲适午后,或伏案笔耕,或倚椅读书,字里行间,皆是与心灵的对话。

vsszan2046811800003945.png
vsszan2046811800003946.png
vsszan2046811800003947.png
vsszan2046811800003948.png
vsszan2046811800003949.png

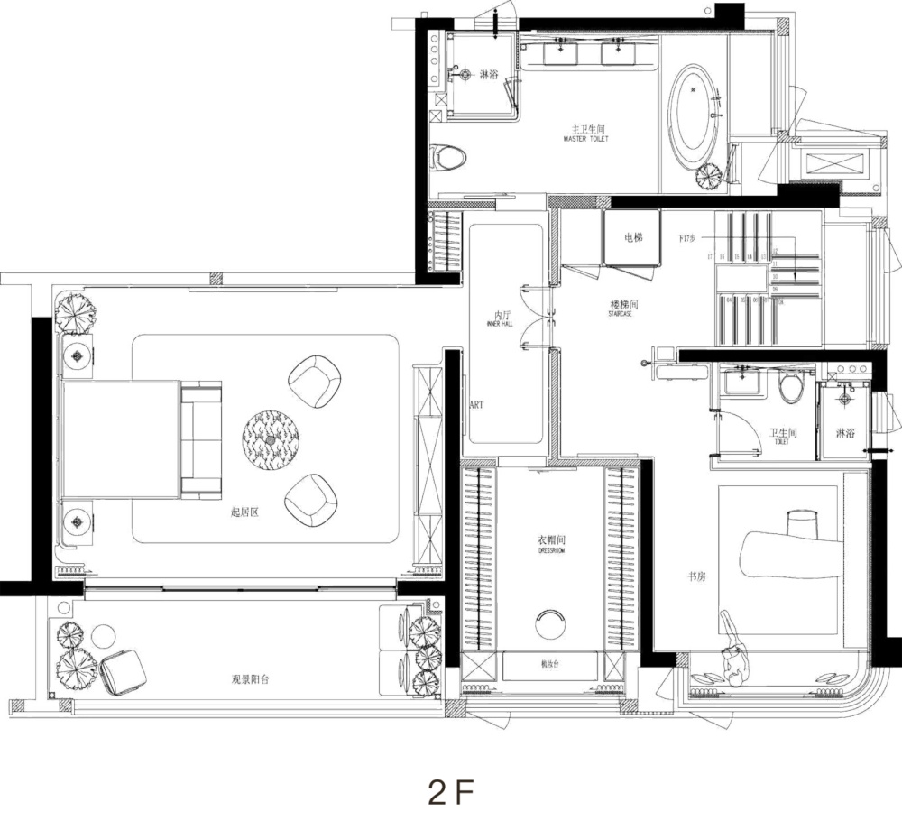
平面布置图



项目全名:重庆长嘉汇项目K组团跃层样板间
项目地址:中国 重庆
软装设计:元禾大千
硬装设计:深圳市北山造所设计有限公司
设计时间:2025.05
完工时间:2025.08
空间面积:291㎡
甲方单位:重庆招商置地开发有限公司
摄影团队:边界人


    • 转自:元禾大千
    • 图片©元禾大千
    • 编辑:序赞网
    • 阅读原文
    AI文本分析中……
    AI色彩命名中……

    序赞Ai时刻等待着你的命令!~

    与Ai对话形式持续执行相关Ai智能体任务。

    syhgdesign2025-10-19 00:03:36
    感谢楼主辛苦分享  
    您需要登录后才可以回帖 登录 | 注册序赞号

    快速回复 返回顶部 返回列表