用暖系拿捏家的氛围感密码 | 习本设计 | 2025 | 中国安徽
vsszan204787220040311.png
vsszan204787220040312.png
vsszan204787220040313.png

用暖系

拿捏

家的

氛围感密码

Chapter  01

是生活

更是期待的温柔家
vsszan204787220040314.png
vsszan204787220040315.png

入户的圆洞,让辛苦一天的自己回家进门的那一刻,不再是拥堵的墙壁,而是会呼吸的生活,放松无阻,入目皆是温柔,连空气都在治愈自己。
vsszan204787220040316.png
vsszan204787220040317.png

砸不掉的承重柱,变成装饰圆柱,融入这个家里,搭配轨道灯,代替了常见的落地灯的功能。
vsszan204787220040318.png
vsszan204787220040319.png
vsszan2047872200403110.png

用斜顶修饰层高带来的局促,既满足设备吊顶,也让视觉上层高抬高。满满的储物柜,是家保持清爽干净的秘诀。
vsszan2047872200403111.png
vsszan2047872200403112.png
vsszan2047872200403113.png
vsszan2047872200403114.png

木作的弧形楼梯扶手面,搭配黑色的栏杆,安全感拉满,造型又是温润好看,实用颜值兼备。
vsszan2047872200403115.png
vsszan2047872200403116.png
vsszan2047872200403117.png
vsszan2047872200403118.png

电视背景墙,没有柜子,没有过多的装饰,简单就是高级。淘来的木头做成了书架和装饰,一个氛围感角落get√!
vsszan2047872200403119.png

利用楼梯转角的位置,增加厨房的使用面积,超长的台面,给大厨足够的操作空间,储物也是够够的。
vsszan2047872200403120.png

独立开辟了一个家政间,格栅移门将晾晒区和公区隔开,满足业主的晾晒需求的同时,还保证了公区的完整性。

Chapter 02

拥有这样的美貌家

梦都是甜甜的
vsszan2047872200403121.png

楼梯间一盏蚕丝灯,夜晚渐渐来临,暖暖的灯光照亮这一隅安宁。
vsszan2047872200403122.png
vsszan2047872200403123.png
vsszan2047872200403124.png

主卧的超绝窗景是橄榄树给的,春赏花,夏观绿,秋品落叶冬览雪,有院子的春夏秋冬,给予不同的景色。
vsszan2047872200403125.png
vsszan2047872200403126.png

主卧单独隔开的衣帽间,集化妆台与收纳一体,不再是传统的柜体,也不是上墙衣架,几根轻巧的衣杆,满足衣服的收纳,但同时让小小的空间也不会逼仄。
vsszan2047872200403127.png

这个小房间有个设计的小巧思,本来L型的落地窗,设计师将其中一侧封起来,做了超绝小景造型,让空间利用更合理。
vsszan2047872200403128.png
vsszan2047872200403129.png

儿童房的小空间,用地台床的形式,定制的形式,超有仪式感,同时给空间内增加了收纳的空间。

Chapter  03

留白空间

慢慢用时间来填
vsszan2047872200403130.png
vsszan2047872200403131.png

夹层空间,就是独自安静工作休闲发呆的好去处,大大的工作桌,工作的同时也可把小朋友放边上共同学习,累了,对面的摇摇椅就可以舒舒服服的晃一晃。
vsszan2047872200403132.png
vsszan2047872200403133.png

钢架挑空的楼层,一圈都是用石膏板做成圆弧角,让冷清的空间温润和煦。悬浮的楼梯,不让空间死气沉沉。
vsszan2047872200403134.png

吊装水龙头,柱型盆,卫生间简约但不简单,定制的吊轨门,不仅仅是门,也是装饰,透光不透影的玻璃砖,让它不再是传统意义上的暗卫。
vsszan2047872200403135.png
vsszan2047872200403136.png

地下室的造景,让回家或者出门都有好心情。   

Chapter  04

设计说

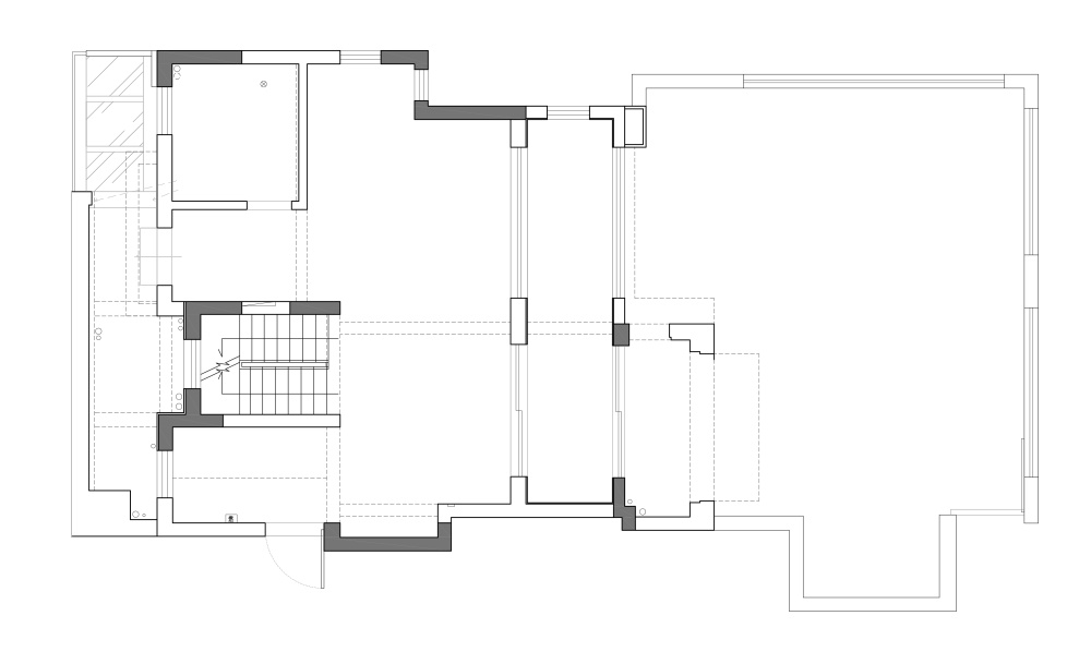
二层     
vsszan2047872200403137.png
vsszan2047872200403138.png
vsszan2047872200403139.gif

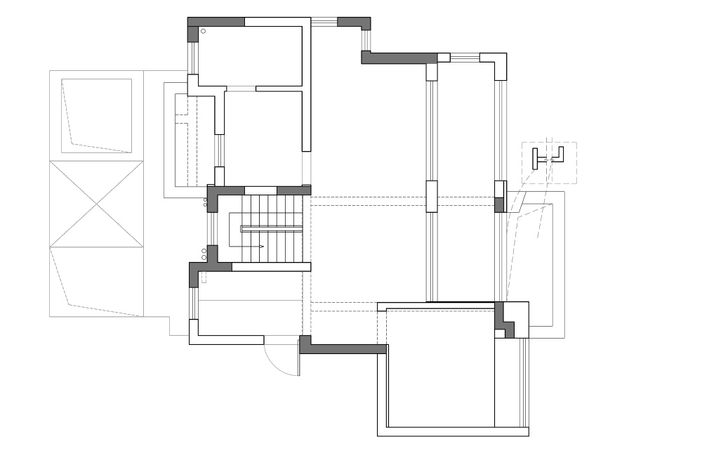
      一层
vsszan2047872200403140.png
vsszan2047872200403141.png

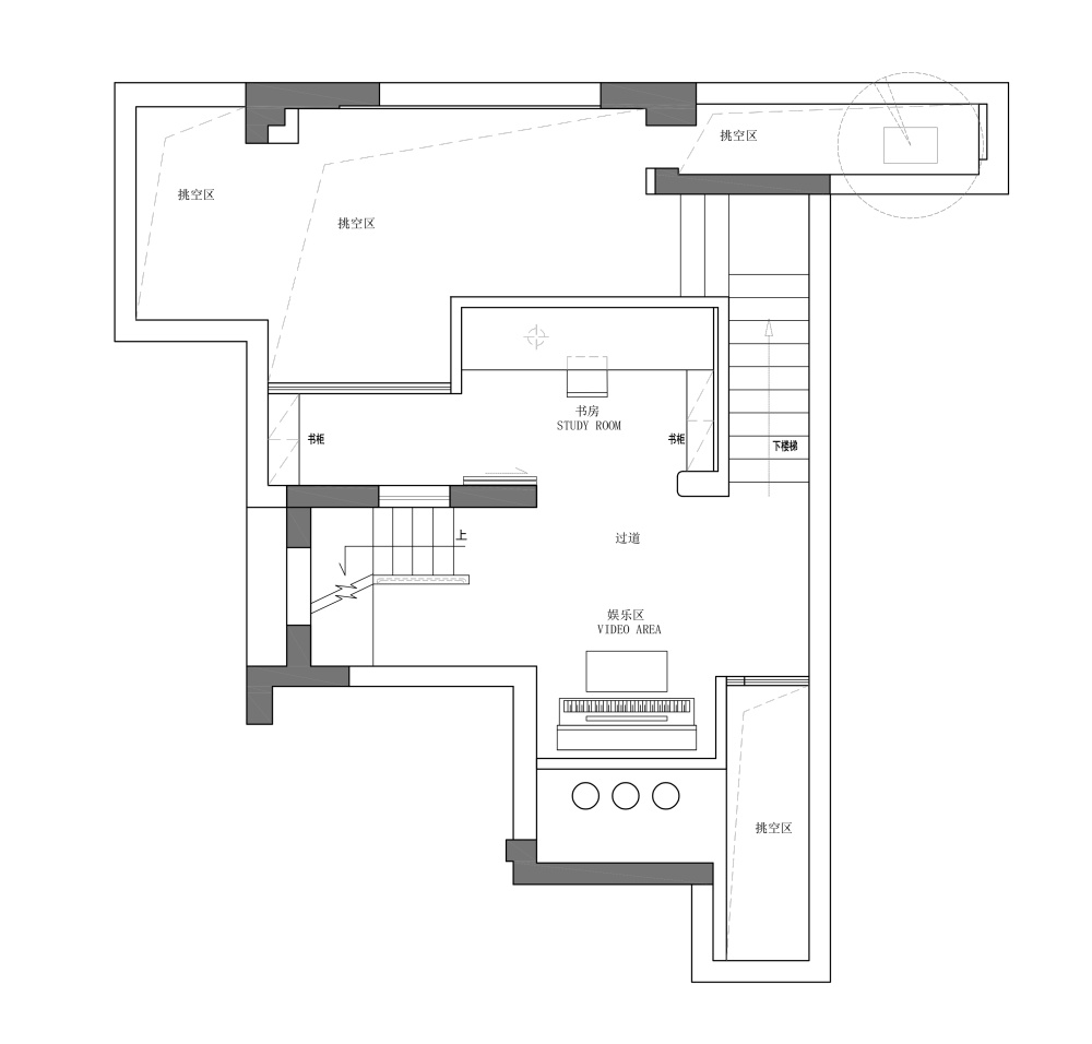
负一层     
vsszan2047872200403142.png
vsszan2047872200403143.png

     负二层
vsszan2047872200403144.png
vsszan2047872200403145.png
  • 项目地址:合肥
  • 项目面积:290m²
  • 全案设计:习本设计
  • 转自:习本设计
  • 图片©习本设计
  • 编辑:序赞网
  • 阅读原文

AI文本分析中……
AI色彩命名中……

序赞Ai时刻等待着你的命令!~

与Ai对话形式持续执行相关Ai智能体任务。

95qabc2025-10-22 17:52:58

谢谢分享!!!谢谢分享!
您需要登录后才可以回帖 登录 | 注册序赞号

快速回复 返回顶部 返回列表