璞悦湾 | 印际空间设计 | 2025 | 中国山东
vsszan205089060056181.png



家,是心之所向,是身之所安。
它承载着生活的安全感,包容感与舒适感,而设计,则是让一切元素彼此兼容,最终水到渠成、自然而然。
在可控的预算中,有效实现设计的落地与规划。我们始终在探寻一条路径,让实用与美学并存,让空间成为生活的诗意延伸。


vsszan205089060056182.png
vsszan205089060056183.png
vsszan205089060056184.png



客户期待家不拘泥于过多的硬性元素,我们将其理解为对灵动与柔美的追求。
于是,现代与中古在此碰撞、交融,自然、柔美、在地与松弛的氛围悄然生长。
肌肤纹理的材质、天然洞石、自然砂纹与羊绒布艺,串联起空间在自然形态下的写意生活。
一步一景,可居可游,这里不只是一个客厅,更是一处能安放情绪与记忆的场所。


vsszan205089060056185.png
vsszan205089060056186.png
vsszan205089060056187.png
vsszan205089060056188.png
vsszan205089060056189.png



卧区无需奢华,温馨舒适即是归宿。我们让它与公共区域的关联淡一些,再淡一些,让休息真正回归宁静。


vsszan2050890600561810.png
vsszan2050890600561811.png
vsszan2050890600561812.png
vsszan2050890600561813.png



设计,不仅是打造一个居所,更是编织一种生活。
在这里,实用与美学兼容,功能与情感共生。我们愿以全案的用心,成就每一个关于家的理想。


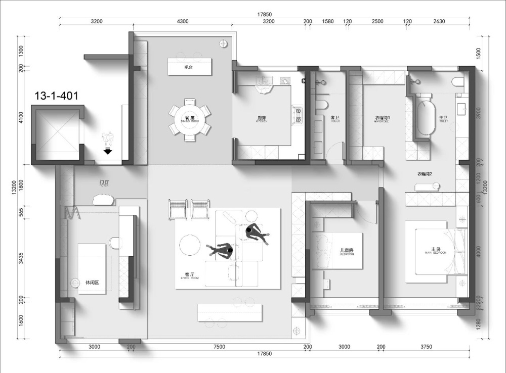
平面图

vsszan2050890600561814.png


设计机构|印际空间设计
材料说明|艺术漆、木饰面、木地板
项目地址|山东
项目面积|260㎡
完成时间|2025年8月

    • 转自:印际空间设计
    • 图片©印际空间设计
    • 编辑:序赞网
    • 阅读原文
    AI文本分析中……
    AI色彩命名中……

    序赞Ai时刻等待着你的命令!~

    与Ai对话形式持续执行相关Ai智能体任务。

    暂时没有评论,你回一个呗!~

    您需要登录后才可以回帖 登录 | 注册序赞号

    快速回复 返回顶部 返回列表