卡达尔特农庄住宅 | FRAN SILVESTRE | 2025 | 西班牙


是否有可能复原一种生活方式?能否以修复古物般的细腻去完成?

▽项目视频© Jesús Orrico




这个项目首先源于“理解”,然后仅在必要的地方进行“介入”。项目位于Serrat de la Cadalt的腹地,任务是更新一座废弃的农舍,使其能够适应当代生活的需求。


▽外观概览©Fernando Guerra

vsszan205102061703031.jpg
vsszan205102061703032.jpg

▽鸟瞰©Fernando Guerra

vsszan205102061703033.jpg
vsszan205102061703034.jpg

▽周边环境©Fernando Guerra

vsszan205102061703035.jpg
vsszan205102061703036.jpg
vsszan205102061703037.jpg

▽顶视©Fernando Guerra

vsszan205102061703038.jpg
vsszan205102061703039.jpg



通过对传统的再诠释,原有的体量与类型学得以保留,仅转化最为关键的部分。设计尊重了原有空间的尺度,并将每个空间对应到新的功能之中。新的居住者离开伦敦的生活,在赫罗纳开启新篇章——被树林、宁静与光线所环绕。或许,这个项目也很好地诠释了一个始于20世纪90年代的理念:在任何地方工作皆有可能。他们在伦敦开展的职业活动如今依旧如常,只不过转移到了一个非凡的自然环境中。


▽建筑近景©Fernando Guerra

vsszan2051020617030310.jpg
vsszan2051020617030311.jpg
vsszan2051020617030312.jpg



入口层设有厨房——融合了原塔楼的三层通高空间——以及面向Sierra de la Cadalt景观的起居室。上层布置了两间卧室,而下层则将曾经饲养牲畜的空间重新诠释为多功能厅。相邻的体量原用于存放农具,如今被改造成车库,上层为设计师Terence Woodgate的工作室。


▽建筑立面©Fernando Guerra

vsszan2051020617030313.jpg
vsszan2051020617030314.jpg

▽入口处©Fernando Guerra

vsszan2051020617030315.jpg

▽俯瞰泳池©Fernando Guerra

vsszan2051020617030316.jpg



这种赫罗纳地区常见的传统农舍建造体系,在整个Empordà区域都十分普遍,其结构基于以不规则石灰石砌成的承重墙,并以石灰砂浆粘结。建筑的转角、过梁与门框则采用精细切割的方石砌筑,为整体提供结构的精确与稳定。室内墙面通常以石灰与砂浆抹面,并覆以熟石灰涂层——既便于清洁,更重要的是改善了空间的明亮度。在此次改造中,修复石灰石承重墙后,增加了一层以软木为基础的保温层,以提升能效。室内形成了一层“第二表皮”,以增强亮度、改善维护条件,并隐蔽地整合当代生活所需的各种设施。地面采用石灰石铺设,使材料语言贯穿始终。


▽室内起居空间©Fernando Guerra

vsszan2051020617030317.jpg

▽厨房©Fernando Guerra

vsszan2051020617030318.jpg
vsszan2051020617030319.jpg

▽餐厅©Fernando Guerra

vsszan2051020617030320.jpg
vsszan2051020617030321.jpg
vsszan2051020617030322.jpg



室内空间被设想为介于建筑与产品设计之间的存在。在这一意义上,电源插座与墙面齐平,构造节点在一点上精准相交,每一个决定都力求忠实于施工的时代——从而在“现存”与“当代”之间建立起精确的对话。


▽上层空间©Fernando Guerra

vsszan2051020617030323.jpg

▽休闲空间©Fernando Guerra

vsszan2051020617030324.jpg

▽浴室©Fernando Guerra

vsszan2051020617030325.jpg
vsszan2051020617030326.jpg



在能源与用水方面,这座住宅实现了完全的自给自足。通过安装带蓄电池的光伏面板及定制设计的蓄水系统,建筑达到了高度的自主性。其中一个蓄水池被改造为泳池,用以消暑。周围的土地部分用于耕种,足以为这对居住在农舍中的英国夫妇提供充足的食物。


▽框景室外©Fernando Guerra

vsszan2051020617030327.jpg

▽楼梯©Fernando Guerra

vsszan2051020617030328.jpg

▽室内设计细部©Fernando Guerra

vsszan2051020617030329.jpg
vsszan2051020617030330.jpg



人们常说,当一个人开始一项创造性事业时,他的朋友与敌人、家人、记忆、恐惧与欲望都会出现在他的工作室里。但若给予足够的时间,它们会逐渐离去,而幸运的话,最终“自我”也会消失。


▽夜览©Fernando Guerra

vsszan2051020617030331.jpg
vsszan2051020617030332.jpg
vsszan2051020617030333.jpg



我们愿意相信,这个项目正是以这种态度完成的:以自然的方式修复破损之处,仅补足那些缺失的部分。


▽地下层平面图© FRAN SILVESTRE ARQUITECTOS

vsszan2051020617030334.jpg

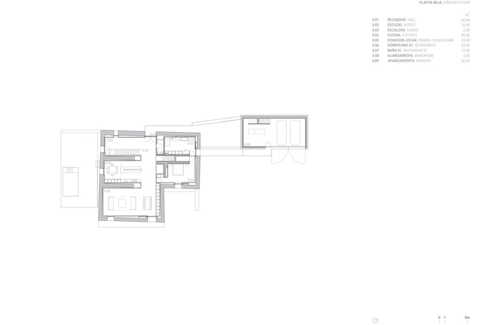
▽首层平面图© FRAN SILVESTRE ARQUITECTOS

vsszan2051020617030335.jpg

▽二层平面图© FRAN SILVESTRE ARQUITECTOS

vsszan2051020617030336.jpg

▽屋顶层平面图© FRAN SILVESTRE ARQUITECTOS

vsszan2051020617030337.jpg

▽立面图© FRAN SILVESTRE ARQUITECTOS

vsszan2051020617030338.jpg
vsszan2051020617030339.jpg

▽剖面图© FRAN SILVESTRE ARQUITECTOS

vsszan2051020617030340.jpg
vsszan2051020617030341.jpg
vsszan2051020617030342.jpg
vsszan2051020617030343.jpg
vsszan2051020617030344.jpg
vsszan2051020617030345.jpg
vsszan2051020617030346.jpg
vsszan2051020617030347.jpg
vsszan2051020617030348.jpg
vsszan2051020617030349.jpg
vsszan2051020617030350.jpg
vsszan2051020617030351.jpg
vsszan2051020617030352.jpg
vsszan2051020617030353.jpg
vsszan2051020617030354.jpg
vsszan2051020617030355.jpg
vsszan2051020617030356.jpg
vsszan2051020617030357.jpg
vsszan2051020617030358.jpg
vsszan2051020617030359.jpg
vsszan2051020617030360.jpg
vsszan2051020617030361.jpg


MAS CADALT
D’ADRI, GIRONA
ARCHITECTURE: FRAN SILVESTRE ARQUITECTOS
PROJECT TEAM: Fran Silvestre | Principal in Charge
María Masià | Collaborating Architect
Susana León | Collaborating Architect
INTERIOR DESIGN: ALFARO HOFMANN
DEVELOPER: TERENCE & PAULA WOODGATE
TECHNICAL ARCHITECT: Xavier Baldrich
STRUCTURAL ENGINEER: Windmill Structural Consultants
PHOTOGRAPHER: Fernando Guerra
VIDEO: Jesús Orrico
GENERAL CONTRACTOR: CONSTRUCCIONS COSTA BURCH S.L.
COLLABORATORS
Pablo Camarasa | Collaborating Architect
Ricardo Candela | Collaborating Architect
Estefania Soriano | Collaborating Architect
Carlos Lucas | Collaborating Architect
Sevak Asatrián | Collaborating Architect
Javi Herrero |Collaborating Architect
Facundo Castro | Collaborating Architect
Anna Alfanjarín | Collaborating Architect
Laura Bueno | Collaborating Architect
Toni Cremades | Collaborating Interior Designer
Susana León | Collaborating Architect
David Cirocchi | Collaborating Architect
Neus Roso | Collaborating Architect
Nuria Doménech | Collaborating Architect
Andrea Raga | Collaborating Architect
Olga Martín | Collaborating Architect
Víctor González |Collaborating Architect
Pepe Llop | Collaborating Architect
Alberto Bianchi | Collaborating Architect
Andrea Blasco | Collaborating Interior Designer
Laura Palacio | Collaborating Architect
Carlos Perez | Collaborating Architect
Jovita Cortijo | Collaborating Architect
Claudia Escorcia | Collaborating Architect
Diana Murcia | Collaborating Architect
Olga Fernández | Collaborating Interior Designer
Daniel Fenollosa | Collaborating Architect
Andrés Jiménez| Collaborating Architect
Álvaro Navarro | Collaborating Architect
Diana Chilingaryan | Collaborating Architect
Maria Barberá | Collaborating Architect
Roberto Marañón | Collaborating Architect
Ana de Pablo | Director of the Finance and Administration Department
Sara Atienza | Director of the Marketing and PR Department
Valeria Fernandini | Finance Department
José María Ibañez | Business developer CCG and Mexico
Andrea Álvarez | Marketing and PR Department
Néstor Bolinches | Business Developer
LOCATION: Canet, d’Adri, Girona
YEARS OF CONSTRUCTION: 2020 – 2025
BUILT AREA: 385 m2
PLOT AREA: 675.746 m2
PRODUCT TYPOLOGY: Single-Family Home

AI文本分析中……
AI色彩命名中……

序赞Ai时刻等待着你的命令!~

与Ai对话形式持续执行相关Ai智能体任务。

暂时没有评论,你回一个呗!~

您需要登录后才可以回帖 登录 | 注册序赞号

快速回复 返回顶部 返回列表