合肥 · 绿城招商诚园138㎡ | 壹研设计 | 2025 | 中国安徽


这是为一对要求颜值与实用并行的夫妇搭档打造的空间,女儿的房间在南边是他们不可退让的初衷与始终。138㎡的现代极简宅,没有繁复装饰,却藏着1%的巧思。从拆一堵墙开始,到调比例、隐梁体、造光影,我们用「减法设计」,让空间回归「好用又好看」的本质。

vsszan205123080001051.jpeg



一、玄关革命:拆墙重组,让零散变高效在原户型里,玄关与入户次卧的隔墙像道 ‘结界’ ,玄关窄挤、次卧门位置尴尬、收纳永远不够用。我们将玄关与入户次卧之间的隔墙打通,化零为整、空间重构,划分为「玄关、玄关储物间、次卧转角衣柜」 三个板块。

vsszan205123080001052.jpeg



玄关:没有了繁琐的收纳压力,只需纯粹的拥有美观和治愈力就行;
入户储物间:换鞋、挂衣、临时置物全在一个空间内搞定,保持了外部空间的整洁与美观;
次卧转角衣柜:L型延伸至墙角,把原本浪费的转角 ‘吃干抹净’ ,储物力得到提升,也因此给卧室区域释放出空间,打造儿童游戏区,可以更好的陪伴和成长。
二、空间平衡术:北扩南缩,让功能区「各得其所」
原始户型 ‘偏科’ 明显,北侧(厨房、卫生间、客房)局促,南侧(客厅、主卧休息区)却很宽裕。


vsszan205123080001053.jpeg



我们以洗衣机柜为始,将北侧功能区向南「借」出空间;
1.厨房微扩,操作台更从容;
2.卫生间外移,干湿分离更彻底;
南北比例调整后,各个功能区的比例达到平衡,功能也得到了更好的完善。

三、细节控的浪漫:藏梁、隐门、造光,把设计藏进生活里
好的极简,从「看不见设计」开始
隐形门:餐厅北扩后主卧门不再直对玄关,且以同色木饰面隐入墙面,关上门就是独立静谧场;
木梁光影:玄关以木梁的形式创造光影美学,且将原有建筑梁体藏于无形之间,以简洁的形式结合收纳美学为空间提升视觉感受;
转角巧思:转角储物柜以内推结构,留出一道「视觉呼吸缝」,结合灯光的巧思,为主卧与公区动线添了丝朦胧景致。
所有的调整和构思都是为了照顾人在每条动线和每个停留空间的感受。


vsszan205123080001054.jpeg
vsszan205123080001055.jpeg
vsszan205123080001056.jpeg
vsszan205123080001057.jpeg
vsszan205123080001058.jpeg
vsszan205123080001059.jpeg
vsszan2051230800010510.jpeg



四、主卧&女儿房:私域里的温度感
主卧:浅灰床品配米白墙面,双床头柜悬浮设计,视觉更轻盈;黑色锥形吊灯垂落,夜晚暖光漫开,连呼吸都慢半拍。


vsszan2051230800010511.jpeg
vsszan2051230800010512.jpeg
vsszan2051230800010513.jpeg


女儿房:浅木色单人床+白色纱幔,书桌延伸出开放式格架,书本、玩偶随意摆;黄色小椅子跳脱又治愈,把童年装进温柔的壳里。

vsszan2051230800010514.jpeg
vsszan2051230800010515.jpeg
vsszan2051230800010516.jpeg

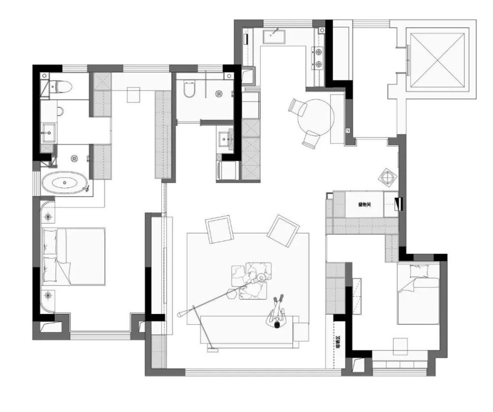
原始户型图

vsszan2051230800010517.jpeg

平面方案图

vsszan2051230800010518.jpeg


项 目 类 型 / 毛坯
项 目 地 址 / 合肥 · 绿城招商诚园
项 目 面 积 / 建筑面积138㎡
设 计 机 构 / 合肥壹研设计

    • 转自:壹研设计
    • 图片©壹研设计
    • 编辑:序赞网
    • 阅读原文
    AI文本分析中……
    AI色彩命名中……

    序赞Ai时刻等待着你的命令!~

    与Ai对话形式持续执行相关Ai智能体任务。

    暂时没有评论,你回一个呗!~

    您需要登录后才可以回帖 登录 | 注册序赞号

    快速回复 返回顶部 返回列表