混合办公空间 | Olga Tishchenko
vsszan50829130021171.jpg
vsszan50829130021173.jpg



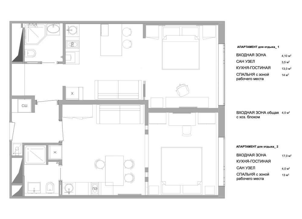
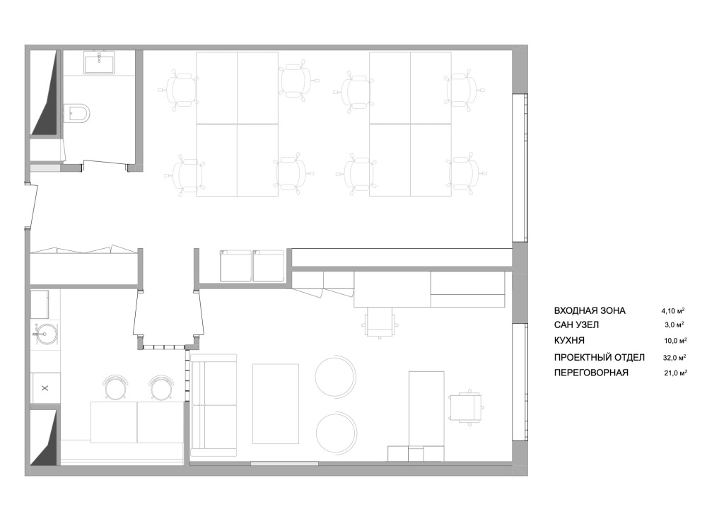
Designer Olga Tishchenko implemented an unusual project - created a space for the young company, in principle, an office house with workplaces and apartments for business employees. The company is engaged in project activities and technical supervision of road projects in Russia.


vsszan50829130021174.jpg
vsszan50829130021175.jpg
vsszan50829130021176.jpg
vsszan50829130021177.jpg
vsszan50829130021178.jpg
vsszan50829130021179.jpg
vsszan508291300211710.jpg
vsszan508291300211711.jpg
vsszan508291300211712.jpg
vsszan508291300211713.jpg
vsszan508291300211714.jpg
vsszan508291300211715.jpg
vsszan508291300211716.jpg
vsszan508291300211717.jpg
vsszan508291300211718.jpg
vsszan508291300211719.jpg
vsszan508291300211720.jpg
vsszan508291300211721.jpg
vsszan508291300211722.jpg
vsszan508291300211723.jpg
vsszan508291300211724.jpg
vsszan508291300211725.jpg
vsszan508291300211726.jpg
vsszan508291300211727.jpg
vsszan508291300211728.jpg
vsszan508291300211729.jpg
vsszan508291300211730.jpg
vsszan508291300211731.jpg
vsszan508291300211732.jpg
vsszan508291300211733.jpg
  • 转载自:interior.ru
  • 图片@interior.ru
  • 语言:俄语
  • 编辑:序赞网
  • 翻译:序赞网
  • 阅读原文
AI文本分析中……
AI色彩命名中……

序赞Ai时刻等待着你的命令!~

与Ai对话形式持续执行相关Ai智能体任务。

暂时没有评论,你回一个呗!~

您需要登录后才可以回帖 登录 | 注册序赞号

快速回复 返回顶部 返回列表