华润置地翡雲悦府 | DIA丹健国际 | 2025 | 中国上海



我们塑造我们的建筑,
而后我们的建筑塑造我们。
—— 温斯顿·丘吉尔

在上海浦东的经纬线上,新杨思作为“金色中环发展带”上的关键一环,既浸润着陆家嘴的现代气韵,又呼应着前滩的时代脉搏,并将这一切融入面向未来的崭新构想之中,让这片充满温情的沃土,孕育无限可能。在这片土地上,华润置地翡雲悦府的设计选择以一种前瞻的姿态进行回应。我们在传统元素基础上,捕捉上海精神中更为核心的现代、进取与国际化特质。
我们此次的设计就是以 “几何化切割”为统一的核心理念,旨在构筑一个充满现代科技感与艺术张力的沉浸式体验空间,以此诠释上海这座城市对于未来感和优雅的全新理解。


vsszan205271180608182.png
vsszan205271180608183.png
vsszan205271180608184.png
vsszan205271180608185.png
vsszan205271180608186.png
vsszan205271180608187.png
vsszan205271180608188.png
vsszan205271180608189.png
vsszan2052711806081810.png



丹健国际在本项目中,担纲了售楼处、架空层与归家大堂的室内设计。其中,售楼处在完成销售功能后,将作为社区会所交付予业主使用。
设计的起点,源于对建筑语汇的深刻理解。我们将各功能空间围绕中心下沉庭院依次排布,并以一周通透的落地玻璃幕墙,将自然光与庭院景致最大限度地引入室内,建立起空间内外持续对话的媒介。室内设计延续了建筑中“切面”的语言——大至空间体块的切割关系,小至立体构成的细节处理,均以简洁利落的几何形态,实现与建筑、景观的和谐共鸣。

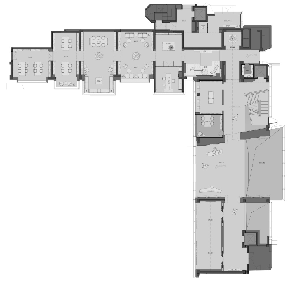
▽ 1F平面图

vsszan2052711806081811.png

▽ -1F平面图

vsszan2052711806081812.png

▽ 主材示意

vsszan2052711806081813.png



以精确的切面致敬城市肌理
从建筑外观到室内造型,利落的切面语言一以贯之。一层,6米高的接待大堂,如同巨石林立的山间,天光从顶面柔和倾泻而下,整体空间充满几何感和力量感。


vsszan2052711806081814.png
vsszan2052711806081815.png
vsszan2052711806081816.png



大面积的浅米色石材“山体”间,深色楼梯蜿蜒而上,如山间横亘着的巨型古木。局部温暖的胡桃木色饰面跃然而出,在冷暖与明暗的碰撞中,赋予空间极致的视觉张力。


vsszan2052711806081817.png
vsszan2052711806081818.png
vsszan2052711806081819.png
vsszan2052711806081820.png
vsszan2052711806081821.png



钻石切面的形态语言更进一步融入墙面造型,在灯光的映射下,通过浅浮雕石材肌理的细腻起伏,捕捉一瞬凝固的星辉。


vsszan2052711806081822.png
vsszan2052711806081823.png

▽ 墙面造型元素转译

vsszan2052711806081824.png



进入社交区域,一个10米高的挑空结构与一层接待大堂连接。空中连廊配以镜面底部,自然消融于空间中。墙面与顶面层层递进的斜切造型,延续设计语言,消解建筑的体量感,让视线得以延伸。


vsszan2052711806081825.png
vsszan2052711806081826.png
vsszan2052711806081827.png



社交区的核心,是一个黑色天然石制作的水吧,以其鲜明的切割体块以及与墙面石材的色彩对比成为视觉焦点。定制的绿色琉璃砖,其温润的质感与独特的色彩,则是致敬上海的摩登与复古,在极简的基调中注入一抹动人的地域情怀。


vsszan2052711806081828.png
vsszan2052711806081829.png
vsszan2052711806081830.png



将室外水景引入室内后,洽谈区以“浮岛”形式静置于下沉5公分的水面上,彻底模糊了室内外的物理边界。水面倒映着天光与庭院景致,空间因此被赋予了一种静谧的意境,座位组随之升华为艺术装置。


vsszan2052711806081831.png
vsszan2052711806081832.png
vsszan2052711806081833.png

▽ 效果图

vsszan2052711806081834.png
vsszan2052711806081835.png
vsszan2052711806081836.png
vsszan2052711806081837.png



在统一中演绎功能与情感
在统一的设计体系下,独立的局部空间适度融入了Art Deco风格,以丰富的细节满足不同功能与情感需求。穿越由五对柱廊构成的艺术长廊,多功能厅以其完备的设施应对从家宴到商务的多元场景,实现其多功能的实用价值。


vsszan2052711806081838.png
vsszan2052711806081839.png
vsszan2052711806081840.png
vsszan2052711806081841.png
vsszan2052711806081842.png
vsszan2052711806081843.png
vsszan2052711806081844.png
vsszan2052711806081845.png

▽效果图

vsszan2052711806081846.png
vsszan2052711806081847.png
vsszan2052711806081848.png



泳池区是一大亮点。以“海浪”为灵感,纯白的波浪造型从墙至顶一气呵成,线条灵动,氛围纯净明亮,仿佛一首流动的白色乐章。这部分特别使用了参数化设计,利用三维软件构筑单体,以四个单元模块的复合铝板复制拼接构成庞大的气势,并与室外光线共同塑造地下泳池空间的奇幻视觉效果。


vsszan2052711806081849.png
vsszan2052711806081850.png
vsszan2052711806081851.png



健身区的切面墙面与线性灯光营造出动感活力,唤醒一天的能量。


vsszan2052711806081852.png

▽效果图

vsszan2052711806081853.png
vsszan2052711806081854.png
vsszan2052711806081855.png

▽ 泳池参数化设计过程

vsszan2052711806081856.png

▽其他空间效果图图

vsszan2052711806081857.png
vsszan2052711806081858.png
vsszan2052711806081859.png



阅读是通往世界的任意门
视线拉回一层的架空层书享区。米色大理石和地面水景,柔和质感与温润光影先为空间铺就静谧底色,似一首安宁的序曲。红褐色木饰面与深绿色大理石的碰撞,让墨色与暖棕在空间里交织对话,于冷暖、深浅的韵律中,营造出沉静安然,又层次丰盈的精神栖息之所。落地玻璃格子窗和拼花地板,传递出悠悠复古的底蕴。


vsszan2052711806081860.png
vsszan2052711806081861.png
vsszan2052711806081862.png
vsszan2052711806081863.png
vsszan2052711806081864.png
vsszan2052711806081865.png

▽效果图

vsszan2052711806081866.png
vsszan2052711806081867.png
vsszan2052711806081868.png



归家大堂的设计,让经典元素在复现与变奏中生成独特韵律,成为项目极具辨识度的视觉标识。地面拼花、墙面分割、天花分块利落干净,远观空间轩敞,细看富有细节与记忆点。


vsszan2052711806081869.png
vsszan2052711806081870.png

▽效果图

vsszan2052711806081871.png
vsszan2052711806081872.png
vsszan2052711806081873.png



翡雲悦府售楼处,远不止于一个展示空间,更是一个容纳未来想象的体验容器。在这里,每一处细节都藏着对上海摩登的当代注解——钻石切面折射的是空间秩序的理性感,泳池天花的波浪线条是浪漫与诗意的流动。我们通过精准的设计控制,将参数化设计的几何构成、感性的自然光影与深厚的地域文化融为一体,最终让“摩登”超越过往的标签,升华为能与城市文脉共鸣、与未来生活对话的鲜活诗篇,静待下一代在此续写属于上海的新故事。


vsszan2052711806081874.png


项目信息:
业主单位:华润上海公司
项目位置:上海浦东新区
设计范围:会所、公区
设计面积:约2600㎡
主创设计:张健
设计团队:陈羿如、徐嘉颢、谢思豪、陈阳超
完成时间:2025年08月
摄影团队:罗文

    • 转自:DIA丹健国际
    • 图片©DIA丹健国际
    • 编辑:序赞网
    • 阅读原文
    AI文本分析中……
    AI色彩命名中……

    序赞Ai时刻等待着你的命令!~

    与Ai对话形式持续执行相关Ai智能体任务。

    xu5292025-11-18 08:27:36
    感谢楼主分享~
    syhgdesign2025-11-23 01:58:58
    感谢楼主辛苦分享
    您需要登录后才可以回帖 登录 | 注册序赞号

    快速回复 返回顶部 返回列表