EVGENIEVSKY | Artem Babayants | 2025 | 俄罗斯
vsszan50899220119001.jpg
vsszan50899220119002.jpg



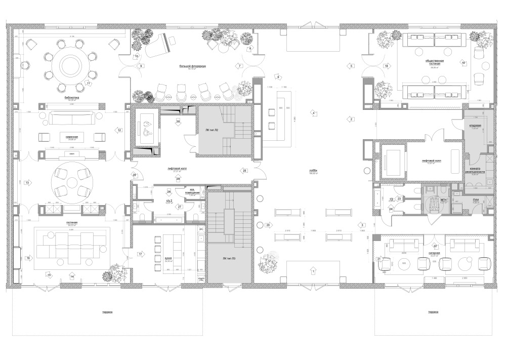
关于豪华区“Eugenievsky”的项目,Babayants团队设计了一部分正在修复的建筑的内部,这些建筑在2010年代丢失了。首先,这是一个具有高级服务生态系统的大大厅。
1300多平方米的俱乐部基础设施。M将包括私人文化活动区和私人娱乐区。他们将激发创造力,智力探索和反思。
该项目的主要目标是通过将该地区的历史和文化意义与现代技术和概念设计相结合,为叶夫根尼耶夫斯基区注入新的活力。
在室内,我们转向古典建筑主题-形式,对称性,圣彼得堡历史建筑中固有的元素-避免风格化和直接引用。通过现代设计的棱镜来重新思考它们。


vsszan50899220119003.jpg
vsszan50899220119004.jpg
vsszan50899220119005.jpg
vsszan50899220119006.jpg
vsszan50899220119007.jpg
vsszan50899220119008.jpg
vsszan50899220119009.jpg
vsszan508992201190010.jpg
vsszan508992201190011.jpg
vsszan508992201190012.jpg
vsszan508992201190013.jpg
vsszan508992201190014.jpg
vsszan508992201190015.jpg
vsszan508992201190016.jpg
vsszan508992201190017.jpg
vsszan508992201190018.jpg
vsszan508992201190019.jpg
vsszan508992201190020.jpg
vsszan508992201190021.jpg
vsszan508992201190022.jpg
vsszan508992201190023.jpg
vsszan508992201190024.jpg
vsszan508992201190025.jpg
vsszan508992201190026.jpg
vsszan508992201190027.jpg
vsszan508992201190028.jpg
vsszan508992201190029.jpg
vsszan508992201190030.jpg
vsszan508992201190031.jpg
vsszan508992201190032.jpg
vsszan508992201190033.jpg
vsszan508992201190034.jpg
vsszan508992201190035.jpg
vsszan508992201190036.jpg
vsszan508992201190037.jpg
    • 转自:Artem Babayants Architects
    • 图片:Artem Babayants Architects
    • 编辑:序赞网
    • 翻译:序赞网
    • 阅读原文
    AI文本分析中……
    AI色彩命名中……

    序赞Ai时刻等待着你的命令!~

    与Ai对话形式持续执行相关Ai智能体任务。

    syhgdesign2025-11-24 01:39:12
    感谢楼主 辛苦分享
    您需要登录后才可以回帖 登录 | 注册序赞号

    快速回复 返回顶部 返回列表