疏影 | 南舍空间设计 | 2025 | 中国江苏



不用奔赴美术馆,客厅的光影,玄关的画作,角落的艺术灯,都是生活的美学答卷。
家的每一处细节,都是无声的画作——用线条勾勒诗意,用质感治愈时光。


vsszan205404230050471.png



一层空间:客厅空间
一层藏静谧时光,集起居室,餐厅,厨房,卧室等空间,让晨光与美梦温柔相拥。


vsszan205404230050472.png
vsszan205404230050473.png
vsszan205404230050474.png
vsszan205404230050475.png
vsszan205404230050476.png
vsszan205404230050477.png
vsszan205404230050478.png



餐厨:
开放式格局解锁通透美学,圆形餐桌聚拢人间烟火,每一顿饭都是家人的亲密奔赴。


vsszan205404230050479.png
vsszan2054042300504710.png
vsszan2054042300504711.png
vsszan2054042300504712.png
vsszan2054042300504713.png
vsszan2054042300504714.png



主卧:
卧室留白成诗,褪去杂陈,只留光影与好梦相拥。


vsszan2054042300504715.png

vsszan2054042300504716.png
vsszan2054042300504717.png



负一层: 休闲 活动空间
楼上是岁月静好的休憩角落,楼下是解锁欢乐的生活剧场,把热爱与陪伴尽情安放。楼下开放式设计,造一处自在撒野的天地。


vsszan2054042300504718.png
vsszan2054042300504719.png
vsszan2054042300504720.png
vsszan2054042300504721.png
vsszan2054042300504722.png
vsszan2054042300504723.png
vsszan2054042300504724.png
vsszan2054042300504725.png
vsszan2054042300504726.png
vsszan2054042300504727.png
vsszan2054042300504728.png
vsszan2054042300504729.png
vsszan2054042300504730.png

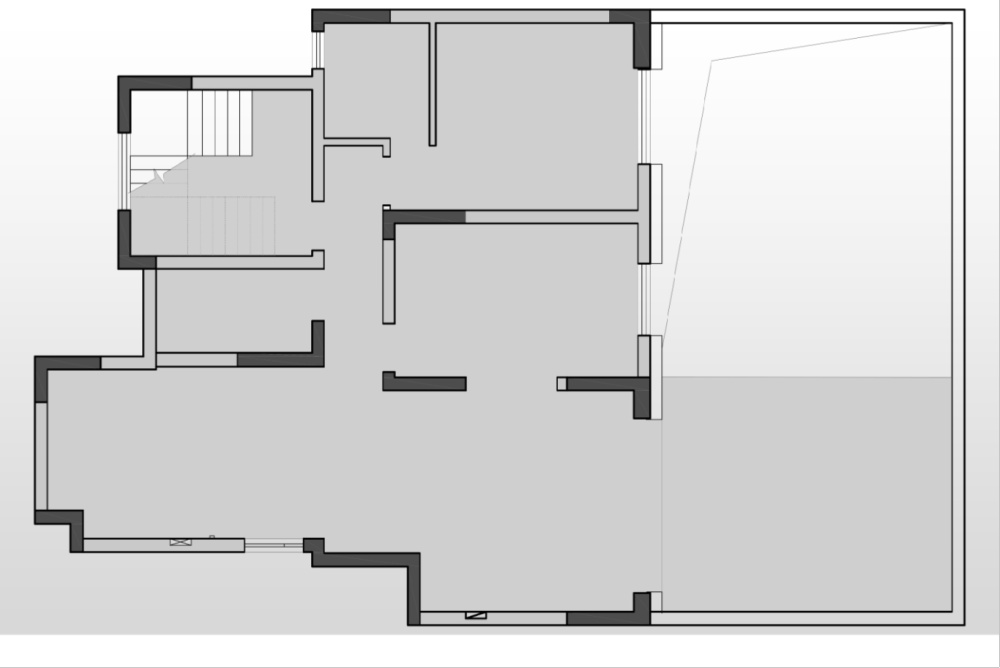
原始结构

vsszan2054042300504731.png
vsszan2054042300504732.png

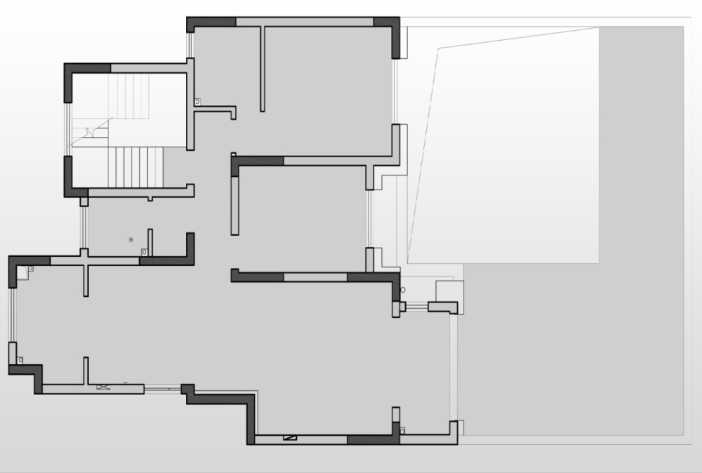
平面设计方案

vsszan2054042300504733.png
vsszan2054042300504734.png



项目设计 I  南舍空间设计
项目面积 I  240m2复式
项目地址 I  南京 林景熙园
项目类型 I  全案设计托管


    • 转自:南舍空间设计
    • 图片©南舍空间设计
    • 编辑:序赞网
    • 阅读原文
    AI文本分析中……
    AI色彩命名中……

    序赞Ai时刻等待着你的命令!~

    与Ai对话形式持续执行相关Ai智能体任务。

    95qabc2025-11-24 20:31:39

    谢谢分享!!!谢谢分享!
    syhgdesign2025-11-26 01:59:02
    感谢楼主辛苦分享
    您需要登录后才可以回帖 登录 | 注册序赞号

    快速回复 返回顶部 返回列表