country house | Evgeny Apollonov | 2025 | 俄罗斯
vsszan50922260043301.jpg
vsszan50922260043303.jpg



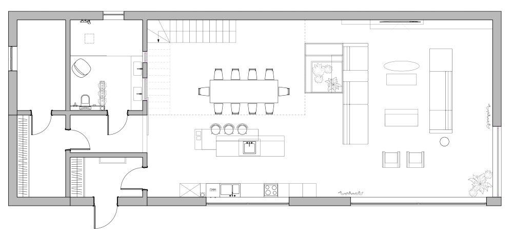
“This country house, located in the picturesque area of Nizhny Novgorod, was built with a dream of a quiet corner in nature in the middle of a birch grove. Performed in the spirit of ascetic modernism on the outside, inside it had to become bright and expressive, reflecting its masters,” says the author of the project designer Evgeny Apollonov.


vsszan50922260043304.jpg
vsszan50922260043305.jpg
vsszan50922260043306.jpg
vsszan50922260043307.jpg
vsszan50922260043308.jpg
vsszan50922260043309.jpg
vsszan509222600433010.jpg
vsszan509222600433011.jpg
vsszan509222600433012.jpg
vsszan509222600433013.jpg
vsszan509222600433014.png
vsszan509222600433015.png
  • 转载自:interior.ru
  • 图片@interior.ru
  • 语言:俄语
  • 编辑:序赞网
  • 翻译:序赞网
  • 阅读原文
AI文本分析中……
AI色彩命名中……

序赞Ai时刻等待着你的命令!~

与Ai对话形式持续执行相关Ai智能体任务。

syhgdesign2025-11-27 00:59:16
感谢楼主辛苦分享
您需要登录后才可以回帖 登录 | 注册序赞号

快速回复 返回顶部 返回列表