烟台八角湾游客服务中心 | 大椽设计 | 2025 | 中国山东
面朝大海,背靠会展中心,在两个巨型尺度的面前,任何形式化的表现都不是最合适的选择。我们将基地的正负零标高处理成一道“地平线”广场,承载着整个会展中心人流和市民休闲活动,让海极致舒展开来,直至无限。

▽一道“地平线”© RudyKu

vsszan205486281016211.jpg

由上海大椽建筑设计事务所设计的烟台八角湾游客服务中心于2025年8月落成,同月20日正式对外开放。作为会展公园内的多功能文化建筑,项目为开发区提供关键的离岸配套服务:咖啡、活体昆虫博物馆、临展、市集、公共卫生间等。构筑城市与海洋的公共接口,并服务于所有市民。

▽建设现场© 大椽设计

vsszan205486281016212.jpg


▽巨构下的服务中心© RudyKu

vsszan205486281016213.jpg

▽拾阶而上© RudyKu

vsszan205486281016214.jpg

▽正在运营的咖啡厅© RudyKu

vsszan205486281016215.jpg

▽-1F 平台© RudyKu

vsszan205486281016216.jpg


折叠自然

交错的平台,是对场地的抽象化回应

游客服务中心位于会展公园的主要入口处,以其为中心,联同社区活动、皮划艇俱乐部、码头服务、共同构成会展公园的整体化设计。基地内的场地高差造成城海之间的空间断层,为延续会展公园原有的线性肌理,游客服务中心被处理成一个嵌入地表的单层体量,横向延展。升起的飘板提升昭示性,下沉区域设计多种灰空间,结合错动折叠的平台语言,形成城市向大海自然延伸的城市阳台。

▽会展公园整体性设计© 大椽设计+AECOM

vsszan205486281016217.jpg


▽清晨的服务中心© AUROR 视觉

vsszan205486281016218.jpg

从标识性的空间,到山、海、城市、空间的语言探讨,再到平实的几何建造,面对烟台与这片海,游客服务中心在用丰富的空间语言与极低调的空间状态,回应着本地市民的日常需求。

▽会展公园现状(左)/场地高差形成的断层(右)© 大椽设计

vsszan205486281016219.png


▽市民活动日常© RudyKu

vsszan2054862810162110.jpg

服务中心的大部分功能“藏”在地下,屋顶与地面相连并覆上绿植,倾斜屋面、下沉庭院与多层标高构架出一套连贯的“折叠”空间系统,也带来极强适应性。抬升的平台成为落日观赏点与集会场所,其下方则形成遮阳休憩长廊。

▽过程草图及空间模型© 大椽设计

vsszan2054862810162111.jpg


▽“折叠”空间系统© RudyKu

vsszan2054862810162112.jpg

▽望向大海的通廊© AUROR 视觉

vsszan2054862810162113.jpg

▽外挑看海平台© RudyKu

vsszan2054862810162114.jpg

▽平台下的休憩空间© AUROR 视觉

vsszan2054862810162115.jpg

▽入口标识© AUROR 视觉

vsszan2054862810162116.jpg

▽展览/市集广场© AUROR 视觉

vsszan2054862810162117.jpg

咨询中心位于平台的核心区,提供售票、咨询一站式服务,结合外广场是空间的焦点与人群集散地。平台外可融合市集、表演、休闲、观景等多种日常活动。

▽三重空间界面© 大椽设计

vsszan2054862810162118.gif


▽滨海走廊© RudyKu

vsszan2054862810162119.jpg

▽陆海之间的温柔过渡© RudyKu


▽零标高处© AUROR 视觉

vsszan2054862810162120.jpg

空间强调的几何纯粹性更是赋予建筑足够的力度,让它具有明晰可辨的视觉特征,彰显其作为城市“主要元素”应有的公共性。

▽公共界面© RudyKu

vsszan2054862810162121.jpg

▽向大海的延展© AUROR 视觉

vsszan2054862810162122.jpg



环境韧性

连续性的尺度层次,界限模糊、允许市民自由穿行

游客服务中心主张建立一种无层级差异的功能对应分区,各片区可以在未来根据需要自由调整。沿长轴展开的线性体量,最宽处约62米,最窄不足24米。设计中预留的大片开放式广场、草坪,是专门为人流高峰准备的“弹性空间”,满足其“活动模式”与“日常模式”的平滑切换。

▽活动模式弹性空间分析© 大椽设计

vsszan2054862810162123.jpg


▽11 月 2 日任贤齐演唱会时期© RudyKu

vsszan2054862810162124.jpg

为优化平台开口形式对行为的影响,设计对比了全覆土、大峡谷及局部下沉庭院等策略。局部下沉庭院在扩大竖向交通核心的同时,保证功能空间享有中庭与海景的双重景观。游客中心则强化竖向连接与视野通达。

▽平台不同开口方案比对© 大椽设计

vsszan2054862810162125.jpg


▽入口处与会展中心的联系© RudyKu

vsszan2054862810162126.jpg

▽快速引导和分散人流的路径系统© AUROR 视觉

vsszan2054862810162127.jpg

▽提供采光的三角形洞口© AUROR 视觉

vsszan2054862810162128.jpg

▽自由通达的交通© RudyKu

vsszan2054862810162129.jpg


海岸诗意

镀锌板与混凝土并置的自然逻辑

建筑统一采用清水混凝土结构,但通过不同材质的细腻搭配来区分空间界面:镀锌板天花板、清水混凝土墙面与石材地面。这些材质彼此协调,共同营造出连贯质朴的空间氛围。

▽波光粼粼的镀锌板© AUROR 视觉

vsszan2054862810162130.jpg

在直面海洋的环境中,材料必须耐用,其质感也应与环境呼应。因此我们选择了镀锌板:它的金属光泽与冷灰色调,能与粗粝的混凝土形成鲜明又协调的对比。混凝土沉稳地锚固大地,镀锌板则轻巧地反射着天光与海影。这种材质的对比,既清晰地展现了构造逻辑,又暗喻了海岸地貌中礁石与水流并置的自然逻辑。

▽台阶次入口© AUROR 视觉

vsszan2054862810162131.jpg

镀锌板表面特意选用大花纹肌理,使其在不同时段的光线下呈现出波光粼粼的视觉效果,犹如将海面的波纹延伸至室内顶棚。随着一日之中光线的流转,天花板仿佛成为海洋的延续,令极简的几何现代性空间突然拥有了温度与叙事感。

▽ 天花板成了海洋的延续© RudyKu

vsszan2054862810162132.jpg


空间重构

自然、文化与日常

项目于2023年6月启动,室内设计围绕三个核心展开:海边的自然性、城市的文化性与生活的日常性。为精准服务日常市民、会展游客与水上运动爱好者这三类客群,我们梳理出如厕、就餐、休憩、办公、展示六大核心功能,并重点强化“驿站”的公共服务与“展陈”板块。

▽功能调整© 大椽设计

vsszan2054862810162133.jpg


▽室内望海© AUROR 视觉

vsszan2054862810162134.jpg

通过更衣区与办公区的位置置换,优化内部流线。释放出的原办公区域被转为商业用途,有效提升了空间活力。同时,将行政管理功能整合进服务大厅,进一步集约了空间。

▽空间优化© 大椽设计

vsszan2054862810162135.jpg


▽虫鸣探秘活体自然博物馆© RudyKu

vsszan2054862810162136.jpg

游客服务大厅以清水混凝土与水磨石为主材,中央区域通过艺术装置与色彩点缀打破单调,服务台结合电子屏与展陈功能,形成动态文化窗口。艺术餐厅以渐变色彩与曲面吊顶模拟海浪形态,鱼群灯具,小舞台与灯光共塑沉浸式用餐体验。

▽咨询中心/艺术餐厅室内效果图© 大椽设计

vsszan2054862810162137.jpg


▽咖啡厅© 大椽设计

vsszan2054862810162138.jpg


后记

滨海沿线日常活跃着骑行、运动、休闲的市民,却长期缺乏与之匹配的休憩与服务节点。“一道地平线”通过环境、空间的多重维度,创造人与大海接触的机会,塑造共享、开放、活跃的城市阳台,也是公共建筑对市民社会最深刻的回应。

▽傍晚海边活动的市民© RudyKu

vsszan2054862810162139.jpg

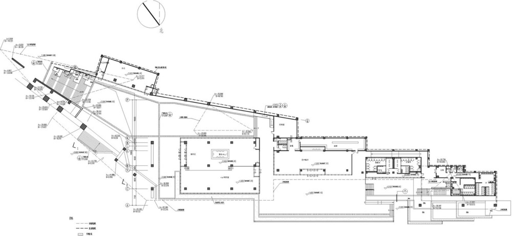
▽总图© 大椽设计

vsszan2054862810162140.jpg





▽组合平面© 大椽设计

vsszan2054862810162141.jpg



▽组合立面图© 大椽设计

vsszan2054862810162142.jpg

▽节点细部© 大椽设计

vsszan2054862810162143.jpg

  • 项目名称:烟台八角湾游客服务中心
  • 项目类型:新建建筑
  • 项目地点:山东烟台经济开发区(烟台黄渤海新区海滨路与贵阳大街交界处)
  • 设计单位:上海大椽建筑设计事务所
  • 主创建筑师:洪东涛
  • 设计团队完整名单:洪东涛、唐坦、吴嘉玮、应涛、红华、喻华杰、王泰昊
  • 业主:烟台黄渤海新区建设交通局
  • 造价:4100万元(总);0.83万元/㎡(单位面积造价)
  • 设计时间:2021年06月-2025年05月
  • 建设时间:2025年9月竣工
  • 建筑面积:4911.23㎡(计容建筑面积2224.50㎡)
  • 用地面积:17500㎡
  • 规划+景观:AECOM
vsszan2054862810162144.jpg
vsszan2054862810162145.jpg
vsszan2054862810162146.jpg
vsszan2054862810162147.jpg
AI文本分析中……
AI色彩命名中……

序赞Ai时刻等待着你的命令!~

与Ai对话形式持续执行相关Ai智能体任务。

暂时没有评论,你回一个呗!~

您需要登录后才可以回帖 登录 | 注册序赞号

快速回复 返回顶部 返回列表