于闹市中构筑一处自然美学秘境 | 菲拉设计 | 2025 | 中国浙江
vsszan205523010409041.png



F L Y  ¢  D E S I G N⊙
# 南山寂照 #
在城市密度的缝隙中,一方未被驯服的几何疆域正舒展着原始张力,方正的没有任何墙体和楼板的空间,单层面积有限,层高不足,根据空间条件与使用者需求对内部做全新规划,汲取自然色彩与材质为空间主旋律,一个富有设计感与艺术感、更贴近他们生活方式的家凝练成形,艺术与自然的并处,兼具精致感与朴素感的家居美学空间,闹市取静独得一处与外界隔绝的私人秘境,大有大隐隐于市之意。


0.png
庭院 / Courtyard
vsszan205523010409042.png
庭院 / Courtyard
vsszan205523010409043.png
庭院 / Courtyard
vsszan205523010409044.png
玄关 / Vestibule
vsszan205523010409045.png
客厅看向玄关 / View From The Living Room To The Vestibule


重新浇筑楼板做上下两层满足居者需求,一楼室内与庭院相比有一定的下沉高度,室内层高有限但恰好业主喜欢下沉式客厅,在矛盾与需求中碰撞出不期而遇的巧妙,仅对入户门位置与室外做平,保持进出门的顺畅,其他公区则以下沉式空间呈现,既解决层高不足的疑难,又兼具进出门的便利。由入户门拾级而下步入内部空间,与家居空间的每次初遇皆是视感体感带来的双重礼序。


vsszan205523010409046.png
玄关 / Vestibule
vsszan205523010409047.png
餐厅看向客厅 / View From The Dining Room To The Living Room
vsszan205523010409048.png
客厅 / Living Room
vsszan205523010409049.png
客厅 / Living Room


客厅挑空中和层高有限的餐厨区带来的沉闷感,发挥多面落地窗采光优势,优化两层空间光与气的流通。玄关处地台延伸至客厅沙发区、楼梯处,形成一个整体的弧形地台环绕于内部空间,化零为整,对区域功能需求的基础框架进行整合,懂得:家——是一个整体。结合地台设卡座式沙发,一旁承重柱用老木板围合,沙发后高至二楼的书墙配置可移动式爬梯,搭配藤编、亚麻、实木家具,艺术美学与自然造物相融相生的沉浸式家居空间,见烟火诗意。


vsszan2055230104090410.png
客厅 / Living Room
vsszan2055230104090411.png
客厅 / Living Room
vsszan2055230104090412.png
楼梯 / Stairs
vsszan2055230104090413.png
客厅 / Living Room


悬浮式阶梯、体块式搭建、线条扶手架,艺术结构的极简美感与通透体态,保持空间尺度与落地窗带有的明亮闲适感。材质、体块、色彩不尽相同的组合,让楼梯变得富有灵性生趣,连接楼层之间的必要桥梁从不缺乏大胆表现自己的可能。一如这个家的使用者,不一味求同,只为构建属于自己的理想居所。


vsszan2055230104090414.png
客厅 / Living Room
vsszan2055230104090415.png
客厅 / Living Room
vsszan2055230104090416.png
客厅 / Living Room
vsszan2055230104090417.png
客厅 / Living Room
vsszan2055230104090418.png
客厅看向餐厅 / View From The Living Room To The Dining Room


细节与温情包裹的客厅,生动呈现了“生活是一场随地而坐的从容”,随遇而安在这个家里不再只是一个形容词,是真实发生的日常点滴。似是长方体的三大竖板搭建的最后几个踏步台阶,也不过是实用美学的一点'手段',竖板内部实则是完备公区收纳的储物柜。实木餐椅、茅草藤编吊灯与直面庭院的开放式厨房,烹饪就餐是一幕与自然交流、与烟火慢叙的舞剧,生活本就是一首浪漫诗。


vsszan2055230104090419.png
餐厅 / Dining Room
vsszan2055230104090420.png
餐厅看向客厅 / View From The Dining Room To The Living Room
vsszan2055230104090421.png
儿童房 / Children's Room
vsszan2055230104090422.png
儿童房 / Children's Room


空间做动静划分,二楼以睡眠空间为主。家长对于儿童房的需求希望它不止于休息所用,更具有童趣和可玩性,以柔和自然的方式融入到睡眠空间当中。卧室做拐角不规则镂空+钢化玻璃造型,站在床上可观察一楼动态与客厅互动,床尾处配置可以运动玩耍的攀岩、云梯。除此之外还给小朋友增加了一处“秘密基地”,似椭圆的门洞钻进去便是一个小小的独立世界,增设一扇不规则窗洞可与一楼互动,在这个地方可以阅读、玩耍、存放自己的“宝物”,有趣的童年是一生的枕边星辰。


vsszan2055230104090423.png
儿童房 / Children's Room
vsszan2055230104090424.png
儿童房 / Children's Room
vsszan2055230104090425.png
主卧 / Master Bedroom
vsszan2055230104090426.png
主卧 / Master Bedroom


以自然为弦、素净雅致的主卧,木地板铺置的地台式床、仿石材石皮背景墙,营造居者想要的与石木相伴的宁静自然的休憩空间,床尾做满柜满足高储物需求。柜体、地台与床头软包的自然衔接,材质肌理的延续与界面转折的弱化处理,令空间功能有序排列的同时未曾有分裂感,整体化设计强化空间叙事的连贯性与居住体验的沉浸感。


vsszan2055230104090427.png
主卧 / Master Bedroom
vsszan2055230104090428.png
主卧 / Master Bedroom
vsszan2055230104090429.png
主卧 / Master Bedroom
vsszan2055230104090430.png
主卫 / Toilet
vsszan2055230104090431.png
次卫 / Sceond Toilet
vsszan2055230104090432.png

原始图

vsszan2055230104090433.png

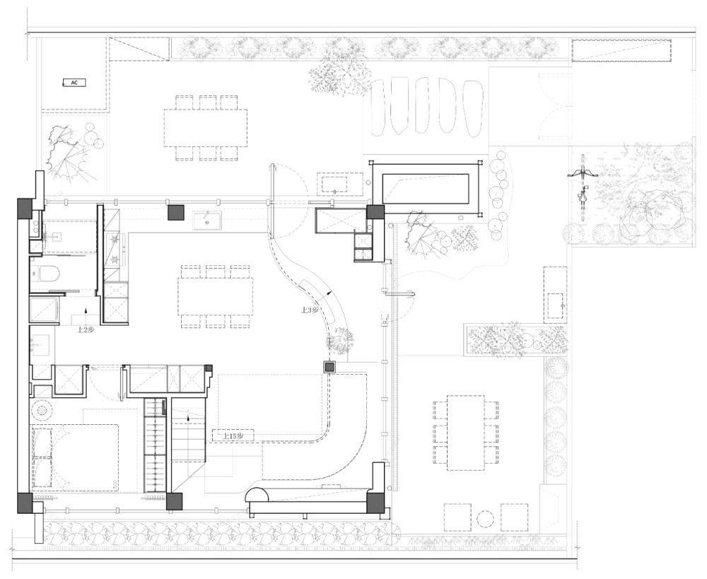
一楼平面图
              
vsszan2055230104090434.png

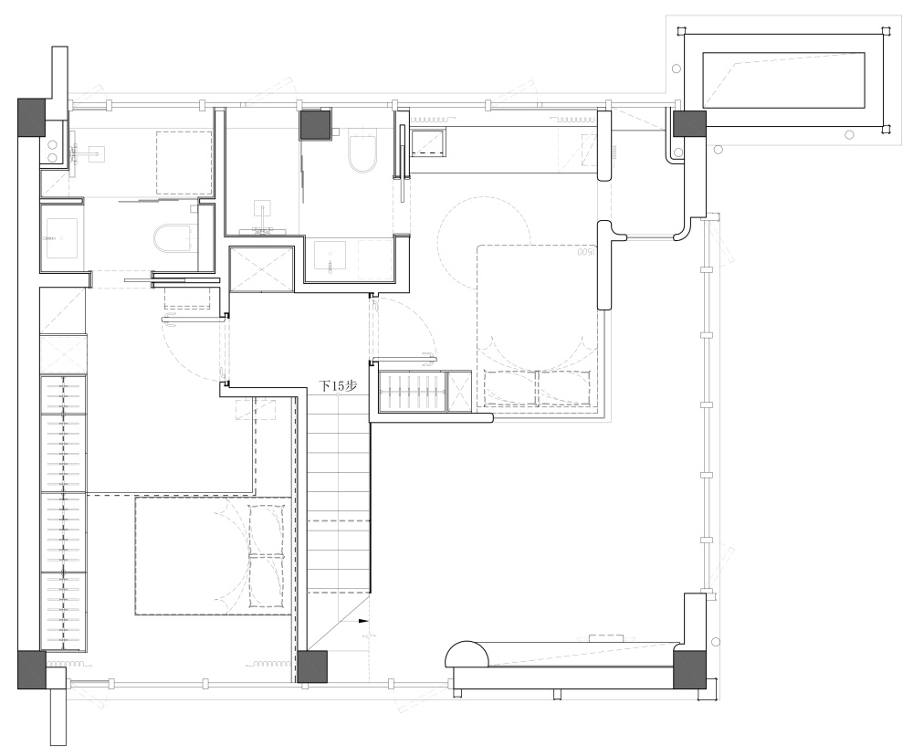
二楼平面图


设计机构 / 菲拉设计
项目类型 / 全案设计
施工单位 / 菲拉设计
项目地址 / 浙江杭州·天空之城星之里
户型 /  复式
面积 / 120㎡


    • 转自:菲拉设计
    • 图片©菲拉设计
    • 编辑:序赞网
    • 阅读原文
    AI文本分析中……
    AI色彩命名中……

    序赞Ai时刻等待着你的命令!~

    与Ai对话形式持续执行相关Ai智能体任务。

    syhgdesign3 天前
    感谢楼主辛苦分享
    syhgdesign3 天前
    感谢楼主辛苦分享
    设计小黑3 天前
    感谢楼主的分享!配色舒适,造型大气,干净简洁舒适的氛围,喜欢!!!
    您需要登录后才可以回帖 登录 | 注册序赞号

    快速回复 返回顶部 返回列表