Lumen公寓 | Block722 | 2025 | 希腊



如果理想的家能够唤起一种轻松的归属感与熟悉感,那么这套位于雅典的公寓,毫无疑问是其创作者 —— 建筑与设计工作室 Block722 —— 的一项成功之作。空间经过精确设计,以回应居住者的日常需求与生活方式,将至高的功能性、项目所在地的气候与条件,以及这家雅典工作室一贯的“有机奢雅”方法融合在一起。其特色是以手工细节为核心的室内设计、开放性与与自然间的内在联系,为当代城市生活带来新鲜的可能性。


▽住宅外观© Ana Santl

vsszan205552020908301.jpg
vsszan205552020908302.jpg



然而,这个项目不仅仅是一件精妙的住宅设计作品。它位于希腊首都雅典Papagou区一条安静且绿意盎然的街道上,是一栋新建住宅楼四、五层的复式单元,同时也是工作室两位创始人 —— 室内设计师Katja Margaritoglou和建筑师Sotiris Tsergas —— 以及他们四口之家的私人长期居所。


▽住宅入口© Ana Santl

vsszan205552020908303.jpg
vsszan205552020908304.jpg



在着手打造这座“永恒之家”时,二人心中已有明确的目标。他们希望空间充满个性;既亲密、回应场地,又能真正达到定制化体验 —— 并成为其工作室价值观的具象表达。同时,他们也希望继续居住在自己喜爱的Papagou 区。对理想地点的寻找最终将他们带到一块朝南、背靠树林的街角地块。与本地承包商 Thekla Construction 合作(该公司为整个项目的开发方),Block722设计了一个包含五套住宅的精品住宅方案。他们将顶层两层保留为自用住宅,并与团队共同定义整个建筑的外观设计与其家内部的每一个细节。这栋住宅建筑形态自信、几何明晰,向Papagou的黄金年代致意 —— 这一地区的大部分建成于 20 世纪,并深受国际风格的影响。同时,设计通过柔和的曲线、木质细节与繁茂的地中海植物进行雕塑,轻柔回应现代主义语汇,却让 21 世纪的需求与美学自然浮现。


▽住宅入口© Ana Santl

vsszan205552020908305.jpg
vsszan205552020908306.jpg



室内,从布局、艺术品摆放,到每件散置或内置家具(其中大部分由工作室自行设计),都以极其精细的方式完全根据家庭成员的生活方式与日常需求量身打造。Margaritoglou与Tsergas与团队进行了无数次生活情景推演,深入分析他们的生活方式、愿望与空间使用习惯,只为打造一座“如手套般契合”他们家庭的真正定制住宅。


▽室内公寓概览© Ana Santl

vsszan205552020908307.jpg
vsszan205552020908308.jpg



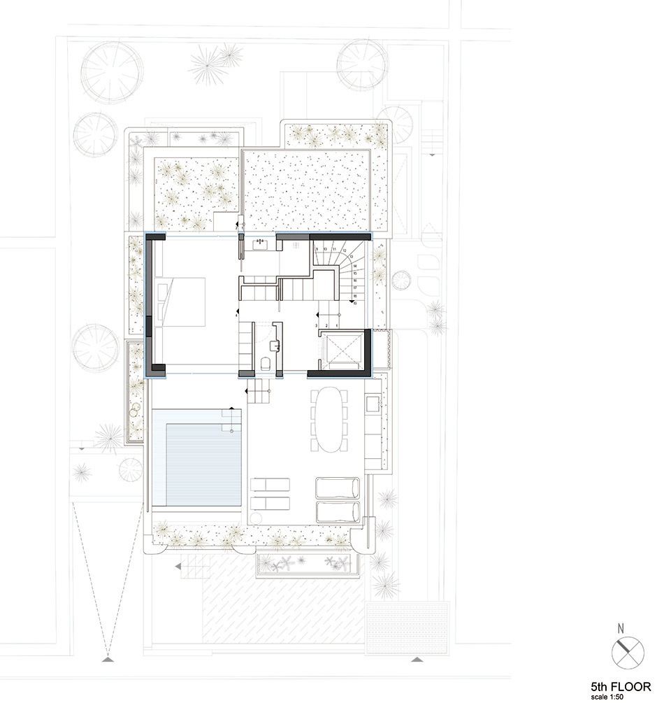
这座住宅的室内面积分布在两层,共230平方米。下层包含两个卧室及一个流动的开放式生活空间,通过家具与轻质隔断巧妙划分功能区,并设有一间适合招待宾客的大厨房。上层则是主卧套房,通向一个栽植的屋顶露台,其中包含泳池、平台与半场篮球场。高度私密、量身定制,并以大幅框景引入绿意与城市景观,这间住宅更像“空中独栋住宅”,而非大型开发项目中的一部分。


▽流动的开放式生活空间© Ana Santl

vsszan205552020908309.jpg
vsszan2055520209083010.jpg
vsszan2055520209083011.jpg

▽厨房空间© Ana Santl

vsszan2055520209083012.jpg
vsszan2055520209083013.jpg



健康与亲自然(biophilic)的理念贯穿整个设计过程:大理石、木材、肌理涂层、红洞石、陶瓷砖与油处理木地板等自然触感材料构成空间主角。延续工作室一贯强调室内外紧密关系的设计主旨,这座住宅旨在让居住者始终与周围环境保持联结。大面积开窗让每个房间都能望见绿意;多功能的休憩与社交空间随需求变化;充盈的自然光确保生活节奏与日照及身体的昼夜节律保持一致。


▽亲近自然的设计© Ana Santl

vsszan2055520209083014.jpg

▽充盈的自然光© Ana Santl

vsszan2055520209083015.jpg
vsszan2055520209083016.jpg

▽卧室局部© Ana Santl

vsszan2055520209083017.jpg
vsszan2055520209083018.jpg



整体构成确保家庭的生活被那些能优雅老化的材料所包裹 —— 强调时间的痕迹与自然的纹理,而非完美光泽。这与Block722更广泛的建筑语言深度呼应。来自本地工匠的手工细节、家具与工艺,为空间注入丰富层次;项目也展现了工作室坚持“以人为本、以自然为本”的设计态度,强调环境(在所有意义上的)与使用者之间的有机关系。整个过程本身也成为团队的重要学习经验。


▽客卧空间© Ana Santl

vsszan2055520209083019.jpg
vsszan2055520209083020.jpg
vsszan2055520209083021.jpg

▽客卧空间细部© Ana Santl

vsszan2055520209083022.jpg
vsszan2055520209083023.jpg



最终呈现的是一份多层次的城市生活研究 —— 同时也是一个温暖、富有地方感的家。这里显得自然、舒适、毫不造作,仿佛从第一天起就已经被生活填满,与家庭的日常完美契合。Block722的方法,以体验与情感为优先,营造了一个能够孕育深度联结的居家环境 —— 居住者之间、人与场所之间、以及人与生活节奏之间。


▽屋顶泳池© Ana Santl

vsszan2055520209083024.jpg

▽傍晚时分© Ana Santl

vsszan2055520209083025.jpg
vsszan2055520209083026.jpg

▽傍晚露台© Ana Santl

vsszan2055520209083027.jpg
vsszan2055520209083028.jpg

▽四层平面图©Block722

vsszan2055520209083029.jpg

▽五层平面图©Block722

vsszan2055520209083030.jpg

▽立面图©Block722

vsszan2055520209083031.jpg

▽剖面图©Block722

vsszan2055520209083032.jpg
vsszan2055520209083033.jpg
vsszan2055520209083034.jpg
vsszan2055520209083035.jpg
vsszan2055520209083036.jpg
vsszan2055520209083037.jpg
vsszan2055520209083038.jpg
vsszan2055520209083039.jpg
vsszan2055520209083040.jpg
vsszan2055520209083041.jpg
vsszan2055520209083042.jpg
vsszan2055520209083043.jpg
vsszan2055520209083044.jpg
vsszan2055520209083045.jpg
vsszan2055520209083046.jpg
vsszan2055520209083047.jpg
vsszan2055520209083048.jpg


Project Name: Lumen residence
Location: Papagou, Athens, Greece
Type: residential
Area: 230,00m²
Status: Completed
Opening Date: October 2025
Key Parties:
Owner: Sotiris Tsergas & Katja Margaritoglou
Developer: Block722 – Thekla Construction
Architecture & Ιnterior design: Block722 Leaders: Sotiris Tsergas & Katja Margaritoglou, Vasiliki Moustafatzi, Patricia Fakiolaki, Francesca Balfoussia
Team: Eleni Boni, Tzemil Moustafoglou, Michael Gryllakis, Nansy Nikolopoulou, Panagiotis Konstantopoulos, Aggeliki Kantarzi, Sofia Stephanopoulou, Marilena Michalopoulou
Master planning & Architecture: Block722
Interior Design: Block722
Landscaping: Block722
Planting: Outside landscape architecture
Main Contractor: Θekla Construction
Project Manager: Vasiliki Moustafatzi
Construction Manager: Michael Gryllakis – Eleni Boni
Procurement: Eleni Boni, Panagiotis Konstantopoulos, Sofia Stefanopoulou
Lighting Design: Placed – Block722

AI文本分析中……
AI色彩命名中……

序赞Ai时刻等待着你的命令!~

与Ai对话形式持续执行相关Ai智能体任务。

暂时没有评论,你回一个呗!~

您需要登录后才可以回帖 登录 | 注册序赞号

快速回复 返回顶部 返回列表