华润置地好房子 | 上海岳蒙设计 | 2025 | 中国上海
vsszan205568030045401.png


2025年中,我们团队接到参与华润置地‘好房子’项目研发的任务,该项目将于2025年11月7日由住建部组织对外开放展览,华润置地甲方对项目高度重视,组建了包括设计、客研以及供应商代表在内的项目团队一起开展共创工作。(华润置地好房子工作组以下简称:好房子项目组或工作组)

如今,华润置地好房子这个项目展示已经半个月了,取得了颇为理想的社会反响,于是我想写一篇文章记录一下这个我们今年最重要的项目。

说实话,我不太想写太多的“是什么”,比如项目中“具体”有多少个亮点,我反而更想多写一些“为什么这样干”以及我们“到底是怎么干的”。

一方面是因为这些“为什么”和“怎么干”中,代表了我们面对问题的“思考”和面对选择的“纠结”,这些思考和纠结对行业更有价值,另一方面,多讲些思考和纠结,更能引起大家的好奇,吸引更多的人去项目参观。

vsszan205568030045402.png



最早的时候,我们希望好房子像概念车一样,能有突破性的创新,甚至项目组领导还开玩笑说:能不能像 2007 年乔布斯发布的 iPhone 那样,发布一个划时代的概念产品?

我明白,项目组其实是想要一个革命性的“概念内核”。

这确实非常难,于是我们开始思考,五年以后或者十年以后,居住应该是什么样的?哪些现在的技术能对未来的“居住范式”有革命性作用?

我们发现,从宏观尺度看,建筑建造技术长期以来未出现革命性突破。人类上一次建筑技术革命,还要追溯到100多年前的工业革命时期,所以,想要做出类似 iPhone 手机那样的革命性创新,很可能需要材料科学取得重大突破,居住建筑才会有革命性的发展。

也就是说,我们很难把“好房子”这事的概念内核,放到大尺度的技术创新上。

那我们再退而求其次,看看房屋配套的技术,如各种装配技术,各种事关“光,温,气,水,电”的电器,智能控制,养老,空间可变,机器人,装配式,等等,这些房屋领域的配套技术是极其的多元蓬勃的。

那么问题又来了,这次参加展览的友商也都实力非凡,毋庸置疑地大家都会不遗余力的使用市场上最先进的配套产品,如果我们仅仅只是堆砌的使用这些配套产品,这会让我们难以避免的陷入“同质化”,而且从严格意义上讲,配套供应商的产品力并不能算是华润置地好房子的核心产品力。

你看,项目组想要的“概念内核”我们要如何求得呢?

我想越是如此,我们越要回到“好房子”这个命题的初心上。

我们需要把问题转换成:假如未来五年、十年后,中国成为全世界中产阶级人口最多、最富裕的国家,我们要为中国的中产阶级提供什么样的生活?

他们应该拥有什么样的生活方式?

对他们而言什么才是美好生活?

在这样的生活中,我们要提供哪些具体的场景和产品力?

通过讨论,我们和项目组达成了一些共识:好房子并不是大房子或贵房子,也不是过小的房子,而是适度、适中,能够承载未来好生活的房子。

那么华润置地对“未来”,对“中国中产”,对“生活方式”对“好生活”的理解,就是我们延展出好房子概念的基石。
vsszan205568030045403.png

通过和客研团队的反复沟通,我们对“好生活”有了初步的手感,用我自己的语言来说就是:

“从容智慧的好生活”
vsszan205568030045404.png

(当时岳蒙对客户资料的概括看板)

我解释一下,过去几十年中国主流的一种社会情绪是:“狠狠的成功”,而疫情结束后,我们能清楚的感受到,大家对生活感受的变化,包括从露营到松弛感的流行,都在反映一种重新认识生活,体验生活,回归生活的冲动,也就是大家厌倦了那种“焦虑紧张”更加渴望“从容”幸福的好生活。

就像是某咖啡品牌倡导的,大自然产出的所有好东西都是从容不迫的,好生活也应该如此,也应该回归从容的生活,我们还希望能够在空间本身提供更多的可变,让居住空间可以智慧的去适应不断变化的家庭生活。
vsszan205568030045405.png

你看,上文我们梳理了一些粗略的手感,接下来,行业常规做法是划分区域(模块),针对不同区域中的痛点进行改善提升。例如,在玄关区域、次卧区域、收纳空间等,分别找出各自的痛点,然后针对性地进行优化和升级,以提升整体居住体验。

这种从独立模块入手、逐个击破的布展方式,我们称之为“分布展示”

比如,厨房模块是一个单独的展览空间,起居模块是一个单独的展览空间,收纳模块也是一个单独的空间。每个模块相对独立且最大化,不受其他模块干扰,模块里的改善点可以表达准确、有力,信息传递也很清晰。
vsszan205568030045406.png

但是我们依然觉得这个做法有问题,是在“头疼医头脚疼医脚”

问题在哪呢?

我举个例子,假如我们有一个课题:设计出最好看的美女。

在市调后,我们会讨论最好看的五官是:范冰冰的鼻子,李冰冰的嘴,刘亦菲的眼睛,迪丽热巴的脸型。

那么如果把这些最好看的五官拼凑到一起,难道就是世界上最好看的美女吗?显然不是,很可能这样只是拼凑了一个缺乏协调性的“整形脸”而已。真正的“好”,显然不是通过这种简单的堆砌实现的。

也就是说,“好生活”面临的真正挑战,往往不在于找不到某个局部的“最优解”,而在于如何在有限的资源下,将各个局部最优解协调地组合起来,处理好它们之间错综复杂的关系。

换句话说,真正的难点在于统筹。我们需要统筹空间与空间、模块与模块、功能与功能之间那些相互交织、彼此约束的关系。正是这些关系,而非孤立的单元,构成了居住体验的基石。

正因如此,只有当这些“关系”达到和谐有序的状态,才能孕育出最好的生活体验。由此,我们将创新的焦点放在了解决这一系列核心关系上。而这一系列关系的总和,便是我们真正关注的——“户型”。

于是好房子团队决定放弃模块分布展示,后续工作以展示户型创新,展示生活关系为主。

与此同时,我们也明确了一些基础输入条件:

以华东地区,三口中产之家,四代宅为原型,设定 120% 得房率,要考虑核心筒和户型的关系,实际套内控制在 150 平米左右,等等

既然选定了户型作为突破的抓手,那么我们接下来面对的是,是创新度的问题。
vsszan205568030045407.png

最早我们提出的户型概念脑洞非常大,做了一些我们认为比较有意思的纯概念设计,但后来发现这种做法也不太合适。

原因在于,纯概念的设计与现实之间的距离过于遥远,这样就完全失去了对现实的借鉴意义。好房子团队决定:还是要基于现有场地条件和现实基础,做一些有弹性的创新,而这个有弹性的度该如何描述?
我们绘制了一条轴线,一端代表天马行空的纯概念,另一端代表中规中矩的纯现实。我们将取舍的平衡点定在轴线的70%~80%位置,整体仍偏向现实基础,但也保留了一定空间用于融入概念性创新。
vsszan205568030045408.png

经过反复的讨论打磨,我们的共识基本稳定在了以下这个平面上。
vsszan205568030045409.png
vsszan2055680300454010.png

接下来,我会重点讲的是我们在户型上的三个核心概念:
vsszan2055680300454011.png
我们尝试围绕三个核心概念来统辖空间模块与生活方式的关系。
就像前文举的例子,让鼻子、耳朵、眼睛、嘴这些局部要素,围绕一个核心概念来组织一样,我们使用这三个核心概念来组织局部要素空,让空间呈现出更多的场景,从而提供多元富足的体验,进而达成整体优化。
具体来说,我们以“后勤环线”“起居环线”“寝卧环线”这三条开敞的环线体系作为空间骨架,本质就是借鉴中国园林空间的“曲”与“折”,也就是说,通过环线的处理,让空间的体验感受变大。请注意,我指的是体验感受,而非仅仅是视觉感受,因为环线让更多功能模块之间产生更多的组合可能,也让家人之间产生更多的交流和互动,还让同等面积的空间承载更多功能和生活方式。洞察及客研参考:【当代家庭精装改造洞察报告】
vsszan2055680300454012.png

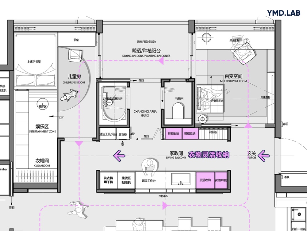
我拿后勤环线和收纳模块的交织举例:

比方说,客户冬天回家,先是在玄关放外套和包,接着穿过客餐厅的起居区域,来到卫生间洗手,然后再到主卧去换上居家的衣服,之后再回到起居空间和家人互动,你看,客户其实是走了一个回头路。

而在衣物的收纳上,很多时候客户并非按照我们预设的那样,脱下来的衣服要挂到玄关衣柜或主卧里,我们在多次的入户调研中看到,非常多的客户,把脱下来的外套放在起居区的沙发餐椅上,以及主卧室的床尾凳上,女主人的化妆凳上,这些都是衣服堆放的重灾区,如果家里有小朋友,那么小孩总能把衣服脱的到处都是。

而当主妇收集要洗的衣服的时候,要在各个卧室以及起居到处找待洗衣物,在夏天需要高频洗衣的季节,主妇还要去洗手间收集待洗衣物,因为家庭成员可能回家就洗澡,把衣服脱在了卫生间,小孩几乎必是这样。

那么,我们就在想,首先能不能让回家的客户不走回头路,一站式处理,换衣服,处理待洗衣物,淋浴,上洗手间?这样能把家务集中,可以把客户从回家到投入家庭生活之前的流程缩短。

于是我们专门设定了一个放置在入口的“后勤区”来集合完成这些“生活任务”,如下图所示
vsszan2055680300454013.png

再比如,一个忙碌的爸爸,一边开着线上会或者一边打着电话回家了,这时候他可以先到靠近入户的“百变空间”把会议开完,不要带着“班味”投入到家庭生活里,再或者居家做“牛马”加班的时候,有了脑雾,精神紧张,那就到百变书房旁边北向的小院子里,透透气,伸个懒腰,和自己和解。

再比如,起居环线中,我们的环线是围绕一个起居岛来搭建的,而起居岛是一个“桌面体系+沙发”组成,这样的设计还是来自于我们过往客户调研深访,一方面越来越多的客户在追求去客厅化,他们不想让沙发围绕一块屏幕来锁死空间的功能。

其次娱乐也从大屏更多的迁移到小屏幕,我们看手机的时长远高于看电视,另一方面正因为小屏幕侵占了我们太多的时间,我们希望能在起居里建立更多的“对视关系”来增强家人的沟通互动。
vsszan2055680300454014.png

(紫色虚线为环线,紫色箭头为对视关系)

你看,我刚才拿环线举例子,把后勤,起居,北向小院,百变空间,收纳,这些要素的交织所形成的体验做了一个说明,本质上,还是在回应上文提到的概念内核:关系。

既然我们刚才讲到了北向的小院子,那接下来就给大家介绍一下我们的四合院体系。

传统中国北方民居的一进四合院基本形态是,“房子围绕院子”,由此构建一个内外交织的生活空间,而我们也希望能在好房子中致敬传统,追求内外交织有序的生活,再加上第四代住宅的兴起,很多产品的得房率超过了 100%+,而这次在我们的户型创新中,我们让“院子围绕房子”,于是我们在户型的周边设置了 4 个大小不一院子,来重新构建我们期望的新四合院生活。

比如,我们在过往的调研中发现,中国在疫情结束后,餐厨空间已经变成了中国人的第一起居空间,某种意义上,餐厨是整个起居板块最重要的地方,而很奇怪的是,绝大多数开发商的惯性是把餐厨都放在北向,而餐厅往往放在房子中间,这是全屋采光和通风最差,动线受干扰最多的地方,我想这也就是为什么,社交媒体上但凡是有餐厨临窗临景,光线明媚的案例,点赞和收藏都很高,因为大家向往这样的生活。

于是我们的在户型中,专门把厨房和餐厅放在了有直接采光的南向,南向的厨房毗邻一个小院子(南向小院 B),如果一个热爱生活的家庭住在这,会把这里开发成一个曼妙的小花园,小菜园,每一次主妇在厨房餐厅忙碌的日常,每一瞥之中都能在这个小花园中找到生活的慰藉,在风和日丽的某个下午,可以把户外餐厅安排在这里,布置一个小花园中的晚餐,让一家人生活在别处,又不远烟火。
vsszan2055680300454015.png

再比如,南向的第二个小院子(南向小院 A),我们放在了孩子活动区的旁边,而孩子活动区的上方就是孩子的卧室,在这里我们有 2 个方面的考虑

一个是北向的孩子房,紧邻北部小院子,和后勤区卫生间关系密切使用方便,而我们把孩子房的使用逻辑又向下方延伸,直到横向起居空间,也就是说,我们在大横厅的空间端头,专门留出了一个亲子的空间,这是家庭的荣誉墙,放置孩子成长路程上的各种里程碑,而这里又紧挨着起居的大桌子,我时常想,一个亲子关系融洽的家庭,爸妈孩子,能在这里一起聊天,甚至父母还能给孩子随时来个“家庭小课堂”,从学业到家庭价值观传承,都能在这里展开讨论,即便是孩子自己也能在这个明亮的,有小院子的区域,展开自己的兴趣,哪怕只是发发呆也好。

另一个考虑是,我们想有一天这个家庭有第二胎了,可以把包括院子在内的整个区域改造成第 4 间房,而且这样的改造,不会影响这个家庭中的核心的起居区,后勤区。

另外,我们还设置的稀柱系统,架高系统,能方便未来的客户重新编辑全屋的布局。
vsszan2055680300454016.png

接下来我们再聊一下寝卧区

寝卧作为一个独立的起居单元,有自己的后勤区,小院子起居区,主卧区。

我们希望这里关起门之后是全屋私密感最强的地方,但这种私密是指:卧室关起门后向起居系统封闭。但寝卧区,还有个能向自然(外部)开放的平台,那就是第四个小院子,而在这个起居单元的封闭和开放之中,寝卧区域才真正完成了独立性。

与此同时,将来主人需要更多的收纳时,可以把寝卧的起居区,改造成一个更大的衣帽收纳区域,而在我们现有的衣帽间中,我们也做了功能的细分,放置了一个换季库,用来安放换季的衣物等。
vsszan2055680300454017.png

说起换季库,其实这是我们的四库全宅概念中的一个“库”
vsszan2055680300454018.png

为什么会有四库全宅的概念?

去年我们公司和中国最好的入户收纳公司一起,在上海做了一次关于收纳的入户课题,在这次课题中我们有一个重要的发现,那就是:“容乱区”的设定。洞察及客研参考:【收纳趋势洞察报告】

首先,一个家庭在具体生活中,不可能使用过于精致的收纳,大部分人不会精致到把一对耳环分别放到 2 个收纳格里,因为主妇们非常忙,而在现实生活中,主妇们真正想要的反而是“去家务化”,而我们在收纳实践中发现,同等面积下,更能容乱的库比排柜其实更好用,消耗的家政精力更少。

其次,分布式的库设定,也让“就近服务”“就近拿取”成为现实,还是主打一个降低家政成本。

综上所述,开敞环线,四合院体系,四库全宅其实最终会形成一个多元的,相互交织,相互影响的场景系统,而这些丰富的场景才是有活力的,幸福的生活的培养皿。
vsszan2055680300454019.png

就像前文我们所讲:“户型”是一系列关系的总和,虽然我们在概念层面划分了:

三环线

四合院

四库收纳

但在实际的空间体验和真实生活里,这些概念是彼此交织,相互支撑的,很难有清晰的边界,也就是说这些关系的总和形成了整体的效应。

受篇幅的限制,我通过前文的几个典型的场景把这种关系的整体做了部分说明,我想对于专业设计师和开发商而言,看平面就能感知和解读到这一切的总和。
vsszan2055680300454020.png

平面的讨论告一段落,随着项目的推进我们马上要面对的是好房子的皮肤系统。

首先,美学这事是基于感官的,众口难调,而我们公司一直以来的设计价值观就是纯“功能主义”的,我们信奉形式追随功能。比如,我们认为中国试飞的六代机,其飞机的外形美极了,因为它的外形不是人为刻意设计出来的,而是风洞吹出来的,是绝对的遵循功能主义的。

过去几年来,我们公司做了很多次的客户深访,我们发现除非你刻意的引导客户问他:你想要什么样的装修,客户才会和你所谓的风格问题,但是你如果问客户:你想要什么样的家?客户几乎非常一致的会回答我们:我想要一个很温馨的家,回家以后可以让我很放松.....

所以在皮肤上我们尽量避免使用刻意的装饰或者无用的造型。我们尽量的用功能,用场景,用关系,去回应客户的关于“家”的感受需求。

于是我们和好房子项目组一拍即合:不要做地产味的皮肤。

那好房子到底要做一个什么样的皮肤呢?

于是我们总结了三个点:

1.喜闻乐见,受众广

也就是大家喜欢,不至于特别抗拒。虽然没有任何东西是所有人都喜欢的,但受众要尽可能广泛。

2.成本可控,好实现

好房子不能是装修成本极其高昂的,最好通过上游的先进工业技术去实现,这样能带动上下游的产业,实现方式可以是整装的。

3.温馨松弛、有家感

我希望皮肤系统更多的强调“家感”,而不是过去十几年房地产商一直在强调的看起来的“品质感”。

说来可笑,地产这种莫名其妙的品质感,甚至和地产商交付的房屋质量都没有关系,所表达的也仅是要“看起来贵”,那这是地产营销的需求,不是客户的需求,我们这次讨论的是好房子,不是好营销。

所以,我们觉得无论是 300㎡ 还是 30㎡ 的家,都应该是松弛、温馨的,是一个能容得下“一家活泼泼的人”吃喝拉撒、喜怒哀乐的地方,而不是一个奢侈材料堆砌在墙面的展厅。

另外还有一个影响皮肤取舍的要素是时间,整个施工周期为二十多天,这就决定了我们,设计阶段就要充分考虑工厂现有的技术和材料,依据这些技术和材料的表现力去完成设计。

vsszan2055680300454021.png

在项目方案确定后,我们的团队于国庆假期期间全力投入施工图绘制工作。大家放弃休息,进入了高强度落地阶段。得益于华润置地项目落地团队的高效协作,30天后,项目最终于 11 月 1 日顺利完工。

回顾这段攻坚历程,虽有遗憾,但收获更多。遗憾的是,由于时间紧迫,我们在场景模块置换、家具可编辑等细节上未能充分展开。而最大的收获在于,我们借此机会,将过去几年的研究成果以“好房子”为主线进行了系统性的串联与落地,这让我们受益匪浅。

本次分享的内容仅是项目中的局部,我们主要聚焦于户型中3个概念的探讨,实际上,项目设计过程中的思考远比此文所讲述的更为深入。

这段工作经历也让我们更加坚信,好房子的本质不在于形式的标新立异,而在于真正理解并精准回应中国人未来生活方式的真实需求。

作为华润置地好房子项目团队的一员,我们从最初的纠结与探索,到逐渐把握项目脉络,最终交出了一份创新与实用兼备的答卷。令人欣慰的是,在 11 月 7 日的正式展出中,华润置地好房子项目获得了领导与参观者的积极评价。这一成果的取得,离不开华润置地领导的信任与辅导,也离不开各合作伙伴的全力配合,在此作为工作组一员的我们深表感谢。

我们坚信,在以华润置地为代表的优秀房企的持续探索与推动下,中国居住事业必将迈向新的高度。

岳蒙

2025年11月
vsszan2055680300454022.png
vsszan2055680300454023.png
vsszan2055680300454024.png
vsszan2055680300454025.png
vsszan2055680300454026.png
vsszan2055680300454027.png
vsszan2055680300454028.png
vsszan2055680300454029.png
vsszan2055680300454030.png
vsszan2055680300454031.png
vsszan2055680300454032.png
vsszan2055680300454033.png
vsszan2055680300454034.png
vsszan2055680300454035.png
vsszan2055680300454036.png
vsszan2055680300454037.png
vsszan2055680300454038.png
vsszan2055680300454039.png
vsszan2055680300454040.png
vsszan2055680300454041.png
vsszan2055680300454042.png
vsszan2055680300454043.png
vsszan2055680300454044.png
vsszan2055680300454045.png
vsszan2055680300454046.png
vsszan2055680300454047.png
vsszan2055680300454048.png
vsszan2055680300454049.png
vsszan2055680300454050.png
vsszan2055680300454051.png
vsszan2055680300454052.png
vsszan2055680300454053.png
vsszan2055680300454054.png
vsszan2055680300454055.png
vsszan2055680300454056.png
vsszan2055680300454057.png
vsszan2055680300454058.png
vsszan2055680300454059.png
vsszan2055680300454060.png
vsszan2055680300454061.png
vsszan2055680300454062.png
vsszan2055680300454063.png
vsszan2055680300454064.png
vsszan2055680300454065.png
vsszan2055680300454066.png
vsszan2055680300454067.png
vsszan2055680300454068.png
vsszan2055680300454069.png
vsszan2055680300454070.png
vsszan2055680300454071.png
vsszan2055680300454072.png
vsszan2055680300454073.png



感谢华润置地产品中心各位领导的支持和辅导

感谢华润置地好房子工作组各位同事的群策群力


  • 感谢好房子工作组其他顾问:
  • 软装单位:上海璞辉空间设计有限公司
  • 灯光顾问:启迪时光
  • 整装单位:盾美智造
  • 转自:上海岳蒙空间设计
  • 图片©上海岳蒙空间设计
  • 编辑:序赞网
  • 阅读原文

华润置地好房子 | 上海岳蒙设计 | 2025 | 中国上海_vsszan2055680300454074.png
华润置地好房子 | 上海岳蒙设计 | 2025 | 中国上海_vsszan2055680300454075.gif
华润置地好房子 | 上海岳蒙设计 | 2025 | 中国上海_华润置地好房子 | 上海岳蒙设计 | 2025 | 中国上海-1.jpg
AI文本分析中……
AI色彩命名中……

序赞Ai时刻等待着你的命令!~

与Ai对话形式持续执行相关Ai智能体任务。

暂时没有评论,你回一个呗!~

您需要登录后才可以回帖 登录 | 注册序赞号

快速回复 返回顶部 返回列表