Green Light Living | Hao Design | 2025 | 中国台湾



把绿意进家里:这是我们的光之游乐园。
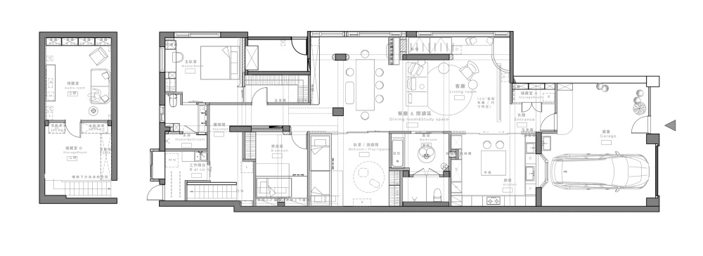
位於台北民生社区、屋龄三十几年的老屋窗外即是令人向往的公园绿带视野,但旧有的格局却像一面高墙使客厅与公共空间长期处於昏暗的状态,与屋主对小朋友们的生活想像背道而驰。所以我们希望能够打破框架,迎接日光,扭转这份沉重感。
我们拆除墙体後,屋子原有的结构柱体被巧妙地保留并整合进设计里。它们不再是旧格局的障碍,反而让空间成为孩子们肆意追逐嬉戏时的游乐场。设计核心聚焦在「开放与流通」—让原本藏在屋子最暗角落的厨房,与客厅、书房空间完全开放,将零碎的房间配置及格局重新整合。现在,整座公共空间成功引渡了公园的自然采光。这里已然成为一处光与绿意共存、一家人可以绕着结构柱尽情穿梭、自由成长的「光之游乐园」。


vsszan121355090109111.png.jpg
vsszan121355090109112.jpg.jpg
vsszan121355090109113.jpg.jpg



长形的格局使空间通透但过於直接,我们希望屋主们回到家一样有仪式感,所以玄关设计了小小的独立角落,可摆放一些随手可放置的小物品,一旁的储藏室可将要出门或回到家需暂放的东西摆放及收纳乾净。


vsszan121355090109114.jpg.jpg
vsszan121355090109115.jpg.jpg



餐桌後方的空间规划了整面展示空间,让阅读空间及绿意盎然的窗外能够共存,形成自然的氛围。整体色调使用淡雅的涂料搭配手刷的质感,以自然舒适为主。


vsszan121355090109116.jpg.jpg
vsszan121355090109117.jpg.jpg
vsszan121355090109118.jpg.jpg



家俱的选择上希望整个空间感是穿透进来的,所以舍弃厚重的桌面,让整体氛围轻松不再会有沉重桌角的感觉。


vsszan121355090109119.gif.jpg

BEFORE

vsszan1213550901091110.jpg.jpg

AFTER



原本的隔墙让空间变得狭窄、光线昏暗,後来将格局重新设计,多余的墙面打掉,以投影幕为主的客厅设计,让书房到客厅的空间贯穿形成宽敞通透空间。


vsszan1213550901091111.jpg.jpg
vsszan1213550901091112.jpg.jpg
vsszan1213550901091113.gif.jpg



将空间开放後,右侧的自然采光便能洒进原本旧有的格局,将客厅及各个角落点亮。外面一层绿意也都会扩散进来,厨房、卫浴、小朋友房间连成一线,运用拉门设计让光源也可以进到各个区域。


vsszan1213550901091114.jpg.jpg
vsszan1213550901091115.jpg.jpg



我们保留原本旧有隔间的柱子做了不同造型,可以让小朋友嬉戏跑跳的时候有一个回字型的动线可以捉迷藏,形成一个可以肆意穿梭的有趣空间。


vsszan1213550901091116.gif.jpg



我们在长形的格局放了一个可以自由变化及组合的沙发,让小朋友在玩耍时有许多想像力及创造力,大人们也可以弹性的利用空间。


vsszan1213550901091117.jpg.jpg
vsszan1213550901091118.jpg.jpg
vsszan1213550901091119.jpg.jpg



小朋友的游乐空间利用旧格局之间的结构,柱子留下了的畸零空间变成小朋友的秘密基地,做了一个垫高的空间,可以满足像是玩具及视听装置的收纳空间。上方的单杠也能悬挂秋千,增加趣味性。


vsszan1213550901091120.jpg.jpg
vsszan1213550901091121.jpg.jpg
vsszan1213550901091122.jpg.jpg



厕所空间分成三等份的分离式设计,空间变大但能够更多人同时使用。中间摆放了圆弧形造型的面盆,小朋友也不会有互抢洗手槽的问题,利用这些设计的规划,让公共卫浴的空间感放大,也增加便利性。


vsszan1213550901091123.jpg.jpg



因为公共卫浴在房子内的角落,所以厕所到公共空间的运用了玻璃拉门的设计,让它的自然光是可以进去到这个厕所空间,同时配置了通风、除湿的装置及电热毛巾杆,空间就能够保持乾燥,毛巾也不会潮湿发霉。


vsszan1213550901091124.jpg.jpg
vsszan1213550901091125.jpg.jpg

AFTER

vsszan1213550901091126.jpg.jpg
vsszan1213550901091127.jpg.jpg

BEFORE



厨房调整成开放式空间,配有拉门设计可隔绝油烟,中岛设计让全家大小都能一同协助料理。
水槽设计在窗台前,透过阳光的洗礼,厨具也能较快乾燥。窗台部分,我们更新了老旧的窗户但保有原屋的六角窗台设计,整体空间功能齐全也动线简约方便。


vsszan1213550901091128.jpg.jpg



小男孩的房间我们改造成上下层的感觉,栏杆的线条旧像小小画笔的笔触那样的线条,结合孩子们喜欢绘画的兴趣!也透过柱子做了一些凹槽,增加了也蛮多收纳的角落。


vsszan1213550901091129.jpg.jpg
vsszan1213550901091130.jpg.jpg



女孩子的房间整体规划将上下空间设计在内侧,拉门打开时自然光也能洒进来,简单化上下舖的概念,让空间能灵活使用,打造孩子们的创意空间。


vsszan1213550901091131.jpg.jpg
vsszan1213550901091132.jpg.jpg
vsszan1213550901091133.jpg.jpg



因为孩子们喜欢音乐,所以结合他们的兴趣使用音符的造型设计栏杆扶手。


vsszan1213550901091134.jpg.jpg
vsszan1213550901091135.jpg.jpg
vsszan1213550901091136.jpg.jpg



老屋的地下室,摇身一变成为爸爸的秘密空间。因应小空间设计了一个完成的视听娱乐空间,让讲究声音的屋主更能够沉浸式享受音响的带来的氛围感。


vsszan1213550901091137.jpg.jpg
vsszan1213550901091138.jpg.jpg
vsszan1213550901091139.jpg.jpg



主卧部分空间不大,但因为其位置是唯一有自然采光的房间,所以一样保留了两面窗户的采光,让阳光通透进来。


vsszan1213550901091140.jpg.jpg



浴厕部分设计双面盆,个别使用也能节省时间。


vsszan1213550901091141.jpg.jpg
vsszan1213550901091142.jpg.jpg
vsszan1213550901091143.jpg.jpg



回到室外,米白色的整体视觉风格,透过温暖和煦的自然采光,让三十年的老屋有了温馨舒适的风格。
车库空间设计成像一个家的庭院,使用欧洲米色系碎石板拼贴,强调自然花纹的状态,不同材质去做搭配变化,透明的玻璃屋上方也被绿意包围,让入门及车库空间整体呈现放松度假的氛围。


vsszan1213550901091144.jpg.jpg
vsszan1213550901091145.jpg.jpg



此地区离公园距离较近,屋主反映常常会有蚊虫飞进室内空间,我们设计了「感应式风墙设计」,当有人接近风墙时,自动启动装置就能将蚊虫吹走,进屋就不用担心蚊虫顺势飞进屋内了。一旁也规划了一个户外洗手台,孩子们在外玩耍回来,也可以先洗手再进入室内空间。

Interior Design|HAO Design
Interior Styling|HAO’s Life
Photography|Hey!Cheese
Text|SIAO
  
AI文本分析中……
AI色彩命名中……

序赞Ai时刻等待着你的命令!~

与Ai对话形式持续执行相关Ai智能体任务。

暂时没有评论,你回一个呗!~

您需要登录后才可以回帖 登录 | 注册序赞号

快速回复 返回顶部 返回列表