乐悠悠 | 175㎡亲子宅 | 宏福樘 | 2025 | 中国四川
vsszan205803140057291.gif
vsszan205803140057292.png
vsszan205803140057293.png
vsszan205803140057294.gif
vsszan205803140057295.png
vsszan205803140057296.png
vsszan205803140057297.png



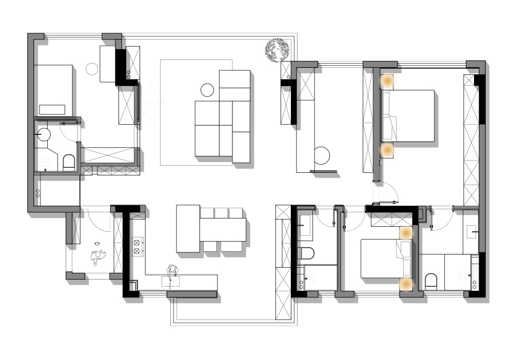
入户改造聚焦极简美学与功能重构,通过几何体块的纯粹塑形整合碎片化空间。原始正对卧室的卫生间经体量裁切,独立出内置储物间,以沉静块面收纳户外装备、家庭工具及儿童大型玩具。
延展入户墙体以定制柜体串联电视墙面,构筑连续视觉序列,柜体上下分段悬浮并嵌入分色设计,内嵌灯光,在虚实错落间提升层次。最终实现储物扩容、动线梳理与视觉延展的共生。


vsszan205803140057298.png
vsszan205803140057299.png
vsszan2058031400572910.png
vsszan2058031400572911.png
vsszan2058031400572912.png



以流畅的动线重构为引导,客厅将卧室入口巧妙隐匿于一体延展的电视背景墙系统中,形成连贯而完整的界面叙事。拆除阳台隔阂后,自然光与空间视野同时向公区渗透,拓展了区域的体感维度。
居于中央的岛屿沙发以其低伏环抱的造型成为空间锚点,不仅以模块化的柔软体量塑造出多元场景,更以开放的姿态引导家庭成员在此交汇、流动,于极简的框架下蕴生出自由而连贯的家庭轨迹。


vsszan2058031400572913.png
vsszan2058031400572914.png
vsszan2058031400572915.png
vsszan2058031400572916.png



以一道墙体的拆除为契机,书房与公区演变为通透的半开放场域,视线与光线得以自由漫溢。不可拆解的结构柱体,被精准定制的柜体悄然包裹,与电视墙面构成连续的整体界面。
整个客厅界定出围坐交谈、观影、游戏、孩童嬉戏的亲密氛围,让日常行为与空间形态产生轻盈互动。在此流动格局中,功能与情感交织,塑造出包容生长的家庭生活场景。


vsszan2058031400572917.png
vsszan2058031400572918.png
vsszan2058031400572919.png
vsszan2058031400572920.png
vsszan2058031400572921.png
vsszan2058031400572922.gif



空间中置的卧室墙体拆除,改造为半开放式书房。面对书房一侧卫生间门洞的视觉干扰,设计通过局部墙体延伸与材质转换进行含蓄遮挡,在保证动线独立的同时,维持空间整体的纯粹感。
书房内,原木与纯净白的材质对话勾勒出温润的工作氛围,顶部大面积软膜天花模拟自然光感,倚墙而设的斜面展示柜则以精准的几何形态,为手办藏品赋予轻盈的展陈舞台。


vsszan2058031400572923.png
vsszan2058031400572924.png
vsszan2058031400572925.png



此举不仅极大拓展公共区域的视觉通透性与活动尺度,更在开放格局中编织出细腻的陪伴动线——于此办公时,视线与对话皆可与客厅中玩耍的孩子自然联结,形成一种松弛却亲密的共处关系。


vsszan2058031400572926.png
vsszan2058031400572927.png
vsszan2058031400572928.png
vsszan2058031400572929.gif
vsszan2058031400572930.png
vsszan2058031400572931.png



原始家政阳台纳入后,餐厨区域的光线与面积均获得释放。开放式厨房布局,不仅增强了空间的流动性与自由度,更将烹饪场景融入家庭互动核心——在此备餐时,视野可轻松覆盖客厅、书房等公区,与四处探索的孩子保持自然联结。
餐厅以岛台衔接长桌构成复合体块,既满足日常简餐与朋友聚会的社交需求,也成为三口之家共同制作料理、分享生活的仪式场域。便捷的环游动线让烹饪、用餐与交流无缝衔接,塑造出紧密而舒展的共处时光。


vsszan2058031400572932.png



公区卫生间通过一道隐形门悄然隐入墙体,走廊视觉被完整,成为空间序列中不着痕迹的静谧节点。内部延续外部浅沙色基调的砖石肌理,以统一的视觉语言塑造出舒缓且具包裹感的氛围。


vsszan2058031400572933.gif
vsszan2058031400572934.png
vsszan2058031400572935.png
vsszan2058031400572936.png



为给予成长中的男孩独立与私密的成长天地,特将儿童房置于入户一端,形成配备独立卫浴的套房格局,在物理与心理层面,都与主卧保持恰当的距离感。
空间整体以纯白调和温润的大地色系铺陈,通过造型灵动的壁灯、边几与抱枕悄然点缀童趣。床体贴墙布置,以定制的L型软包结合乳胶漆分色设计,围合出既具包裹感又不失开阔的睡眠区域,床尾一侧则整合为专属的学习区域。在简约的框架中,为从孩童到少年阶段,预留出自由演变的精神领地。


vsszan2058031400572937.png
vsszan2058031400572938.png
vsszan2058031400572939.png
vsszan2058031400572940.png



主卧通过拆除内部隔墙释放出开阔格局,并将卫生间外移至与墙面齐平,构筑出完整统一的视觉界面。
沿墙体延伸的整体衣柜,其上部内嵌可升降投影幕布,为休憩空间叠增沉浸的观影情境。床头背景墙借由局部内凹与木质穿插的手法,塑造出立体而温润的层次韵律,在极简的基调中,营造出兼具功能整合与感官放松的静谧栖居氛围。


vsszan2058031400572941.png
vsszan2058031400572942.png
vsszan2058031400572943.png
vsszan2058031400572944.png
vsszan2058031400572945.png
vsszan2058031400572946.png


设计师 Designer :蒋礼
主编 Chief editor :san
视频 Video :大方
平面 Graphic designer :珺珺

    • 转自:宏福樘设计
    • 图片©宏福樘设计
    • 编辑:序赞网
    • 阅读原文
    AI文本分析中……
    AI色彩命名中……
    syhgdesign2025-12-15 01:09:03
    感谢楼主辛苦分享
    普利斯维特2025-12-15 11:50:24
    开放互动的厅书房能更好的增进家族成员的互动机会,更多的亲子适童环境也让人欣喜。
    您需要登录后才可以回帖 登录 | 注册序赞号

    快速回复 返回顶部 返回列表