在舍 Z SPACE | 鹏和朋友们|2025 | 中国辽宁



2022年3月23日中午,我(王鹏)和业主加上了微信。之前,他给我发了一封很长很长的邮件,没及时回复。
胡本强(业主):先简短自我介绍一下,我是一名家居从业者,太太热爱艺术品收藏、内心一直希望有一个空间装着生活和艺术、自己所想和热爱。传递一个生活艺术空间体验。
王鹏(设计师):看完邮件就能感受到胡总对这个事业的热爱,很感动。
直到今天,项目结束,3年9个月的时间,不长,也不短。
因为选了一条艰难的路,在一个室内空间,再浇筑一栋清水混凝土建筑。没有经验、没有参考,业主亲身下场负责落地,从选砂、水泥型号、配比、支模、浇筑...在东北,数百次的试验。
以建筑构成空间,以空间承载生活,以生活安放艺术。在800㎡的清水混凝土建筑里,我们完成了一次从物理构建到精神呈现的完整叙事。


vsszan206063270029111.png



建筑主入口
材质:清水混凝土
立柱:φ250mm,长4m
玻璃:2.3X10m


vsszan206063270029112.png
vsszan206063270029113.png
vsszan206063270029114.png
vsszan206063270029115.png


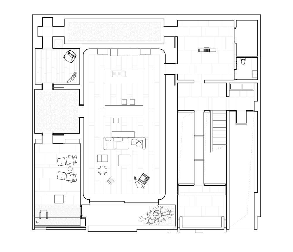
1F


vsszan206063270029116.png
vsszan206063270029117.png
vsszan206063270029118.png


混凝土浇筑的灯


vsszan206063270029119.gif
vsszan2060632700291110.png
vsszan2060632700291111.png
vsszan2060632700291112.png
vsszan2060632700291113.png
vsszan2060632700291114.png


混凝土浇筑的座椅


vsszan2060632700291115.png
vsszan2060632700291116.png
vsszan2060632700291117.png
vsszan2060632700291118.png
vsszan2060632700291119.png
vsszan2060632700291120.png
vsszan2060632700291121.png
vsszan2060632700291122.gif


2F


vsszan2060632700291123.png
vsszan2060632700291124.png
vsszan2060632700291125.png




vsszan2060632700291126.gif
vsszan2060632700291127.png
vsszan2060632700291128.png
vsszan2060632700291129.png
vsszan2060632700291130.gif
vsszan2060632700291131.png
vsszan2060632700291132.png


会客厅


vsszan2060632700291133.png
vsszan2060632700291134.png
vsszan2060632700291135.png
vsszan2060632700291136.png
vsszan2060632700291137.gif
vsszan2060632700291138.png
vsszan2060632700291139.png
vsszan2060632700291140.png
vsszan2060632700291141.png
vsszan2060632700291142.gif


书房


vsszan2060632700291143.png
vsszan2060632700291144.gif
vsszan2060632700291145.png
vsszan2060632700291146.png
vsszan2060632700291147.gif
vsszan2060632700291148.gif
vsszan2060632700291149.png




vsszan2060632700291150.png



玻璃桥
尺度:整块玻璃,长6.5m 宽0.8m 高0.9m
基础:原建筑梁
桥托:不锈钢


vsszan2060632700291151.png
vsszan2060632700291152.png
vsszan2060632700291153.png
vsszan2060632700291154.png
vsszan2060632700291155.gif
vsszan2060632700291156.png
vsszan2060632700291157.png


一间美术馆


vsszan2060632700291158.png
vsszan2060632700291159.png
vsszan2060632700291160.png


一座桥
一间美术馆
一盏灯
一个艺术品
眺台

vsszan2060632700291161.png
vsszan2060632700291162.png
vsszan2060632700291163.png
vsszan2060632700291164.png
vsszan2060632700291165.png


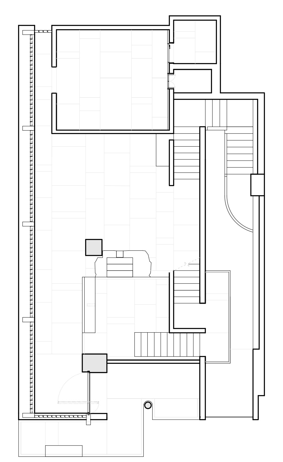
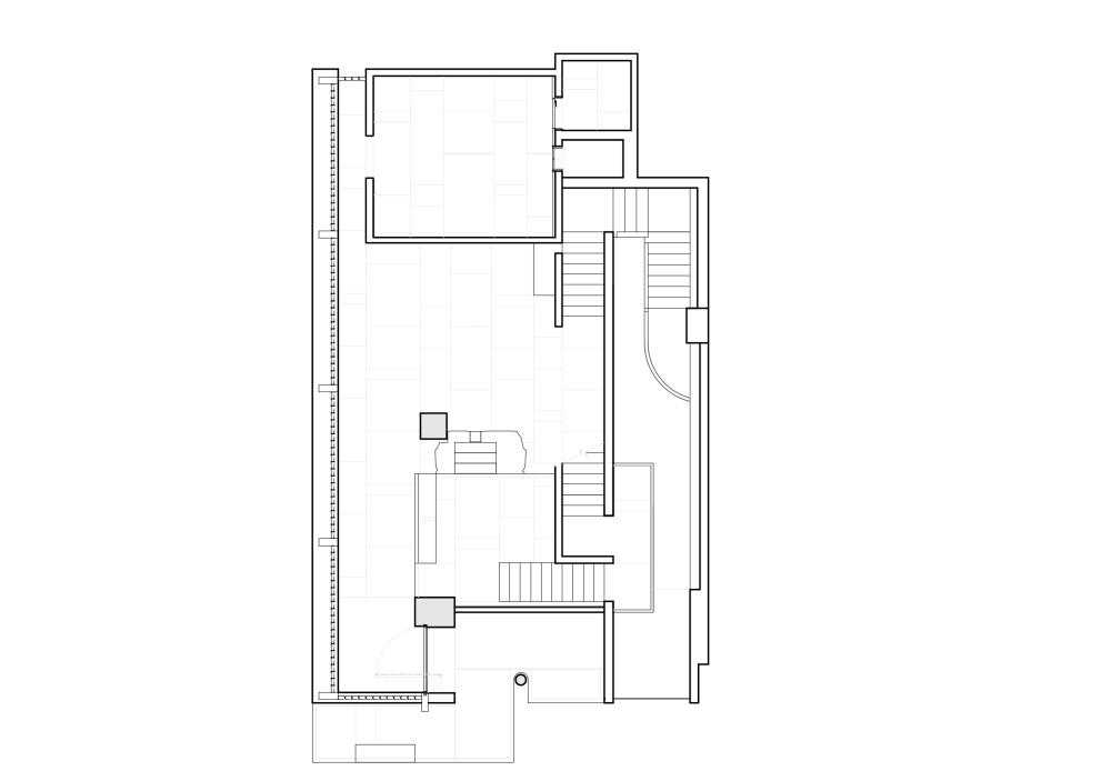
-1F


vsszan2060632700291166.png


峡谷


vsszan2060632700291167.png
vsszan2060632700291168.gif
vsszan2060632700291169.png
vsszan2060632700291170.png


峡谷
尺度:高13m宽2.3m
材质:清水、木、光

vsszan2060632700291171.png
vsszan2060632700291172.gif
vsszan2060632700291173.png
vsszan2060632700291174.png
vsszan2060632700291175.gif
vsszan2060632700291176.png
vsszan2060632700291177.png
vsszan2060632700291178.gif
vsszan2060632700291179.png
vsszan2060632700291180.png



当空间成为精神的容器,时间便是唯一的量尺。


vsszan2060632700291181.gif
vsszan2060632700291182.png
vsszan2060632700291183.png
vsszan2060632700291184.png
vsszan2060632700291185.gif


洞穴


vsszan2060632700291186.gif
vsszan2060632700291187.gif
vsszan2060632700291188.png


“-1f藏酒区” 和-1f收藏室” 通过窗口相连。


vsszan2060632700291189.gif


收藏室


vsszan2060632700291190.png
vsszan2060632700291191.png
vsszan2060632700291192.png
vsszan2060632700291193.png
vsszan2060632700291194.png



空间终将超越物理的“舍”,成为容纳主人性格、审美与生命积淀的“长久之家”。


项目模型与图纸▽

vsszan2060632700291195.png
vsszan2060632700291196.png
vsszan2060632700291197.png
vsszan2060632700291198.png
vsszan2060632700291199.png


项目过程


vsszan20606327002911100.png
vsszan20606327002911101.png
vsszan20606327002911102.png
vsszan20606327002911103.png
vsszan20606327002911104.png
vsszan20606327002911105.png
vsszan20606327002911106.png
vsszan20606327002911107.png
vsszan20606327002911108.png
vsszan20606327002911109.png

空间的另一种状态

vsszan20606327002911110.png
vsszan20606327002911111.png
vsszan20606327002911112.png
vsszan20606327002911113.png
vsszan20606327002911114.png
vsszan20606327002911115.png
vsszan20606327002911116.png
vsszan20606327002911117.png

在舍|筑长久之舍,成自在之宙。


项目名称|在舍 Z SPACE
项目地点|中国  沈阳
项目面积|800m²
完工时间|2025.12
设计单位|PENG & PARTNERS/ 鹏和朋友们设计事务所
总设计师|王鹏
项目总监|李源
艺术总监|吕庆
软装艺术顾问|P Projects/ P计划
落地负责|胡本强、Cherry翠
项目摄影|覃昭量  胡本强  杨之毅
项目视频|WM studio
合作品牌|ROYANA 诺雅那、凯晟石材、鼎界、上相、巴卡拉Baccarat、Viabizzuno、Christian Liaigre、HermanMiller、Fritz Hansen、Carl Hansen & Son、Poltrona Frau、SUNJOY


    • 转自:环球设计
    • 图片©环球设计
    • 编辑:序赞网
    • 阅读原文
    AI文本分析中……
    AI色彩命名中……

    序赞Ai时刻等待着你的命令!~

    与Ai对话形式持续执行相关Ai智能体任务。

    暂时没有评论,你回一个呗!~

    您需要登录后才可以回帖 登录 | 注册序赞号

    快速回复 返回顶部 返回列表