Marais | JiaHao Liao | 2026 | 法国
vsszan121821081726451.jpeg



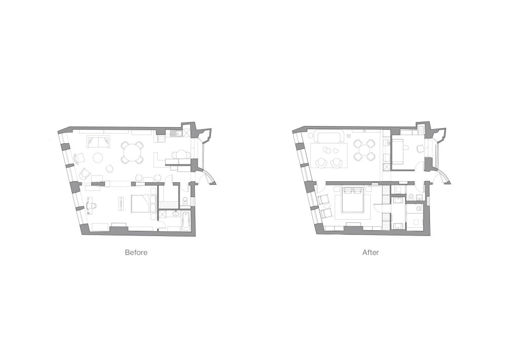
Occupying 74 square metres, the apartment had previously lost its original character after a load-bearing wall was removed decades earlier, collapsing the plan into a single studio. The project set out to reassert the clarity of the original volumes while accommodating contemporary living needs, all within the constraint of notably low ceiling heights. Rather than treating this limitation as a compromise, the renovation responds with precision and restraint.
The process began with a deliberate stripping back. False ceilings, unsuitable floor finishes and distorted partitions were removed to expose the building’s underlying structure. A new screed was introduced to level and insulate the floors, establishing a calm and consistent base upon which the new interior could be composed. This act of deconstruction was as critical as the additions that followed, allowing the apartment’s proportions and material logic to be re-read with clarity.
Throughout the home, historical context is respected through a palette of natural materials. Wood, stone and limewash are applied with economy, allowing texture and light to carry the atmosphere. Vertical articulation becomes a key strategy in addressing the low ceiling height. Fluted glass, carefully spaced kitchen cabinetry, louvered wardrobe fronts and radiator covers, along with sculpted interior shutters, draw the eye upward and lend visual lightness without relying on overt gestures.
Light, proportion and material sensitivity guide Marais, a carefully considered apartment renovation by JiaHao LIAO, set within an 18th-century building in the heart of Paris’s historic Le Marais.


vsszan121821081726452.jpeg
vsszan121821081726453.jpeg
vsszan121821081726454.jpeg
vsszan121821081726455.jpeg
vsszan121821081726456.jpeg
vsszan121821081726457.jpeg



The reconfigured plan introduces a master bedroom with en-suite bathroom, a second bedroom that also functions as a study, a guest bathroom, and an open kitchen connected to a generous living area. Original oak beams, freed from dark varnish, reveal their natural grain and bring warmth back into the apartment, grounding the contemporary interventions in the building’s past.
A restrained, calming palette unifies the interior. Limewashed walls and ceilings respond softly to daylight, shifting subtly with changes in weather and time of day. In the bathrooms, mineral resin with a waxed concrete effect introduces a contemporary note while remaining tonally aligned with the historic fabric.
Attention to detail is consistent and purposeful. A folding desk integrated into a window bay operates as both furniture and architectural casing, connecting discreetly to concealed storage. This small but considered gesture reflects a broader approach in which function, proportion and material coherence work together to support everyday life.


vsszan121821081726458.jpeg
vsszan121821081726459.jpeg
vsszan1218210817264510.jpeg
vsszan1218210817264511.jpeg
vsszan1218210817264512.jpeg
vsszan1218210817264513.jpeg
vsszan1218210817264514.jpeg
vsszan1218210817264515.jpeg
vsszan1218210817264516.jpeg
vsszan1218210817264517.jpeg
vsszan1218210817264518.jpeg
vsszan1218210817264519.jpg


Photography by BCDF studio

  • 转自:New Norm
  • 图片©New Norm
  • 编辑:序赞网
  • 阅读原文
AI文本分析中……
AI色彩命名中……
95qabc2026-1-8 18:41:29

谢谢分享!!!谢谢分享!
工具箱2026-1-9 09:38:13
谢谢分享!!!谢谢分享!
您需要登录后才可以回帖 登录 | 注册序赞号

快速回复 返回顶部 返回列表