Counterpoise | Studio Metanoia | 2026 | 新加坡
vsszan206332120846531.jpg



Some homes are born out of necessity.Others emerge at a point of arrival.
Counterpoise was conceived during a transitional moment in the lives of its homeowners — a couple in their late thirties stepping into a new chapter after years of building and recalibrating. Having moved on from their first home, they approached this project with renewed clarity: a desire to create a space that reflected not only their present circumstances, but also their evolving sense of self.
This was to be a home shaped by intention rather than accumulation — a place to slow down, to host, and to live with materials that could be felt as much as they were seen.


vsszan206332120846532.png
vsszan206332120846533.jpg



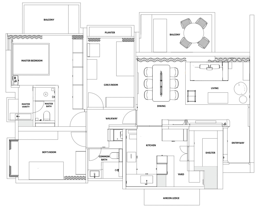
Holding contrast
From the outset, the design was anchored by contrast — not as opposition, but as balance.
The couple held differing preferences: one gravitating toward darker, more grounded environments; the other drawn to light, openness, and natural illumination. Rather than softening these differences, the design embraced them, allowing light and dark to coexist in measured equilibrium.
The interplay of stone, metal, and timber is reinforced by a quiet tension between curved corners and sharp lines, shaping both the spatial sequencing and material language of the home.


vsszan206332120846534.jpg
vsszan206332120846535.jpg



Compression and release
The home opens with restraint with the entryway kept deliberately dark and subdued, allowing only a glimpse of the living space beyond. As one moves inward, the interior gradually opens into a brighter, more expansive living and dining area.
A television feature wall spanning over four metres anchors the communal spaces, acting as a spatial spine that connects the entryway, living, and dining zones. In doing so, it elongates the interior while quietly guiding movement through the home.Private areas are concealed behind the dining feature wall, accessed through a discreet integrated door set beside a custom calligraphy artwork bearing the Chinese text
Materiality plays a central role in shaping the atmosphere of Counterpoise.Italian stones — including Calacatta Viola and Bellezza Nera — are used with intention and restraint, lending weight and permanence to the interior. These are set against warm, muted whites and cool-toned dark wood joinery, with metal accents introduced sparingly to provide depth rather than shine.Fluted limestone surfaces add a quiet sense of cultivation, understated and composed, with a distinctly Italian sensibility that gestures toward both classical and modern architectural language.


vsszan206332120846536.jpg
vsszan206332120846537.jpg



Softness within discipline
Curved silhouettes appear subtly across the home, softening its architectural language through ceiling coves, feature walls, furnishings, lighting, and tapware selections.
Rather than dominating the space, curvature is counterbalanced by linear, disciplined joinery. At the television wall, the Ross Gardam Ceto pendant casts a restrained pattern across the adjacent brushed bronze surface, introducing a delicate luminosity within the otherwise grounded composition.


vsszan206332120846538.jpg
vsszan206332120846539.jpg



A private moment
One of the most considered moments lies within the master suite.
Here, the bathroom layout was reimagined to transform a functional routine into an experience. The vanity, now positioned beside a window, is separated from the shower and WC, allowing natural light to wash over a custom Calacatta Viola basin. Visible from the bedroom, this sequence unfolds as a pause between spaces. F
or parents navigating the pace of daily life, this moment offers a brief but intentional respite. It is an intimate interlude within the home, where materiality, light, and movement converge.


vsszan2063321208465310.jpg



What was withheld
Restraint is evident not only in what was designed, but in what was consciously omitted.
Warm-toned timber, excessive curvature, overt overhead lighting, and saturated colour were deliberately withheld from the foundational works. Instead, atmosphere is shaped through ambient light, filtered daylight, and material contrast — with colour reserved for furnishings, art, and personal objects that will continue to evolve with the family.


vsszan2063321208465311.jpg
vsszan2063321208465312.jpg



In balance
Counterpoise reflects an assurance in holding opposing preferences in balance, without compromise. Restraint, contrast, and clarity emerge as guiding principles throughout the home.
Rather than resolving difference, the home allows it to exist — balanced, intentional, and composed.


vsszan2063321208465313.jpg
vsszan2063321208465314.jpg
vsszan2063321208465315.jpg
vsszan2063321208465316.jpg
vsszan2063321208465317.jpg
vsszan2063321208465318.jpg
vsszan2063321208465319.jpg
vsszan2063321208465320.jpg
vsszan2063321208465321.jpg
vsszan2063321208465322.jpg


  • 转载自:Studio Metanoia
  • 图片©Studio Metanoia
  • 编辑:序赞网
  • 阅读原文
AI文本分析中……
AI色彩命名中……
95qabc2026-1-12 19:20:34

谢谢分享!!!谢谢分享!
您需要登录后才可以回帖 登录 | 注册序赞号

快速回复 返回顶部 返回列表