EVGENIEVSKY | Artem Babayants | 2026 | 俄罗斯
vsszan51328190729161.jpg
vsszan51328190729162.jpg



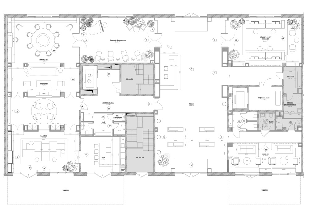
为豪华住宅区“叶夫根尼耶夫斯基”,babayants团队设计了2010年代被废弃的修复建筑部分楼体的室内空间。其中首推的是配备完善高端服务生态系统的豪华大堂。
俱乐部设施面积超过1300平方米,将设有举办私人文化活动的区域,以及供人静心休憩的空间。这些空间旨在激发创造力、启迪智慧并促进深思。
该项目的主要目标是通过将“叶夫根尼耶夫斯基”街区的历史文化内涵与现代科技及概念设计相结合,为该街区注入新的活力。
在室内设计中,我们借鉴圣彼得堡历史建筑的经典元素——形式、对称性与构成手法,避免过度风格化或直接复制,而是通过现代设计的视角重新诠释这些传统元素。


vsszan51328190729163.jpg
vsszan51328190729164.jpg
vsszan51328190729165.jpg
vsszan51328190729166.jpg
vsszan51328190729167.jpg
vsszan51328190729168.jpg
vsszan51328190729169.jpg
vsszan513281907291610.jpg
vsszan513281907291611.jpg
vsszan513281907291612.jpg
vsszan513281907291613.jpg
vsszan513281907291614.jpg
vsszan513281907291615.jpg
vsszan513281907291616.jpg
vsszan513281907291617.jpg
vsszan513281907291618.jpg
vsszan513281907291619.jpg
vsszan513281907291620.jpg
vsszan513281907291621.jpg
vsszan513281907291622.jpg
vsszan513281907291623.jpg
vsszan513281907291624.jpg
vsszan513281907291625.jpg
vsszan513281907291626.jpg
vsszan513281907291627.jpg
vsszan513281907291628.jpg
vsszan513281907291629.jpg
vsszan513281907291630.jpg
vsszan513281907291631.jpg
vsszan513281907291632.jpg
vsszan513281907291633.jpg
vsszan513281907291634.jpg
vsszan513281907291635.jpg
vsszan513281907291636.jpg
vsszan513281907291637.jpg
    • 转自:Artem Babayants Architects
    • 图片:Artem Babayants Architects
    • 编辑:序赞网
    • 翻译:序赞网
    • 阅读原文
    AI文本分析中……
    AI色彩命名中……
    syhgdesign2026-1-20 02:40:37
    感谢楼主辛苦分享
    您需要登录后才可以回帖 登录 | 注册序赞号

    快速回复 返回顶部 返回列表