1300㎡江畔别墅 | 马艾洋 | 2025 | 中国重庆
vsszan206511210011291.png



“我给她看了我家院子里的一棵红枫。这棵树是我亲手栽的,我每天看着它在一年四季里的变化。那天正好是秋天,叶子已经红透了。”这是设计师马艾洋在讲述项目起始阶段时提到的一个细节。对于这座位于重庆嘉陵江畔、面积约1300平方米的别墅而言,设计并未从风格设定入手,而是首先回应长期居住所需的空间结构稳定性,以及在反复使用中逐步建立起清晰而自洽的空间秩序。
在项目推进过程中,设计师与屋主将对自然的细节关注转化为设计的工作方法:一草一木的生长状态、光影在一天与四季中的移动,被纳入空间组织与材料选择的考量之中。记忆与时间,通过视觉与触觉被嵌入日常使用的结构之中,让旧日风景在当下生活中生根发芽。
“此心安处是吾乡”。本案以暖灰、胡桃木与复古绿为基调,融入现代极简与复古元素。空间中“生命之树”漆画串联家族记忆,院中植石榴树呼应自然情怀;家成为承载情感、安顿身心的精神栖息地。


vsszan206511210011292.png
vsszan206511210011293.png
vsszan206511210011294.png



01. Container, Memory
家是记忆的容器
“我们常常会围绕一棵树聊很久,它如何生长,叶片如何随季节改变,阳光和雨水在不同时节带来什么样的感受。”屋主和设计师马艾洋交换着对生活和自然的理解。在这一项目中,“自然”成为了空间组织的参考系,屋主对四季变化的敏感,最终落实为对采光条件、材质层次与色彩节奏的设计判断。


vsszan206511210011295.png
vsszan206511210011296.png



在马艾洋的设计中,他一直在思考如何让自然真正进入空间结构之中——使一棵树、一束阳光,甚至微小的生长状态,不再停留于视觉表达,而是成为影响空间尺度与使用方式的内在因素。与之相应,屋主对自然的亲近,更多来自童年的乡村生活记忆:老家院落中陪伴成长的麻柳树,夏日里摇扇纳凉的场景,构成了她对生活的最初理解。


vsszan206511210011297.png
vsszan206511210011298.png
vsszan206511210011299.png



个人的情感与记忆作为此次设计的背景,进一步转译为空间的设计语言。住宅整体以暖灰为基底,为材质与结构关系提供稳定背景。胡桃木的深沉与温润,如树干般支撑起空间的骨架。错落其中的色彩纵情生长,红色仿佛枫叶的丰盛与饱满,绿色取自树叶在四季间的变幻,叙述着层次丰富的自然秩序,在安定之中注入鲜活的生命力。


vsszan2065112100112910.png
vsszan2065112100112911.png
vsszan2065112100112912.png



家具与材料的选择也沿着这一逻辑展开。皮革与实木的质地保留了材料本身的呼吸感,在自然光照下呈现细微变化,与空间色调形成连续关系。格子窗棂、压花玻璃与铜质扶手等古董元素被嵌入现代结构之中,在大体量空间中引入更适合日常使用的比例与层次,在功能与观感之间取得平衡。


vsszan2065112100112913.png
vsszan2065112100112914.png



02. Sit down and feel
坐下来,开始感受细微
书房是这座住宅中使用频率最高、停留时间也最长的空间之一。屋主对这一空间有着明确的期待:要有一面书墙,承载她的阅读轨迹,另一面墙面用于展示摄影作品,作为时间与经验的记录。在这些条件之中,空间的起点是一件与身体尺度直接相关的家具——一把能够支持长期使用的椅子。


vsszan2065112100112915.png



“我们从‘坐下来的感受’开始。”马艾洋说道。椅子的尺度、支撑结构与触感的综合考量,关乎着书房的使用体验。作为书房中使用强度最高的家具,它需要在久坐状态下为身体提供稳定支撑,同时避免过度包覆带来的疲劳。出自“托斯卡纳木艺诗人”Ceccotti Collezioni的T-Bone扶手椅,由西班牙艺术家兼设计师Jaime Hayon演绎,以雕塑性的形式语言介入功能对象。T-Bone以美国胡桃木为骨,其榫卯方式与连续的弧线处理,使扶手与靠背在结构上形成清晰的支撑逻辑,适应长时间阅读与停留的使用需求。胡桃木的材质表达与空间整体结构保持一致,使家具在视觉与功能层面都更接近一种可被长期使用的构件。


vsszan2065112100112916.png
vsszan2065112100112917.png



材质的搭配进一步强化了这种使用逻辑。胡桃木色调沉稳而内敛,有效降低视觉干扰;蓝色织物被用于柔化木结构的硬度,在触感层面建立适合长时间停留的平衡。设计师同时引入接近叶片本色的大花绿石材,将其分布于书房、卧室与门厅等关键节点,与木质结构形成材质上的连续性,使人在不同空间之间移动时,保持稳定而可识别的感知体验。
家具与材质不仅仅作为风格表达,更直接回应真实而细微的生活感受。阅读、停留与思考这些反复发生的日常行为,逐渐塑造了空间的秩序与气质,在尊重自然的节奏中,练习与变化相处,塑造出与人相互观照的精神居所。


vsszan2065112100112918.png
vsszan2065112100112919.png



卧室一角,选用Poltrona Frau的Sleeping Muse床和Ceccotti Collezioni的Brad床头柜以及Oblique 边柜,胡桃木色结构、蓝色织物、大花绿石材多材质搭配强化空间关系与使用逻辑。

03. Time, Scale
以时间为尺度
由于屋主长期的阅读与独处习惯,时间在此以自由自在的状态流动着。空间通过对自然采光与视线关系的控制,让时间以更连续的方式被感知:光线在一天中的移动,成为屋主熟悉的时间尺度,也构成了空间使用的基本节律。屋主偏好隽永而稳定的空间氛围,而非强调即时效果的表达。对她而言,理想的家需要承载长期累积的生活经验与精神重量。家具的比例、轮廓与结构,构成了可被阅读的空间语言。对设计师马艾洋而言,家具并非后设的装饰物,而是连接空间结构与生活方式的重要媒介。


vsszan2065112100112920.png
vsszan2065112100112921.png



因此,“是否经得起时间考验”成为选品时的首要标准。判断的标准并不止于当下的视觉感受,而在于家具是否在十年、二十年之后依然适合使用,并持续参与生活。材质的取向进一步强化了这种时间维度:木艺沉稳克制,皮革柔韧耐用,适合与身体长时间接触。这些材料在日常使用中逐渐形成可被感知的变化,使家具与使用者之间建立起持续的关系。设计也因此刻意避开过度工业化或强调科技感的材料表达,整个空间中超过八成的家具选择以手工方式完成,从制作阶段开始,为长期居住奠定基础。


vsszan2065112100112922.png
vsszan2065112100112923.png



客厅中的主沙发,成为这一时间观念的直观呈现。L型沙发选自Poltrona Frau的经典系列Chester Line,其设计源头可追溯至1912年,品牌创始人Renzo Frau从英国贵族书房中的传统沙发中获得灵感,并以皮革语言诠释其结构特征。八络手绑弹簧系统提供稳定而富有弹性的承托,包覆的Pelle Frau® 皮革则让材质本身成为时间的书写者,褶裥设计细腻铺陈,成为结构与工艺的自然结果;低靠背与可延展的组合呼应了今日更自由、松弛的使用方式。


vsszan2065112100112924.png
vsszan2065112100112925.png
vsszan2065112100112926.png



04. Growth, Strength
持续生长的力量
马艾洋意识到,屋主所分享的更多是感性而具体的生活片段——童年的院落、自然的陪伴、与家人共处的记忆,如何将抽象的情感经验转化为可被使用、可被验证的空间语言,成为设计中的关键。设计在此不只是美感与功能的平衡,也需要在尺度、位置与结构上,为情感经验找到合适的承载方式。


vsszan2065112100112927.png



最终,答案被集中到一个清晰而具体的意象之上——屋主童年院落中的那棵麻柳树。那棵树陪伴她度过成长阶段,即使老宅翻修,这棵树仍被完整保留下来,也见证了家庭生活的延续。围绕这一意象,马艾洋提出在新居中设置一个具有空间尺度的精神锚点。“聊到这棵树的时候,我就提议,将这棵树带进她的新家,作为一种精神的象征,一种持续向上生长的力量。”马艾洋说。


vsszan2065112100112928.png

大漆壁画《生命之树》创作手稿

vsszan2065112100112929.png

大漆壁画《生命之树》创作手稿


于是,一幅高逾五米的漆画作品,在旋转楼梯上开枝散叶,遥远的记忆在精妙工艺中重现,成为恒久的存在。作品以《生命之树》为题,邀请四川美术学院的漆画师以漆艺层层渲染,历时四个月完成,成为贯穿多层空间的视觉与结构节点。


vsszan2065112100112930.png

大漆壁画《生命之树》制作过程

vsszan2065112100112931.png

大漆壁画《生命之树》在别墅中的呈现细节


《生命之树》成为屋主进入住宅时最先感知的一面,也在日常的动线中反复被观看,通过尺度、材质与位置的选择,稳定地存在于空间之中。树的意象并未止于这一界面。书房窗外种下的石榴树,将“生长”这一概念进一步延伸至日常生活的节奏之中,使季节变化成为居住体验的一部分。


vsszan2065112100112932.png
vsszan2065112100112933.png



同样地,家具也在时间中参与空间的生成:Poltrona Frau与Ceccotti Collezioni以各自鲜明的材料性格融入其中——皮革的温润触感与木质的结构诗性,在长期使用中与身体产生磨合,在时间中成为记忆的承载者,持续参与空间的生长,像一颗被安放好的种子——根系连结过往经验,枝叶在未来的生活中不断展开,等待时间为其一层层标记新的年轮。


vsszan2065112100112934.png
vsszan2065112100112935.png
vsszan2065112100112936.png
vsszan2065112100112937.png
vsszan2065112100112938.png

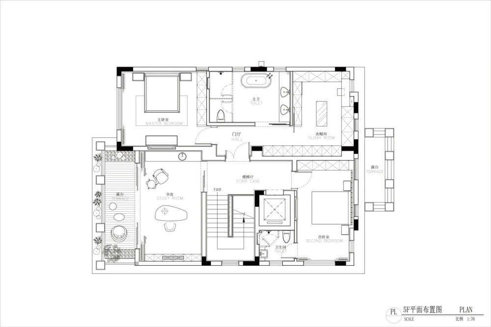
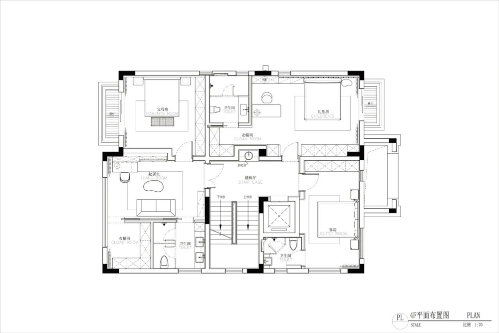
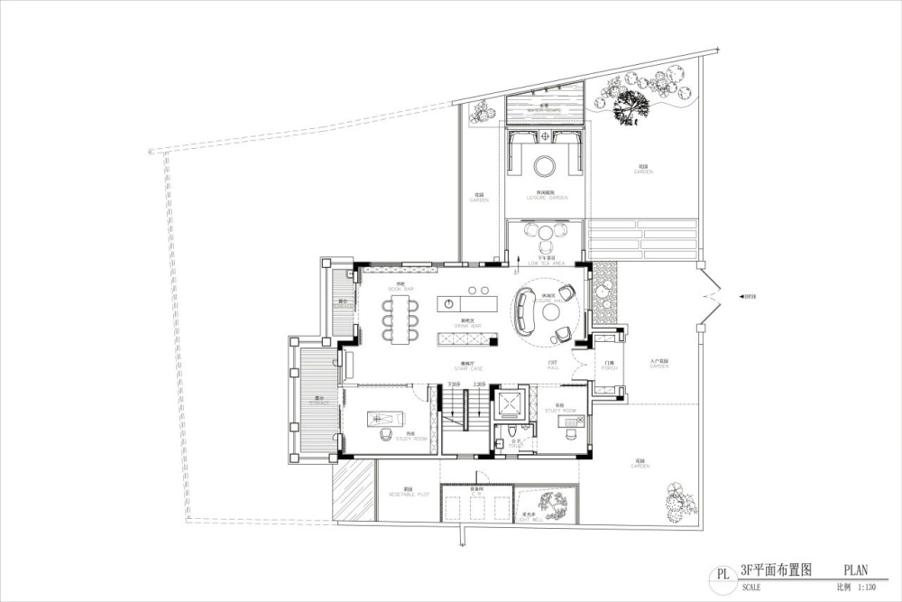
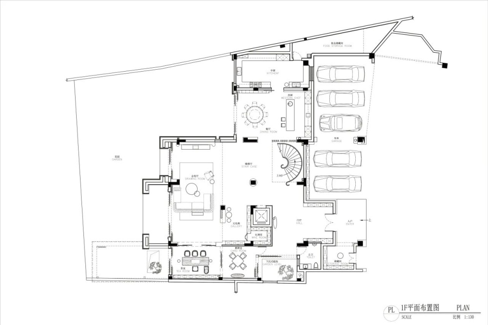
平面图



项目名称|私宅
设计面积|1300㎡
设计单位|马艾洋室内设计事务所
主创设计|马艾洋
设计助理|张琳玲 王洋 周利 邵志钦 胡柔娟 唐滔
陈设设计 | 重庆熙予软装  覃勇毅  王雅竹  吴小勤
项目摄影|张骑麟
撰文 | Nikkichen


    • 转自:走鹊
    • 图片©马艾洋室内设计事务所
    • 编辑:序赞网
    • 阅读原文
    AI文本分析中……
    AI色彩命名中……
    aguai102026-1-21 14:00:07
    感谢楼主辛苦分享
    syhgdesign2026-1-22 02:18:07
    感谢楼主辛苦分享
    95qabc2026-1-23 00:57:33
    谢谢分享!!!谢谢分享!
    ppap7772026-1-23 15:25:53
    感谢分享!!感谢分享!!
    您需要登录后才可以回帖 登录 | 注册序赞号

    快速回复 返回顶部 返回列表