VIPP 旗舰店 | 正方良行 | 2024 | 中国深圳
vsszan206692290049331.gif
vsszan206692290049332.jpeg
vsszan206692290049333.png



现代家居展厅正从静态陈列转向场景体验,
然而,真正的产品深度、日常适配性,
乃至一种生活方式是否真正属于自己,
往往仍需通过“居住”这一最本质的行为来验证。
唯有在日复一日地使用中,
设计的诚意与生活的质感才得以浮现。
VIPP——北欧高端生活方式品牌


vsszan206692290049334.jpeg
vsszan206692290049335.jpeg
vsszan206692290049336.jpeg



从第一张彩票到第一个脚踏式垃圾桶,再到闻名世界的北欧品牌,Vipp的品牌历史是对经典、实用主义以及功能美学的反复探索与延伸。
1939年,Vipp借助人类史上的第一款脚踏式垃圾桶的设计,种下了发展的种子,在此后的八十余年中,Vipp始终坚持追求美学与功能兼具的持久生命力,以精巧的工艺、极简的设计和自然的材料作为支撑,并强调有机与可持续性理念,Vipp逐步构建出涵盖家具、厨房卫浴、全系列金属柜体等在内的完整家居生态系统。
VIPP的核心哲学始终如一:形式追随功能,品质历久弥新。品牌将工业基因与艺术元素完美融合,使其成为独特标志。VIPP的产品覆盖全家居生活品类,每个品类皆贯彻“少而精”的理念,强调耐用与可持续。其标志性产品垃圾桶造型一直沿用,卫浴产品亦一脉相承,极具辨识度。VIPP以经典美学作为设计的出发点,家具产品造型简约而富有艺术美感,能轻松融入各类空间。


vsszan206692290049337.jpeg
vsszan206692290049338.jpeg
vsszan206692290049339.jpeg
vsszan2066922900493310.jpeg



以此为基础,Vipp通过设计落地多家Vipp Guesthouse,借助建筑形态、空间美学和产品设计实现对现代生活与度假体验的多元化探索与表达。经过十余年的发展,Vipp Guesthouse的旅程印记遍布十几个地区,它们有的坐落于自然原野之中,也有的坐落于历史城区,将自然、人文、艺术与旅居融为一体,提供了一种创新的生活方式体验。
如今,作为VIPP在中国唯一的线下体验实体,VIPP(中国)深圳旗舰店承袭了这一基因,并完成了本土化的生动转译:将展厅,转化为一个可真实居住的“家”。这座位于深圳特色商圈的三层独栋建筑,正在重新定义零售、体验与生活方式的边界,展开一场针对都市生活的深刻创新。


vsszan2066922900493311.jpeg
vsszan2066922900493312.jpeg



小楼里的北欧生活三重奏
建筑外观延续了经典的斯堪的那维亚风格。极简的线条勾勒出干净轮廓、克制的色彩赋予立面宁静气质,让它在繁华街角自成一片宁静之地。
微微驻足,首层室外由绿植与户外座椅围合出一处精巧的入户花园,仿佛家的呼吸入口。推门而入,一个由VIPP全系列产品构筑的北欧生活场景徐徐展开。整个空间设计延续了品牌的简约美学,以低调而高级的框架衬托家居产品的格调。整栋小楼,都在恰到好处的位置悬挂了艺术画作,为空间注入宁静而持续的艺术气息。


vsszan2066922900493313.jpeg
vsszan2066922900493314.jpeg
vsszan2066922900493315.jpeg



首层空间柔化传统展厅的距离感,将客厅、餐厅、厨房与偏厅有机交融,构成连贯的生活场景。地面选用质感高级的水泥砖,墙面采用意大利灰水泥涂料,提升整体空间气质。窗户多处搭配木质百叶帘,这一细节源于丹麦老建筑的常见元素,于细微处建立与品牌在地文化的连接。标志性的V1橱柜系统与Loft模块沙发自然呈现。沙发与餐桌的布局,悄然引导人坐下、交谈、停留。这里首先是一个令人沉浸的社交客厅,其次才是产品场景陈列空间。


vsszan2066922900493316.jpeg
vsszan2066922900493317.jpeg
vsszan2066922900493318.jpeg
vsszan2066922900493319.jpeg
vsszan2066922900493320.jpeg
vsszan2066922900493321.jpeg
vsszan2066922900493322.jpeg
vsszan2066922900493323.jpeg
vsszan2066922900493324.jpeg



二层是结合阅读、办公与会议的功能空间。VIPP的灯具、家具与办公座椅,共同营造出一种高效而沉静的氛围。它向每一位访客展示,深度的思考与灵感,能够被妥帖的设计所承载与激发。大面积落地窗引入充沛的自然光——光,在北欧设计与日常生活中,始终被珍视。


vsszan2066922900493325.jpeg
vsszan2066922900493326.jpeg
vsszan2066922900493327.jpeg
vsszan2066922900493328.jpeg
vsszan2066922900493329.jpeg



顶层是一处完整的套房,亦是整个体验的升华。套房包含了起居室、卧室及双卫生间,干湿分离布局体贴而现代。起居室与卧室之间以可开合的白色门板区隔,搭配橡木色地板,营造出静谧的高级感。起居室内,VIPP的Chimney沙发、水晶壁炉与旁边的休闲椅子,还原了丹麦家庭日常的宁静场景。光线透过百叶帘,在室内投落温柔光影。从卧室到卫浴,居住者身体的每一处感官都与VIPP的产品直接对话。在这里,设计的好坏不再诉诸视觉,而是交付给一夜安眠的深度、指尖触摸的温润,以及空间所带来的全然放松的心境。


vsszan2066922900493330.jpeg
vsszan2066922900493331.jpeg
vsszan2066922900493332.jpeg
vsszan2066922900493333.jpeg
vsszan2066922900493334.jpeg
vsszan2066922900493335.jpeg
vsszan2066922900493336.jpeg



用24小时,建立品牌信任
VIPP旗舰店最革新的一笔,在于引入了 “时间” 这一维度。传统展厅的感知是瞬时与片段的;而在这里,体验被延展为24小时连续的生活流。
旗舰店打破了空间的单一属性,构建出一个 “全时段复合场域” 。白天,它是通透的产品展厅、惬意的商务会客厅与弥漫咖啡香的社交据点;入夜,则悄然转换为一家需预约入住的精品民宿。这种 “日间展厅+夜间民宿” 的运营模式,正是品牌理念在中国语境下的自然生长——它将品牌的融入,从“参观”深化为“沉浸”。


vsszan2066922900493337.jpeg
vsszan2066922900493338.jpeg



· 日间模式,潜在客户可在真实的体验场景中,感受产品的搭配逻辑、细节质感,以及贯穿其中的北欧艺术美学,感受VIPP对材质和工艺的极致追求。
· 夜间模式,入住则是一场更为深刻的品牌对话。使用者在烹饪、沐浴、安眠等最私密松弛的状态下,检验每一处设计的用心。这种通过共度时光建立的信任与情感联结,远超任何单向宣传,也极大地降低了用户的决策成本。


vsszan2066922900493339.jpeg
vsszan2066922900493340.jpeg
vsszan2066922900493341.jpeg



这亦是一种品牌哲学的践行:VIPP不只售卖产品,更通过产品构建一种关于经典、可持续与艺术美学的生活方式,传递其独有的质感与态度。
当零售隐入生活,体验即是答案
VIPP旗舰店的实践,为高端家居零售及商业空间设计提供了崭新范式。它昭示着一个趋势:未来的零售空间,将日益模糊销售、体验与生活的界限。空间最终的目的,并非“卖给你什么”,而是“让你感受到”另一种理想生活的可能。


vsszan2066922900493342.jpeg
vsszan2066922900493343.jpeg



在这里,设计不再是陈列的商品,而是呼吸的空气;品牌不再是一个遥远的符号,而是一段可被真实拥有的时光。
或许,最好的展厅,本身就是一个关于家的美好答案。

vsszan2066922900493344.jpeg
vsszan2066922900493345.jpeg
vsszan2066922900493346.jpeg

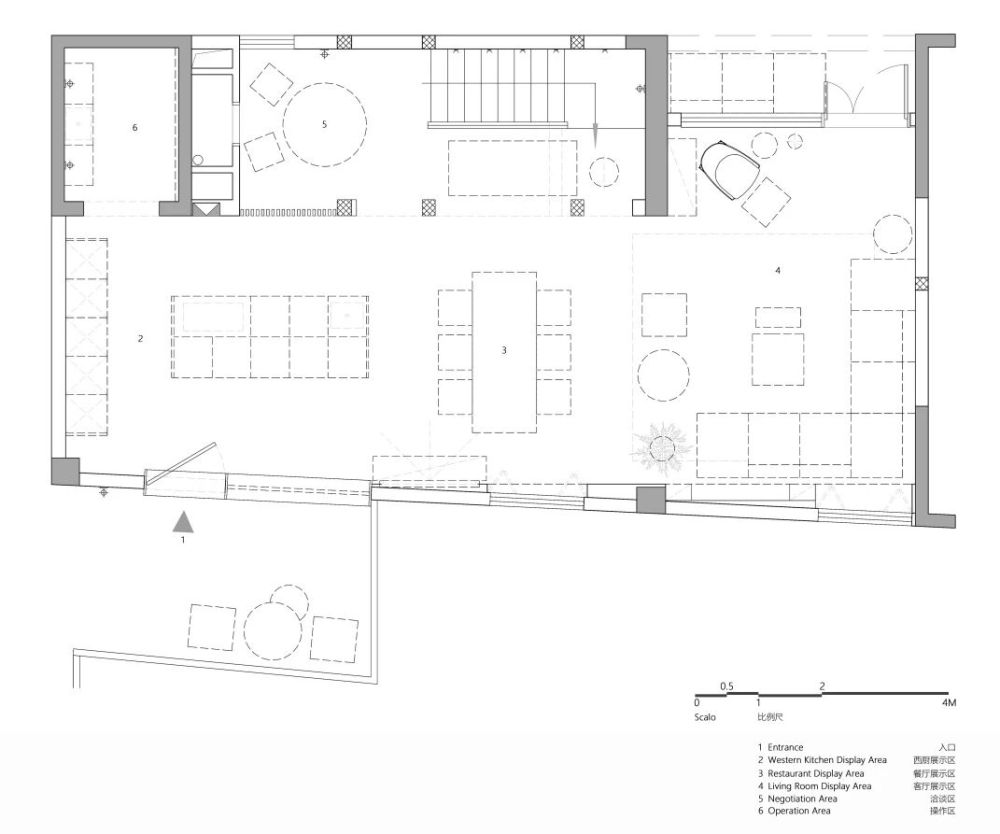
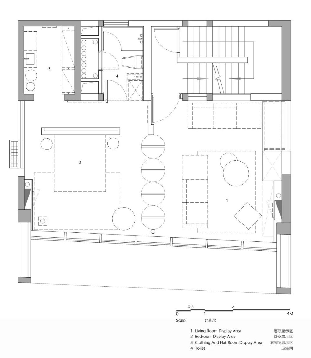
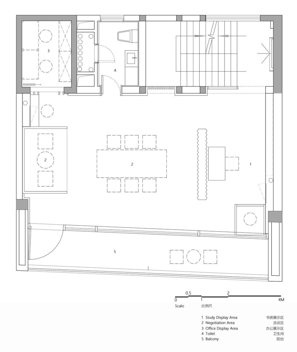
平面图

vsszan2066922900493347.jpeg
vsszan2066922900493348.jpeg
vsszan2066922900493349.jpeg


    • 转自:纯氧设计馆
    • 图片©纯氧设计馆
    • 编辑:序赞网
    • 阅读原文
    AI文本分析中……
    AI色彩命名中……
    95qabc2026-1-30 00:00:52

    谢谢分享!!!谢谢分享!
    syhgdesign2026-1-31 01:35:19
    感谢楼主 辛苦分享
    ppap7772026-2-27 16:23:27
    感谢分享!!感谢分享!!
    您需要登录后才可以回帖 登录 | 注册序赞号

    快速回复 返回顶部 返回列表