广州阿那亚理想国酒店 | B.L.U.E. | 2025 | 中国广东



项目概况
理想国酒店项目位于广州九龙湖阿那亚, 是为文化品牌naive理想国打造的一个集合书店、咖啡简餐、住宿功能一体的复合型空间。九龙湖距离广州市区1小时车程,被2.5万亩原生山林与湖域环绕。建筑选址在小镇河的东岸,背靠广袤的湖山风光,同时与社区美术馆、食堂相邻,在这样一个一半城市烟火一半自然的场地之中,我们希望把本土文化融入空间叙事,创造一个有温度、有情感的文化空间。


▽场地鸟瞰© 夏至

vsszan206820041055031.jpg

▽项目鸟瞰© 夏至

vsszan206820041055032.jpg
vsszan206820041055033.jpg



空间设计与理念
从岭南文化出发,设计初始的灵感源自广州老城的外廊式建筑骑楼。广州骑楼以“下铺上居、廊道贯通”为特点,底层为商铺,设在延续的骑廊立柱之内,二层以上为私密的住宅。骑楼式建筑集商业、居住、交通为一体,不仅见证了广州商业文化的繁荣,更是居民日常生活的依托,是岭南生活氛围的缩影。


▽场地原状© B.L.U.E.建筑设计事务所

vsszan206820041055034.jpg

▽外观© The Wethos

vsszan206820041055035.jpg

▽建筑立面© 夏至

vsszan206820041055036.jpg

▽立面近景© 夏至

vsszan206820041055037.jpg
vsszan206820041055038.jpg

▽立面局部与细部© The Wethos / 夏至

vsszan206820041055039.jpg
vsszan2068200410550310.jpg



理想国酒店作为一个多功能集合式空间,也使用了“下铺上居“的空间构成逻辑。建筑共分为四层,首层是对外开放的书店、咖啡简餐厅, 二至四层为酒店客房。四层空间全部构建在“骑楼式”的连续柱廊之下。设计选择将外围结构体系的梁、板、柱直接暴露出来,立柱和梁板形成的直线网格既是视觉语法也是建筑实际的结构骨架。从外观来看,整个建筑的正面没有设实体墙,由多边形的立柱构建而成,外在造型直接体现着内在建造逻辑。


▽设计初始的灵感源自广州老城的外廊式建筑骑楼© 夏至

vsszan2068200410550311.jpg

▽立面柱廊© 夏至

vsszan2068200410550312.jpg
vsszan2068200410550313.jpg

▽退台式立面© 夏至

vsszan2068200410550314.jpg
vsszan2068200410550315.jpg



柱廊形成的虚实空间,打开了想象。廊下的空间是一片灵动的场域, 它邀请阳光、微风入内,包容四季的流转,形成温柔的开放性边界。人们多样的生活场景也在其中展开——首层商业空间的沿街面全部后退留出公共人行空间,过往的游人漫步廊下,自然的就穿行进入了书店和咖啡厅内部;上方的楼层在柱间分隔出18间面向河景的客房,檐下的露台让客人与河景直接对话,亲近自然。功能性上,柱廊作为建筑的第二层表皮,遮阳避雨,顺应了广州多变的天气,同时也一定程度的遮挡了河对岸视线,让客房获得足够的隐私。


▽柱廊形成的虚实空间© 夏至

vsszan2068200410550316.jpg
vsszan2068200410550317.jpg
vsszan2068200410550318.jpg



建筑另一个突出的造型特点是退台式的设计。四层的建筑由四个堆叠的体块组成,随着楼层的增加,体积逐渐减小,形成富有力感的阶梯式造型。从各个角度看,它的轮廓都呈现出变化。作为地块中最靠近岸边的建筑,退台设计也一定程度的从视觉上消解了建筑体,形成更宜人的尺度感。


▽四层的建筑由四个堆叠的体块组成© 夏至

vsszan2068200410550319.jpg

▽立面夜景© 夏至

vsszan2068200410550320.jpg
vsszan2068200410550321.jpg
vsszan2068200410550322.jpg



在建筑稳定对称的结构之中,我们在首层和三层设计了两个挑高的半室外庭院,打破了立面复的韵律,形成空间的小变奏。同时引入阳光和绿植,让自然景观始终贯穿在建筑之间。位于首层中心的架空中庭,一侧正对河岸上的观景平台,另一面连接着步行街区,让建筑以开放的姿态接纳各个方向来往的行人,增强了建筑公共属性。庭院作为一个过渡空间,把书店和餐厅两个原本分离的功能区,通过人在其间的活动连接起来,让室内外的转换成为一种连续无形的空间体验。


▽半室外庭院© 夏至

vsszan2068200410550323.jpg

▽由室内看半室外庭院© 夏至

vsszan2068200410550324.jpg



廊和院的设计让建筑有了“可以呼吸”的空间。在快节奏的现代生活中,城市空间总是在被高效的使用着,然而, 在单体建筑原本就有限的空间和范围里,我们仍然选择构建半室外连廊和架空庭院,把一定的空间贡献给自然和街道。设计上没有特意界定它们的功能,是人的活动赋予了空间意义——人的游走与自然的渗透在虚实之间悠然转换,空间也随着人和环境的变化而不断进化和生长。酒店的客人,或是社区里漫步而来的游客,在树庭院的长桌边坐下,发呆、读书、聊天、晒太阳。随着微风和光影变幻,人们的动作也自然的放缓下来,度过些许“散漫的时光”。设计相信,建筑的价值不在于宏大的叙事,而在于创造这样的微小的时刻,让人感知真实的生活和自我的存在。


▽夜景© 夏至

vsszan2068200410550325.jpg

▽半室外庭院© 夏至

vsszan2068200410550326.jpg

▽庭院日景© 夏至

vsszan2068200410550327.jpg

▽庭院细部© 夏至

vsszan2068200410550328.jpg



材料运用和室内设计
在材料方面我们选择使用红色清水混凝土来呈现建筑的主体结构,混凝土一次浇筑成型,将结构与材料最真实的呈现。低饱和度的红色像是老砖的颜色 ,也像是泥土的颜色,与混凝土天然、粗粝的质感结合,给人温暖的感觉。红色随着时间微妙的变换色调,让建筑有了表情和生命力,像是在和背后的群山一起生长。晴天时,红色的建筑与水中的倒影相呼映衬,更多了一分灵动。在与环境的对话之中,立面直线网格的坚实和厚感被柔化了,营造出轻盈的感知。与红色混凝土搭配使用的乱纹红铜板,运用在室外疏散楼梯、核心筒的外立面。金属的精致冷峻与混凝土的粗温润,在对比中加强了立面的层次感。整体材质明快的色调也让建筑从青山绿水之间跳脱出来,充满活力和愉悦的度假氛围。


▽红色清水混凝土立面© 夏至

vsszan2068200410550329.jpg



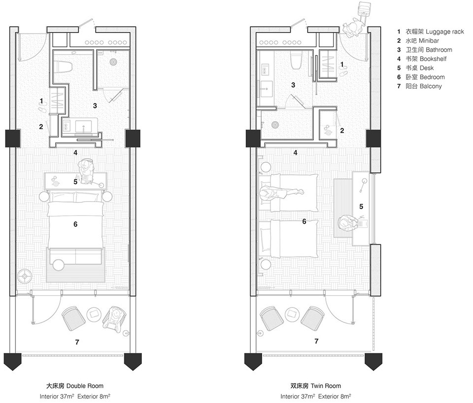
室内氛围也延续了建筑温暖的调性。首层分成两个通过中庭连接的独立室内区域,一侧空间集书店和酒店接待功能为一体,另一侧是简餐厅和咖啡厅。在公区设计中,我们没有设置隔墙将不同的功能硬性隔开,而是创造一个连续流动的动线,最大程度释放建筑空间本身开放的特质。二到四层的客房共18间,分为3种户型。 标准户型虽然室内面积不算大,但每个房间都有一个充满阳光的河景阳台,把生活放大和延伸。室内大使用了木纹石材、红色洞石、红色海洋板、混凝土砖、等暖色的材料, 天然材质温润的属性和带有暖意的色彩,让空间保持着亲和感和烟火气息。在局部的地面和墙面,我们设计了拼花木地板、拼花水磨石和马赛克石材砖,多种纹样的使用让人联想到广州的老式花砖,把广府的技艺和美学传统用现代的语言融入到空间细节之中。


▽接待台© 夏至

vsszan2068200410550330.jpg

▽接待区© 夏至

vsszan2068200410550331.jpg

▽书房© 夏至

vsszan2068200410550332.jpg

▽餐厅© 夏至

vsszan2068200410550333.jpg

▽餐厅细部© 夏至

vsszan2068200410550334.jpg

▽露台© 夏至

vsszan2068200410550335.jpg

▽客房© 夏至

vsszan2068200410550336.jpg
vsszan2068200410550337.jpg

▽客房细部© 夏至

vsszan2068200410550338.jpg
vsszan2068200410550339.jpg



总结
naive理想国的寓意是“想象另一种可能”,这次理想国酒店的设计也是我们的对于探索建筑可能性的一次实践。骑楼诞生在步行为主的年代,我们利用相似的空间逻辑,把在建筑中漫步的体验带给今天的人们,将传统记忆转换为人们可以真实体验的当代情感。“理想国”不是设立在日常之外的一场空想,而是试图通过空间创造相聚与停留的时刻,让人与人、人与环境共建生活的另一种可能。


▽项目夜景鸟瞰© DONG建筑影像

vsszan2068200410550340.jpg
vsszan2068200410550341.jpg

▽项目夜景鸟瞰© The Wethos
vsszan2068200410550342.jpg

▽立面夜景© 夏至

vsszan2068200410550343.jpg

▽柱廊夜景© 夏至

vsszan2068200410550344.jpg

▽施工过程© B.L.U.E.建筑设计事务所

vsszan2068200410550345.jpg

▽总平面图© B.L.U.E.建筑设计事务所

vsszan2068200410550346.jpg

▽底层平面图© B.L.U.E.建筑设计事务所

vsszan2068200410550347.jpg

▽二层平面图© B.L.U.E.建筑设计事务所

vsszan2068200410550348.jpg

▽三层平面图© B.L.U.E.建筑设计事务所

vsszan2068200410550349.jpg

▽四层平面图© B.L.U.E.建筑设计事务所

vsszan2068200410550350.jpg

▽五层平面图© B.L.U.E.建筑设计事务所

vsszan2068200410550351.jpg

▽屋顶平面图© B.L.U.E.建筑设计事务所

vsszan2068200410550352.jpg

▽客房平面图© B.L.U.E.建筑设计事务所

vsszan2068200410550353.jpg

▽套房平面图© B.L.U.E.建筑设计事务所

vsszan2068200410550354.jpg

▽立面图© B.L.U.E.建筑设计事务所

vsszan2068200410550355.jpg

▽剖面图© B.L.U.E.建筑设计事务所

vsszan2068200410550356.jpg

▽细部详图© B.L.U.E.建筑设计事务所

vsszan2068200410550357.jpg
vsszan2068200410550358.jpg
vsszan2068200410550359.jpg
vsszan2068200410550360.jpg
vsszan2068200410550361.jpg
vsszan2068200410550362.jpg
vsszan2068200410550363.jpg
vsszan2068200410550364.jpg
vsszan2068200410550365.jpg


项目名称:广州阿那亚理想国酒店
项目所在地:广东省广州市
项目类型:建筑设计 室内设计
建筑师:青山周平、藤井洋子、刘凌子、王嘉慧、冯蕾、陈璐、杨易欣、张昕翌
业主:广州九龙湖房地产开发有限公司
占地面积 845.58m²
建筑面积 2315.36m²
设计周期 2022年1月—2024年7月
施工周期 2023年10月—2025年10月
摄影师:夏至 / DONG建筑影像 / The Wethos
短片制作:夏制映画
主要材料
建筑材料:清水混凝土、红铜板、肌理涂料
室内材料:海洋板、红洞石、木纹石材
合作单位
合作设计院:深圳华森建筑与工程设计顾问有限公司
景观设计:致舍(北京)景观规划设计有限公司
灯光顾问:汉都设计顾问(深圳)有限公司
深圳普莱思照明设计顾问有限责任公司
幕墙顾问:深圳天盛外墙技术咨询有限公司
标识设计:广州揽世标识有限公司
施工单位
中国建筑第七工程局有限公司
深圳市博大建设集团有限公司
广东景龙建设集团有限公司
常州创新园林工程有限公司

AI文本分析中……
AI色彩命名中……
syhgdesign2026-2-5 02:53:30
感谢楼主辛苦分享
aguai102026-2-9 09:26:31
感谢楼主辛苦分享
您需要登录后才可以回帖 登录 | 注册序赞号

快速回复 返回顶部 返回列表