观野 | 南舍空间 | 2026 | 中国江苏



把自然请进生活|山屿间的光与木 极简原木风别墅的自然叙事
在城市与山林的交界,我们用一整座房子,收藏了山间的风、晨间的雾,还有原木与光影交织的温柔。这不仅是一处居所,更是一场关于“少即是多”的空间诗学实践。


vsszan207106250038161.png



客厅空间 :
没有复杂的背景墙,整面半透纱帘将山景滤成柔和的底色。浅灰色模块沙发与手工编织地毯形成触感的呼应,壁炉的黑色金属线条则为温润的空间注入一丝冷峻的秩序感。赤脚踩在地毯上,阳光漫过拱顶,时间在这里变得缓慢又柔软。


vsszan207106250038162.png
vsszan207106250038163.png
vsszan207106250038164.png
vsszan207106250038165.png
vsszan207106250038166.png
vsszan207106250038167.png
vsszan207106250038168.png



餐厨空间 :
餐厅、厨房以开放式布局串联,设计师巧用厨房的窗户设计,把自然的山景请进室内,让家成为一个可呼吸的整体。原木与哑光白的橱柜组合,在大窗的取景框里,与远处的红瓦屋顶构成一 幅静谧的画面。中岛台既是备餐区,也是家人围坐的社交场,一盏线性吊灯垂下,为日常的烟火气镀上一层温柔的光晕。


vsszan207106250038169.png
vsszan2071062500381610.png
vsszan2071062500381611.png



茶室及休闲区空间:
茶室是松弛感的容器。我们摒弃冗余的装饰,以“消隐”为设计核心,让空间成为生活的背景板。


vsszan2071062500381612.png
vsszan2071062500381613.png



主卧套房空间:
鱼骨拼木地板延伸至床头,浅灰与原木拼接的背景墙,用低饱和度的色彩安抚情绪。深灰色床品在素净的空间里沉淀出安稳的睡意。卫生间悬浮台盆、独立浴缸与玻璃淋浴区,以极简的线条勾勒出洁净的秩序。整面落地窗将山景毫无保留地引入,泡澡时看云雾在林间游走,让沐浴成为一场与自然的对话。


vsszan2071062500381614.png
vsszan2071062500381615.png
vsszan2071062500381616.png
vsszan2071062500381617.png



次卧空间:
次卧吊顶设计融入巧思,与原木温润的肌理形成对话,冷暖平衡间,消解了建筑与自然的边界。


vsszan2071062500381618.png



它用木的温润、光的诗意、景的治愈,让居住者在每一个清晨与黄昏,都能触摸到自然的脉搏,找到内心的安宁。
一层原始结构及平面设计方案:


vsszan2071062500381619.png

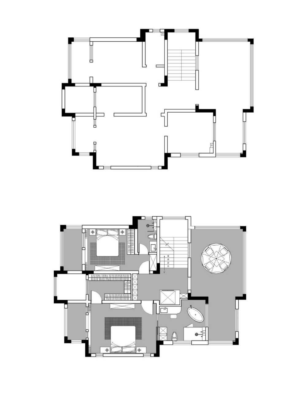
二层原始结构及平面设计方案:

vsszan2071062500381620.png

负一层原始结构及平面设计方案:

vsszan2071062500381621.png



项目设计 I  南舍空间设计
项目面积 I  400m2别墅
项目地址 I  句容 紫金7号
项目类型 I  全案设计托管


    • 转自:南舍空间设计
    • 图片©南舍空间设计
    • 编辑:序赞网
    • 阅读原文
    AI文本分析中……
    AI色彩命名中……
    designer蚂蚁2026-2-25 16:18:03
    感谢分享!!感谢分享!!
    95qabc2026-2-26 23:06:10

    谢谢分享!!!谢谢分享!
    ppap7772026-2-27 23:41:39
    感谢分享!!感谢分享!!
    您需要登录后才可以回帖 登录 | 注册序赞号

    快速回复 返回顶部 返回列表