把家设计成一座“游园” | 辰佑设计 | 2026 | 中国浙江
vsszan207158280113481.gif



裁一片湖光卷成帘
借半庭绿意衬作底
生活在此刻卸下重量
只剩舒展的线、温润的触
与凝视远方的留白
「当“居家”成为一种持续性的、沉浸式的度假体验——在自然中栖居,只留下会呼吸的空间,与可触碰的松弛。」


vsszan207158280113482.png



别墅静伫于湖光与绿意里,被自然以温柔的秩序环抱。近处,是精心营造的包围式庭院,草木葱茏,自成天地;视线越过庭院边界,可见盈盈水光铺展,与天色构成一幅四时变幻的宏大背景。在这里,家,便成了收藏风景的最佳位置。
设计构思  Design concept
游园式探家:这栋别墅,要用脚步“打开”。
将东方园林“步移景异”的游观哲学,转化为现代居住的空间叙事。我们无意于塑造一个静态的、一览无余的居住空间,而是构建一个需要被脚步和视线探索、被时间与光线逐渐揭示的生动场域。家不再是一个被快速“阅读”的对象,而是一处值得慢慢“游历”的所在。


vsszan207158280113483.png
vsszan207158280113484.png
vsszan207158280113485.png
vsszan207158280113486.png
vsszan207158280113487.png



一层公区以全然开放的姿态拥抱自然。我们将原有的窗户改为整面的落地窗与移门,空间的边界消隐,窗外景致不再是孤立的画面,而是成了生活的一部分。


vsszan207158280113488.png
vsszan207158280113489.png
vsszan2071582801134810.png



有意而为之的空间尺度,客厅获有难得的包裹感,反而成就了一种被庇护的安宁:一个让身体松弛、让思绪漫游的静谧内核。它让时间慢下来,在光与木的包围中,找回生活本来的节奏与温度。


vsszan2071582801134811.png
vsszan2071582801134812.png
vsszan2071582801134813.png
vsszan2071582801134814.png
vsszan2071582801134815.png
vsszan2071582801134816.png
vsszan2071582801134817.png



我们选择在餐厅的上方做了挑空,公区的氛围被巧妙地一分为二:客厅因而获得了更为亲密更聚气的包裹感,如同一处温暖的壳,让人心生宁静。而视线移至餐厅,情绪随之而豁然开朗,挑高的空间引入天光与穹景,为三餐日常注入了近乎仪式感的高光。


vsszan2071582801134818.png
vsszan2071582801134819.png
vsszan2071582801134820.png
vsszan2071582801134821.png



改变了厨房原本的进门位置,使其从正对餐厅的视觉焦点隐退至一侧。厨房的“后台”属性得以弱化,新生的墙面作用于承载艺术与品位的端景。当视线在公区巡游,不再有突兀的干扰,目之所及是空间的整体性与丰盈美感。


vsszan2071582801134822.png
vsszan2071582801134823.png



拾级而上,见光见木见幽古。楼梯是胡桃木+双面水晶玻璃,独特的结构艺术,为空间注入现代笔触下的中古氛围。


vsszan2071582801134824.png
vsszan2071582801134825.png
vsszan2071582801134826.png
vsszan2071582801134827.png
vsszan2071582801134828.png



中餐厅以木饰面覆顶,自然的呼吸感延伸,与落地窗外的庭院景致呼应,内与外,藉由同一种自然语汇,达成了气韵的贯通。


vsszan2071582801134829.png
vsszan2071582801134830.png
vsszan2071582801134831.png



入户玄关的端景作空间叙事的起点,纵深感将视线引向对“家”的探寻,步履缓缓,建立起归家的仪式与期待。


vsszan2071582801134832.png
vsszan2071582801134833.png



二层的过道是“游园动线”的延伸,从一层公区仰首,可见人影绰约掠过墙面,于过道俯身,能将客餐厅的生动情景收进眼底。
黑色不锈钢扶手造型以极简的线性勾勒轮廓,利落的一抹现代趣味将过道变成可观赏性的艺术回廊。过道的尽头设计了一处方正的全玻璃观景台,以全然通透的姿态,实现了视野的解放。


vsszan2071582801134834.png
vsszan2071582801134835.png



露台勾勒出日常的闲适场景,品茶或静坐在这里成了一场与自然交融的微小仪式。


vsszan2071582801134836.png
vsszan2071582801134837.png
vsszan2071582801134838.png
vsszan2071582801134839.png



大套房的格局,空间以递进的层次将纷扰逐层滤净。休憩区被轻盈地铁艺架子床定义,其结构带来的视觉呼吸感与恰到好处的度假气息,瞬间松弛了所有紧绷的神经。


vsszan2071582801134840.png
vsszan2071582801134841.png
vsszan2071582801134842.png
vsszan2071582801134843.png
vsszan2071582801134844.png
vsszan2071582801134845.png



进入-1层,空间的逻辑由“直达”转向“游观”。动线如园林小径蜿蜒藏露,赋予归家过程以悠然趣致。
墙面与踏步延续毛石与天然石材的质朴肌理,室内外材质浑然一体,模糊了建筑与自然的界限。这处负一层的开端,不止是过渡,更是一场心的沉淀--在向下行走的过程中,目光与精神,皆向上生长。


vsszan2071582801134846.png
vsszan2071582801134847.png



微缩的自然被珍藏在这处下沉庭院,绿意与流水景观的生长与流动,让负一层空间获得了光的深度、风的流转与四季的触角。


vsszan2071582801134848.png
vsszan2071582801134849.png
vsszan2071582801134850.png



而踏步向上延伸,连接一楼庭院,这不仅是一条功能路径,更是一段仪式性的过渡:自下的私密沉浸,逐步升至地面的开阔明朗。

▷客厅夜景

vsszan2071582801134851.png
vsszan2071582801134852.png
vsszan2071582801134853.png



当庭院沉入幽蓝底色,城市灯火透过树叶的间隙在玻璃上投下星点光斑,而壁炉生起跃动的暖意,氛围在这一刻被清晰地塑造。

平面布置图  Floor plan

vsszan2071582801134854.png
vsszan2071582801134855.png

■ -2层

vsszan2071582801134856.png
vsszan2071582801134857.png

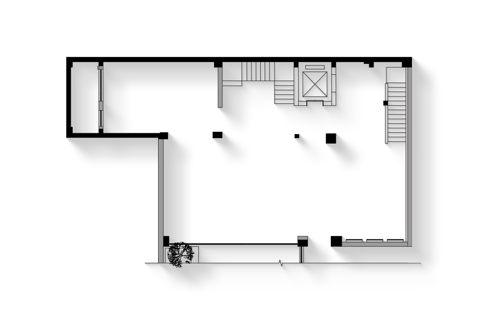
■ -1层

vsszan2071582801134858.png
vsszan2071582801134859.png

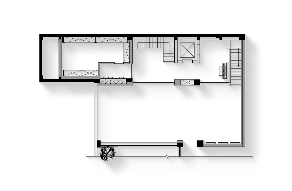
■ 1层

vsszan2071582801134860.png
vsszan2071582801134861.png

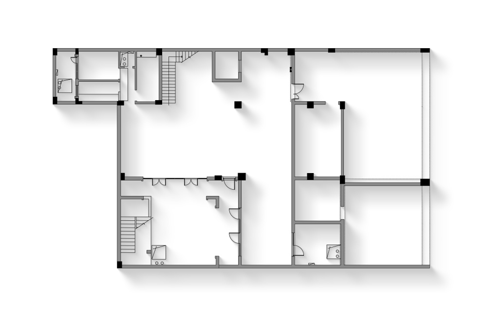
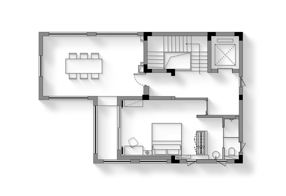
■ 2层

vsszan2071582801134862.png
vsszan2071582801134863.png

■ 3层


项目地点 ︱  浙江杭州
项目名称 ︱  别墅项目
硬装设计 ︱  辰佑设计
软装设计 ︱  颜青软装
施工单位 ︱  梵品筑匠


    • 转自:辰佑设计
    • 图片©辰佑设计
    • 编辑:序赞网
    • 阅读原文
    AI文本分析中……
    AI色彩命名中……
    95qabc2026-2-28 18:48:32

    谢谢分享!!!谢谢分享!
    syhgdesign2026-3-1 03:27:37
    感谢楼主辛苦分享  
    您需要登录后才可以回帖 登录 | 注册序赞号

    快速回复 返回顶部 返回列表