一家6口5房,130平优化改造,有偿
本帖最后由 andyxkf 于 2026-2-28 14:06 编辑

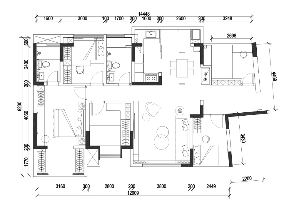
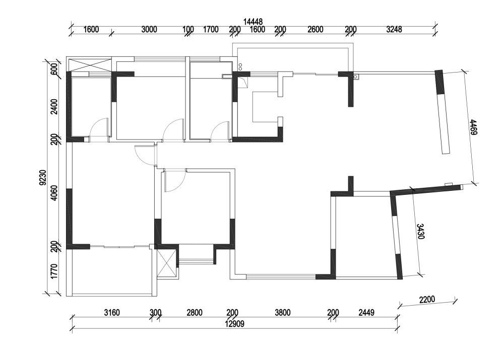
一家6口人,有5个房间,其中一个是杂物间改的,一个是阳台改的,然后原阳台封窗推出去,原有的两个冰箱保留(913*700深和一个720*600深),还有一张1.2的圆桌也要保留,主卧床头看过风水靠门边方向,家里有养猫,要求需要留位置晾衣服。看看方案能否进一步优化。
一家6口5房,130平优化改造,有偿_方1_011.png
一家6口5房,130平优化改造,有偿_方2_011.png
一家6口5房,130平优化改造,有偿_原始_011.png
方案.dwg
1.12 MB,下载次数:1
AI文本分析中……
AI色彩命名中……

暂时没有评论,你回一个呗!~

您需要登录后才可以回帖 登录 | 注册序赞号

快速回复 返回顶部 返回列表