南京536㎡简约别墅 | SKH观享际 | 2026 | 中国江苏
vsszan207174011623171.png



在有情绪的空间容器里,品味着光线与自然,以设计唤醒感官,体验结构与艺术交融的意趣。


vsszan207174011623172.png
vsszan207174011623173.png
vsszan207174011623174.png
vsszan207174011623175.png



浅灰与暖棕的色调交织,如午后阳光般温柔包裹,让空间成为情绪的缓冲地带。


vsszan207174011623176.png
vsszan207174011623177.png
vsszan207174011623178.png
vsszan207174011623179.png
vsszan2071740116231710.png
vsszan2071740116231711.png



当光线在大理石地面上流淌,空间的叙事便从这一方玄关悄然展开。


vsszan2071740116231712.png
vsszan2071740116231713.png
vsszan2071740116231714.png
vsszan2071740116231715.png



身心与设计同频共振,让居者于此安放身心,拥抱生活的温柔回响。


vsszan2071740116231716.png
vsszan2071740116231717.png
vsszan2071740116231718.png



穹顶之上,一方天井,是天空写给人间的情书。阳光与云影在此低语缠绵,归家的人,不妨在长椅上稍作停留,静享这份温柔。


vsszan2071740116231719.png
vsszan2071740116231720.png



黑色楼梯,慵懒、随性,又自带神秘。材质的厚重与线条的轻盈共生,每一次转身,都像是从日常走向诗意的过渡。


vsszan2071740116231721.png
vsszan2071740116231722.png
vsszan2071740116231723.png
vsszan2071740116231724.png
vsszan2071740116231725.png



斜顶之下,光的轨迹被温柔勾勒,木色与浅白交织出松弛的底色。软包床头如云朵般包裹身心,让每一次归卧都成为与自我的温柔相拥。


vsszan2071740116231726.png
vsszan2071740116231727.png
vsszan2071740116231728.png
vsszan2071740116231729.png
vsszan2071740116231730.png
vsszan2071740116231731.png
△-2F平面图
vsszan2071740116231732.png

△-1F平面图

vsszan2071740116231733.png

△1F平面图

vsszan2071740116231734.png

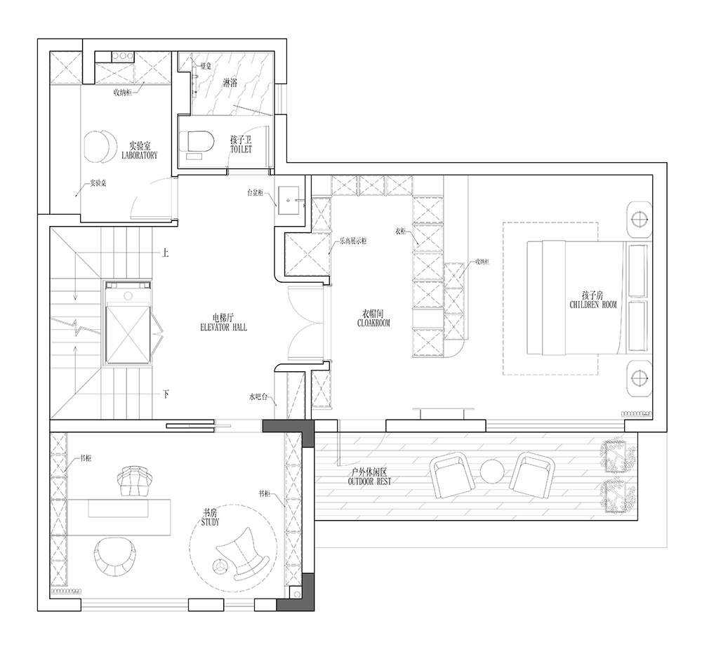
△2F平面图

vsszan2071740116231735.png
AI文本分析中……
AI色彩命名中……
syhgdesign2026-3-2 01:13:59
感谢楼主辛苦分享
您需要登录后才可以回帖 登录 | 注册序赞号

快速回复 返回顶部 返回列表